Budafok ikerház
ÚJ ÉPÍTÉSŰ HŐSZIVATTYÚS IKERHÁZFÉL ELADÓ – SAJÁT 500 M²-ES KERTTEL BUDAPEST XXII. KERÜLETÉBEN!
Budafok ikerház
ÚJ ÉPÍTÉSŰ HŐSZIVATTYÚS IKERHÁZFÉL ELADÓ – SAJÁT 500 M²-ES KERT
- Bruttó 144 m² hasznos alapterület + terasz (24,25 m2) + erkélyek ( 5 m2 és 3,7 m2)
- nappali + 4 szoba + 3 fürdőszoba
- 500 m² kizárólagos kerthasználat
- Hőszivattyús fűtés és padlófűté
Várható átadás: 2026. I. negyedév
A hamarosan induló beruházás lehetőséget biztosít arra, hogy Ön már a kezdetektől nyomon követhesse az építkezést, és igényei szerint beleszólhasson a belső kialakításba.
A kivitelező több mint 20 éve van jelen az építőiparban, megbízható referenciákkal. Referencia ingatlanok megtekinthetők!
Fotók közt már elkészült ingatlan is szerepel!
Főbb műszaki jellemzők:
- Sávos betonalap, 30-as tégla falazat + 15 cm hőszigetelés
- 10-es válaszfalak
- 3 rétegű, hőszigetelt műanyag nyílászárók
- Vasbeton födém, cserépfedés
- Fischer 8 kW-os hőszivattyú, padlófűtés
- Hideg–meleg burkolatok 4.500 Ft/m²-ig, beltéri ajtók 40.000 Ft/db-ig szabadon választhatók felár nélkül
- Redőny, szúnyogháló igény szerint felár ellenében
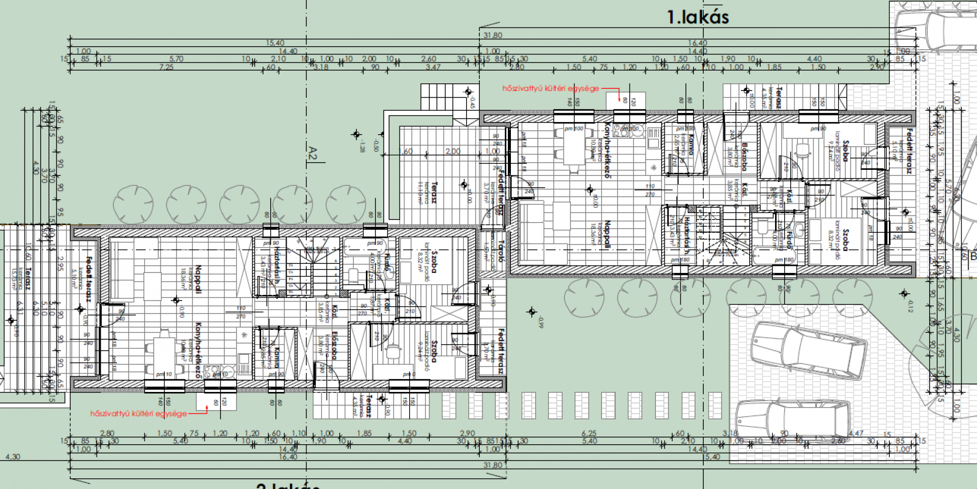
Belső elosztás (jelen hiretésben az első lakás szerepel)
Földszint (68 m²):
- 18,36 m² nappali
- 10,8 m² konyha + étkező
- 2 hálószoba (9,24 m² és 8,32 m²)
- 4 m² fürdő
- kamra - 2,85 m2, háztartási helyiség - 3,43 m2, közlekedő - 1,87 m2, előszoba - 3,8 m2, tároló - 1,5 m2
- 24,25 m² terasz
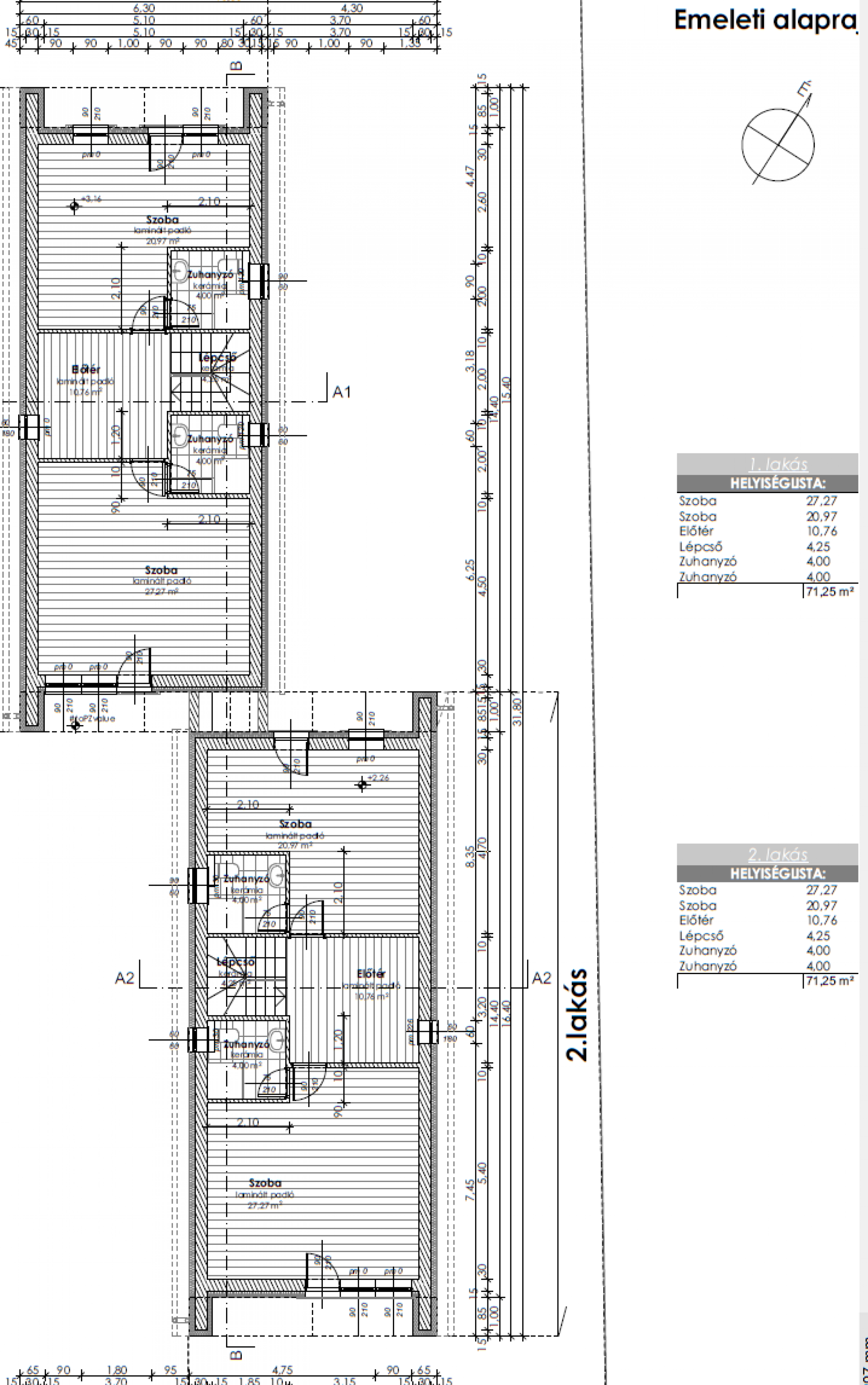
Emelet (71,25 m²):
- 2 tágas szoba (27,27 m² és 20,97 m²), mindegyikhez saját zuhanyzós fürdő (4 m²)
- 11 m²-es előtér + lépcső 4,25 m2
- 2 erkély (5 m² és 3,7 m²)
Parkolás: 2 db felszíni beálló saját telken belül, betonozott kivitelben
A hátsó (2.lakás) ára: 175 M Ft
Kiváló elhelyezkedés: buszmegálló, iskola, óvoda, boltok, orvosi rendelő, gyógyszertár néhány percnyi sétára.
Leköthető most – válassza saját otthonát időben!
További részletekért keressen bizalommal!
| Értékesítés | Eladó |
| Település | Budapest XXII. kerület |
| Ingatlan típusa | Ikerház |
| Szobák száma | 5 |
| Ingatlan állapota | Új építésű |
| Fűtés | Hőszivattyú |
| Építés éve | 2025 |
| Épület szintjei | 2 |
| Tetőtér | Beépített |
| Komfort | Duplakomfort |
| Parkolás | Udvari beálló |
| Kilátás | Udvarra és utcára néző |
| Kertkapcsolatos | Igen |
| Erkély | 24 m2 |
| Fürdő és WC | Egyben és külön is |
| Belmagasság | 2,8 m |
| CSOK | Igen |
| Víz | Van |
| Villany | Van |
| Csatorna | Van |
![[@title]](https://res.cloudinary.com/nestagency/image/fetch/c_fill,w_480,h_480,q_auto,f_auto/e_sharpen/https://www.nestagency.hu/uploads/workers/1634661660-246345284_243276024483999_8574759661986451745_n.jpg)













