Budafok Ikerházak
ÚJ ÉPÍTÉSŰ IKERHÁZI LAKÁSOK LEKÖTHETŐK – SAJÁT UTCÁRÓL NYÍLÓ BEJÁRAT + SAJÁT KERT + GARÁZS!
Budafok Ikerházak
Budapest XXII. kerület – Családi házas, csendes övezet
- Lakásonkénti ár!
- Nappali + 3 hálószoba + 2 terasz
- 1 autós garázs + saját kertrész (550 m² / lakás)
- Hőszivattyús fűtés, padlófűtés + 1 db hűtő-fűtő klíma
- Várható átadás: 2025 év vége
- Megbízható, referenciákkal rendelkező beruházó
Az ikerházi lakások belső kétszintes kialakításúak, saját utcafronti bejárattal és külön lekerített kertrésszel rendelkeznek, így tökéletes választás lehet családoknak vagy többgenerációs együttélésre vágyóknak.
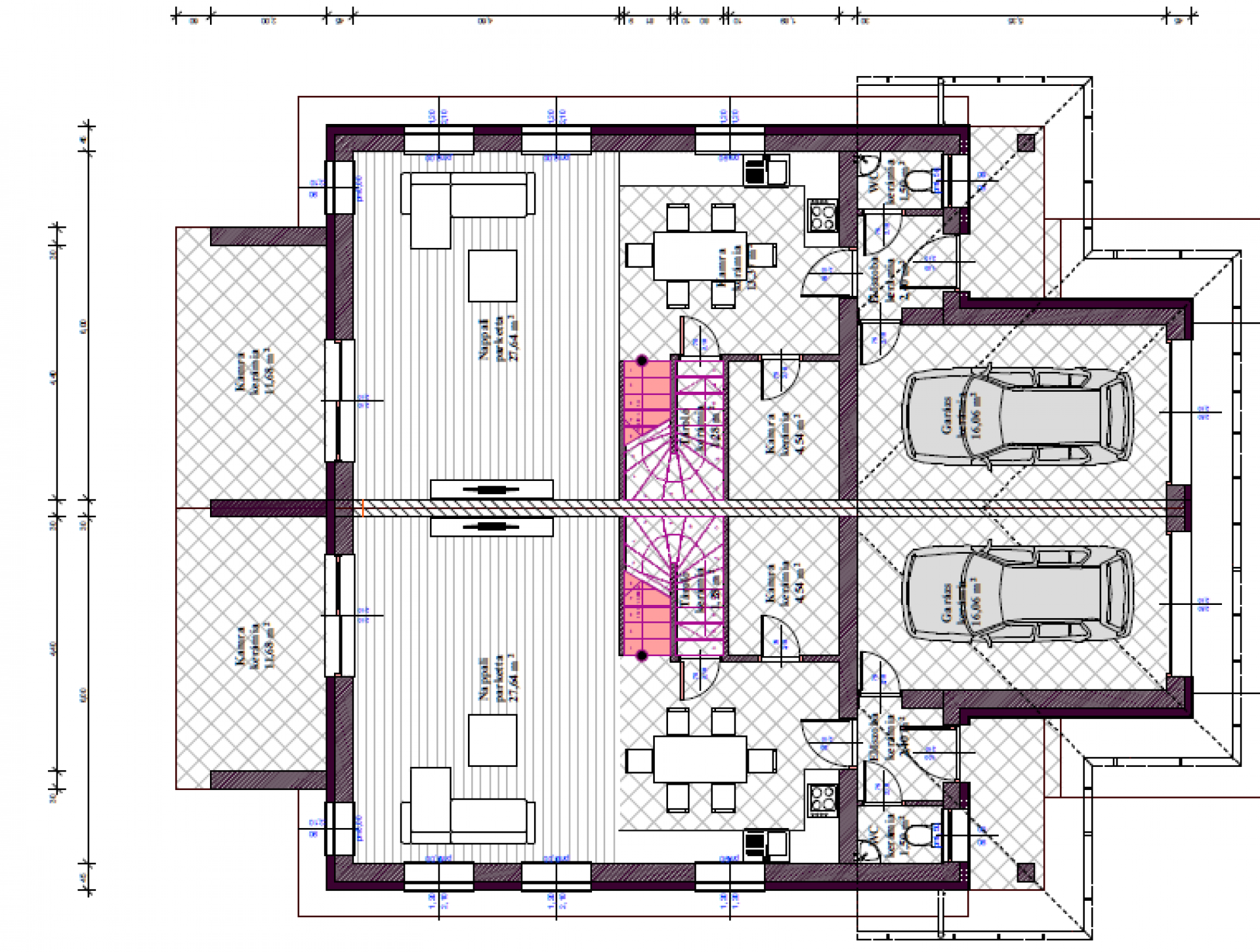
Földszint – 66,97 m² + terasz + kert:
Nappali (27,64 m²) + konyha-étkező (13,37 m²)
Garázs (16,06 m²)
Kamra, tároló, előtér, WC
Terasz: 11,68 m²
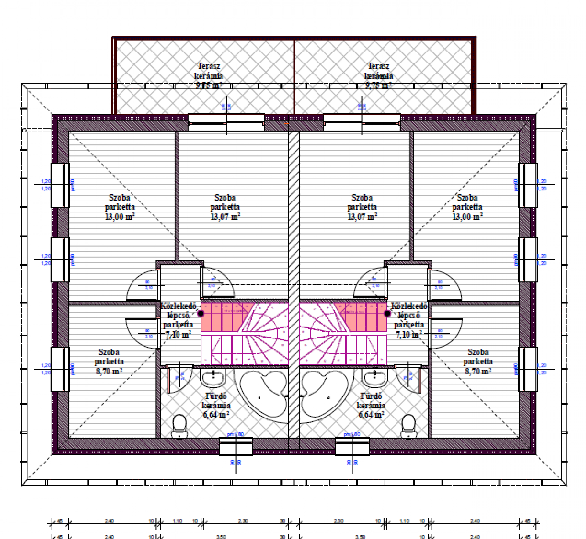
Emelet – 48,50 m² + terasz:
3 szoba (13 m², 13,07 m², 8,7 m²)
Fürdőszoba + WC
Közlekedő
Terasz: 9,75 m²
Műszaki tartalom:
Beton alap, 30-as tégla főfalak, 15 cm dryvit hőszigetelés
3 rétegű hőszigetelt műanyag nyílászárók
Beton födém lépésálló szigeteléssel
Cserép fedés, fóliázott tetőszerkezet
Padlófűtés + 1 db nappaliban elhelyezett hűtő-fűtő klíma
Igény szerint választható burkolatok (6.000 Ft/m²-ig) és beltéri ajtók (60.000 Ft/db-ig) felár nélkül
Szaniterek, csaptelepek egyénileg kiválaszthatók
- Parkolás:
1 autós saját garázs
fedetlen felszíni beálló a telken belül
- Kiváló lokáció:
Buszmegálló, óvoda, iskola, bevásárlási lehetőségek néhány percnyi sétára.
- Érdeklődjön most, és alakítsa saját ízlése szerint új otthonát!
További információkért és műszaki tartalomért keressen bizalommal!
| Értékesítés | Eladó |
| Település | Budapest XXII. kerület |
| Ingatlan típusa | Ikerház |
| Szobák száma | Nappali + 3 |
| Ingatlan állapota | Új építésű |
| Fűtés | Hőszivattyú |
| Építés éve | 2025 |
| Épület szintjei | 2 |
| Komfort | Összkomfort |
| Parkolás | Garázsban és telken belül is |
| Kilátás | Udvarra és utcára néző |
| Kertkapcsolatos | Igen |
| Fürdő és WC | Egyben és külön is |
| Légkondicionáló | Van |
| Belmagasság | 2,8 m |
| Akadálymentesített | Nem |
| CSOK | Igen |
![[@title]](https://res.cloudinary.com/nestagency/image/fetch/c_fill,w_480,h_480,q_auto,f_auto/e_sharpen/https://www.nestagency.hu/uploads/workers/1634661660-246345284_243276024483999_8574759661986451745_n.jpg)

















