Budapest - Budafokon Új építésű ikerház eladó
Mindkét lakás utcafrontos, nincs szolgalmi út
Budapest - Budafokon Új építésű ikerház eladó
TAVASZI AKCIÓ!
5 MILLIÓ KEDVEZMÉNY! 152 M HELYETT 147 M FT!
MÁR CSAK EGY LAKÁS ELÉRHETŐ!
ÚJ ÉPÍTÉSŰ IKERHÁZI OTTHON – NYUGODT CSALÁDI KÖRNYEZETBEN
Budapest XXII. kerületében Budafokon, aszfaltozott utcában, kifejezetten családi házas, csendes és barátságos környezetben kínálunk megvételre egy modern kialakítású, belső kétszintes ikerházi lakást.
Főbb jellemzők:
- Új építésű ikerházi lakás
- Saját utcafronti bejárat
- Nappali + 4 szoba
- Teraszok + saját kert (294 m²)
- Udvari gépkocsibeálló
- Hőszivattyús fűtés, padlófűtéssel
Kezdődő építkezés. A jelenlegi állapotban még egyéni módosítások kérhetők az alaprajzi elrendezésbe.
Mindkét lakás egyforma alapterület és elosztású! A lakások alapterülete: 94 m² + 9,14 m2 + 3,88 m2 teraszok
Várható átadás: 2026. június
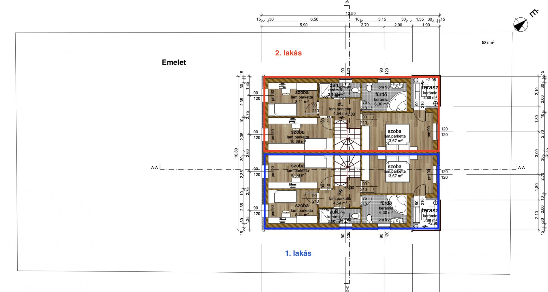
Elrendezés
Földszint (46,54 m² + terasz + kert):
- Előszoba (6,51 m²)
- Háztartási helyiség (5,1 m²)
- Konyha–étkező (6,94 m²)
- Nappali (19,89 m²)
- Szoba (8,1 m²)
- Terasz (9,12 m²)
Emelet (41,89 m² + terasz):
- Közlekedő (6,34 m²)
- Fürdőszoba + WC (6,3 m²)
- 3 hálószoba (8,34 m² | 7,24 m² | 13,67 m²)
- Terasz (3,88 m²)
Műszaki tartalom – minőség hosszú távra
- Beton sávalap, beton födém
- 30 cm-es téglafőfal + 15 cm dryvit hőszigetelés
- 10 cm-es válaszfalak
- 3 rétegű, 5 légkamrás műanyag nyílászárók
- 20 cm födémszigetelés
- Cserépfedésű tető
- Belső burkolatok és ajtók igény szerint választhatók
Fűtés és energiahatékonyság
- Lakásonként Daikin 8 kW-os hőszivattyú
- Minden helyiségben padlófűtés
- Meleg víz hőszivattyús tárolóról
Parkolás - Zárt udvaron belül 1–2 gépkocsi számára felszíni beálló
Kiváló elhelyezkedés
- Buszmegálló pár perc sétára
- Óvoda, iskola, boltok, gyógyszertár a közelben
Ideális választás családoknak, akik nyugodt, zöldövezeti környezetben szeretnének élni, jó infrastruktúrával
Megbízható kivitelező
- Több éves szakmai tapasztalat
- Az ingatlan. saját tőkéből épít, nem vevői finanszírozással
- Számos elkészült referencia megtekinthető a környéken
További hasonló új építésű ingatlanok is elérhetők kínálatunkban.
Amennyiben hitelre van szüksége, bankfüggetlen hiteltanácsadónk díjmentesen segít!
További infomációkért keressen bizalommal a hét bármely napján!
| Értékesítés | Eladó |
| Település | Budapest |
| Ingatlan típusa | Ikerház |
| Szobák száma | Nappali + 4 |
| Ingatlan állapota | Új építésű |
| Fűtés | hőszivattyú, padlófűtés |
| Épület szintjei | 2 |
| Komfort | Összkomfort |
| Kertkapcsolatos | Igen |
| Erkély | van |
| Fürdő és WC | Egyben és külön is |
![[@title]](https://res.cloudinary.com/nestagency/image/fetch/c_fill,w_480,h_480,q_auto,f_auto/e_sharpen/https://www.nestagency.hu/uploads/workers/1779256664-1779256639-névtelen-terv.jpg)

















