Budapest XXII. kerületében ÚJ ÉPÍTÉSŰ ikerház eladó
Nappali + 3 vagy 4 szobás lakások, utcafrontos bejárattal, 300 m2 telekkel,
Budapest XXII. kerületében ÚJ ÉPÍTÉSŰ ikerház eladó
JOBB OLDALI LAKÁS ELADVA!
ÚJ ÉPÍTÉSŰ IKERHÁZ ELADÓ – BUDAPEST XXII. KERTVÁROSI RÉSZÉN
NINCS SZOLGALMI ÚT!
TÁRSASHÁZI ALAPÍTÓ OKIRATTAL!
Budapest XXII. kerületének kedvelt kertvárosi részén eladó egy modern, új építésű ikerház mindkét lakása. Az ingatlan egy 610 m²-es telekre épül, a lakásokhoz kb. 300 m² saját, teljesen elszeparált kert tartozik. Mindkét otthon önálló utcafronti bejárattal rendelkezik, nincs szolgalmi út!
Főbb jellemzők:
- Lakások mérete: bruttó 87,7 m² + 7,02 m² terasz
- Elosztás: nappali + 3 (vagy igény szerint 4) szoba
- Belső kialakítás: építkezés kezdeti szakaszában, egyénileg alakítható
- Minőségi kivitelezés, megbízható építtetővel – referencia a környéken megtekinthető.
Átadás: 2026 első negyedév
Műszaki tartalom:
- Teherhordó falak: 30 cm Porotherm NF tégla
- Hőszigetelés: 15 cm EPS
- Nyílászárók: műanyag szerkezet, 3 rétegű üvegezéssel, argongáz töltéssel
- Fűtés: korszerű hőszivattyús rendszer
- Burkolatok: választhatók (hideg és meleg burkolatok)
- Tető: nyeregtető, cserépfedéssel
- Extrák: fóliás ajtók, redőnyök
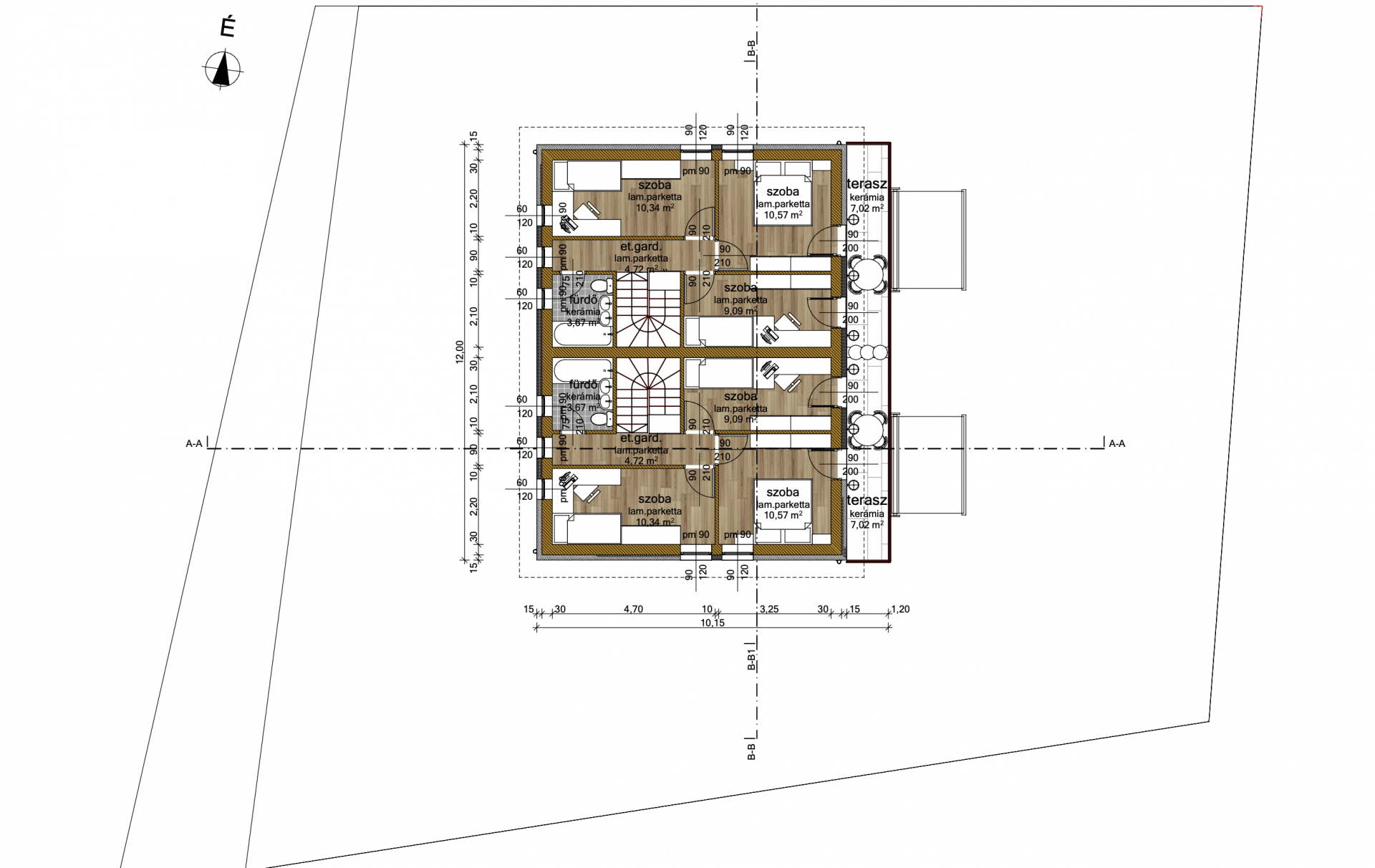
Helyiségek:
Fsz (49,31 m2)
- Nappali-étkező-konyha: 40,29 m2 (egy szoba még kialakítható)
- Háztartási h.: 3,44 m2
- Előszoba: 3,91 m2
- Wc: 1,67 m2
Emelet (38,39 m2)
- Közlekedő 4,72 m2
- Fürdő 3,67 m2
- Szoba 10,34 m2
- Szoba 10,57 m2
- Szoba 9,09 m2
Terasz, 7,02 m2
Parkolás: saját udvari beálló
Az ingatlant tőkeerős, megbízható cég építi, referencia ház megtekintehtő a környéken.
További információkért keressen elérhetőségeimen a hét bármely napján!
| Értékesítés | Eladó |
| Település | Budapest |
| Ingatlan típusa | Ikerház |
| Szobák száma | Nappali + 4 |
| Ingatlan állapota | Új építésű |
| Fűtés | hőszivattyú, padlófűtés |
| Építés éve | 2025 |
| Épület szintjei | 2 |
| Komfort | Összkomfort |
| Parkolás | Udvari beálló - benne van az árban |
| Kertkapcsolatos | Igen |
| Erkély | van |
| Fürdő és WC | Egyben és külön is |
| CSOK | Igen |
![[@title]](https://res.cloudinary.com/nestagency/image/fetch/c_fill,w_480,h_480,q_auto,f_auto/e_sharpen/https://www.nestagency.hu/uploads/workers/1774180865-1774180460-1774180441-be99232b-6d35-4897-8f10-9863cbb54ffd.jpg)






















.jpg)
