Családi házak - Pusztaszabolcs
Pusztaszabolcs - családi házak eladók!
Családi házak - Pusztaszabolcs
Modern kivitelezés, minőségi műszaki tartalom, garázs és saját telekrész
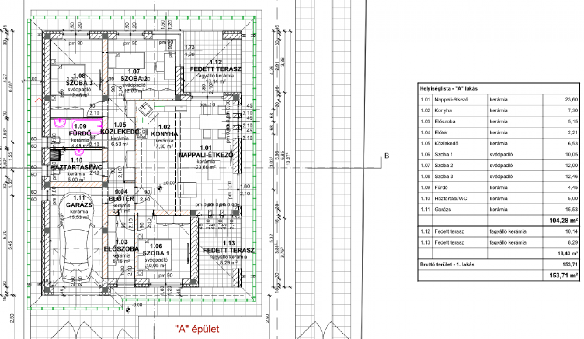
Eladásra kínálok Pusztaszabolcson, új építésű házak környezetében önálló (iker) családi házat bruttó 153,71 m² alapterületű, nappali + 3 szobás, földszintes, kertkapcsolatos családi házat, 520 m²-es telekkel. Az ingatlan minden részletében a modern otthonteremtés elvárásainak felel meg – mind esztétikai, mind műszaki szempontból.
Minden elérhető támogatás és kedvezmény igénybe vehető!
CSOK +, kamattámogatott hitel, szeptembertől 3 %-os Otthon Start Hitel!
Műszaki tartalom:
- Vasbeton sávalap
- Falazat : 30-as tégla
- Gépi vakolás
- 15 cm szigetelés + 15 cm-es közetgyapot
- Betoncserép fedés
- 3 rétegű múanyag ablakok
- Hőszivattyús - padlófütéssel és szobákban radiátorok
- Helységek:
- közlekedő: 6,53 m2
- nappali + étkező: 23,6 m2
- konyha: 7,3 m2
- szobák: 10,05 + 12 + 12,46 m2
- fürdő + WC: 4,45 m2
- előszoba: 5,15 + 2,21 m2
- házt.helység + wc: 5 m2
- teraszok: 10,14 + 8,29 m2
- garázs:15,53 m2
Infrastruktúra és környezet
A családbarát környezetnek köszönhetően a városrész folyamatosan és látványosan fejlődik. A mindennapi élethez szükséges szolgáltatások – bevásárlási lehetőségek, óvoda, iskola, vasútállomás – kényelmes sétatávolságon belül megtalálhatók. Így azok számára is ideális választás, akik autó nélkül, de a fővároshoz közel képzelik el mindennapjaikat.
További információért, megtekintéssel kapcsolatban a hét bármely napján készséggel állok rendelkezésére!
| Értékesítés | Eladó |
| Település | Pusztaszabolcs |
| Ingatlan típusa | Családi ház |
| Szobák száma | Nappali + 3 |
| Ingatlan állapota | Új építésű |
| Fűtés | Hőszivattyú, padlófűtés |
| Építés éve | 2025 |
| Épület szintjei | Földszintes |
| Komfort | Összkomfort |
| Parkolás | Garázsban és telken belül is |
| Kilátás | Udvarra és utcára néző |
| Kertkapcsolatos | Igen |
| Erkély | 20 m2 |
| Fürdő és WC | Egyben |
| Belmagasság | 2,70 |
| Akadálymentesített | Igen |
| CSOK | Igen |
| Víz | Van |
| Villany | Van |
| Csatorna | Van |
![[@title]](https://res.cloudinary.com/nestagency/image/fetch/c_fill,w_480,h_480,q_auto,f_auto/e_sharpen/https://www.nestagency.hu/uploads/workers/1738056365-131.jpg)























