Diósdon új építésű ikerház eladó
Nappali + 4 szobás, 2 fürdőszobás, szeparáltan használható, garázsoknál érintkező ingatlanok
Diósdon új építésű ikerház eladó
DIÓSDON GARÁZZSAL ÉRINTKEZŐ IKERHÁZ ELADÓ
NAPPALI + 4 SZOBA, 2 FÜRDŐSZOBA, ÖNÁLLÓ GARÁZS, TÁGAS TERASZOK, SAJÁT KERT, GARANCIÁLIS!
Az ikerház 1.285nm-es telken épül szép zöld környezetben.
Átadás 2025. október.
A házak belső kétszintesek, kényelmes elosztásúak, optimális tájolásúak, melynek köszönhetően a terek napfényesek, világosak.
A házakban tágas nappali-étkező-konyha, 4 szoba, 2 fürdőszoba, gardróbhelyiség és külön mosókonyha található. A parkolást lakásonként 1 gépkocsitároló + 1 felszíni beálló biztosítja.
A házak kizárólag a garázsoknál csatlakoznak, az emeleti szinten nincs közös fal, mivel a lakások nem érnek össze.
A földszinti teraszon felül az emeleten is található egy tágas, félig fedett tetőterasz.
Mindkét lakás alapító okiratban jegyzett kizárólagos használatú kerttel rendelkezik.
A fűtésről és melegvíz ellátásról lakásonkénti hőszivattyú gondoskodik, a hőleadás padlón -, a hűtés mennyezeten keresztül történik. A melegvíz tárolását lakásonként egy 230 literes beépített hmv tároló biztosítja.
A lakások önálló, hővisszanyerős szellőztetőrendszerrel felszereltek.
Rövid műszaki ismertető:
- Alapozás: vasbeton sávalap
- Főfalak: 30 N+F Porotherm falazóblokkokból megépülő falak
- Válaszfalak: 10 N+F Porotherm falazóblokkokból megépülő falak
- Tető: 40°-os nyeregtető, vasbeton födémre ültetett tetőszerkezettel, sötétbarna színű korcolt fémlemez tetőhéjalással
- Homlokzati nyílászárók: 3 rétegű hőszigetelt, dekorfóliázott nyílászárók barna színben
- Beltéri ajtók: kilinccsel bruttó 100.000,-Ft/db értékhatárig választhatók
- Hideg-melegburkolat: bruttó 10.000,-Ft/nm értékhatárig választhatók
- Szaniterek árlista alapján választhatók
- Homlokzati szigetelés: 15cm vastag EPS táblás hőszigetelő rendszer
- Födém szigetelés: 2x15cm vastag szálas kőzetgyapot szigetelés
- Felületképzések: homlokzaton törtfehér színű nemesvakolat + ragasztott Travertin díszburkolat, belső falak fehér színben kerülnek átadásra
Részletes felszereltséget tartalmazó műszaki leírással állok rendelkezésére, mely az adásvételi szerződés melléklete is egyben!
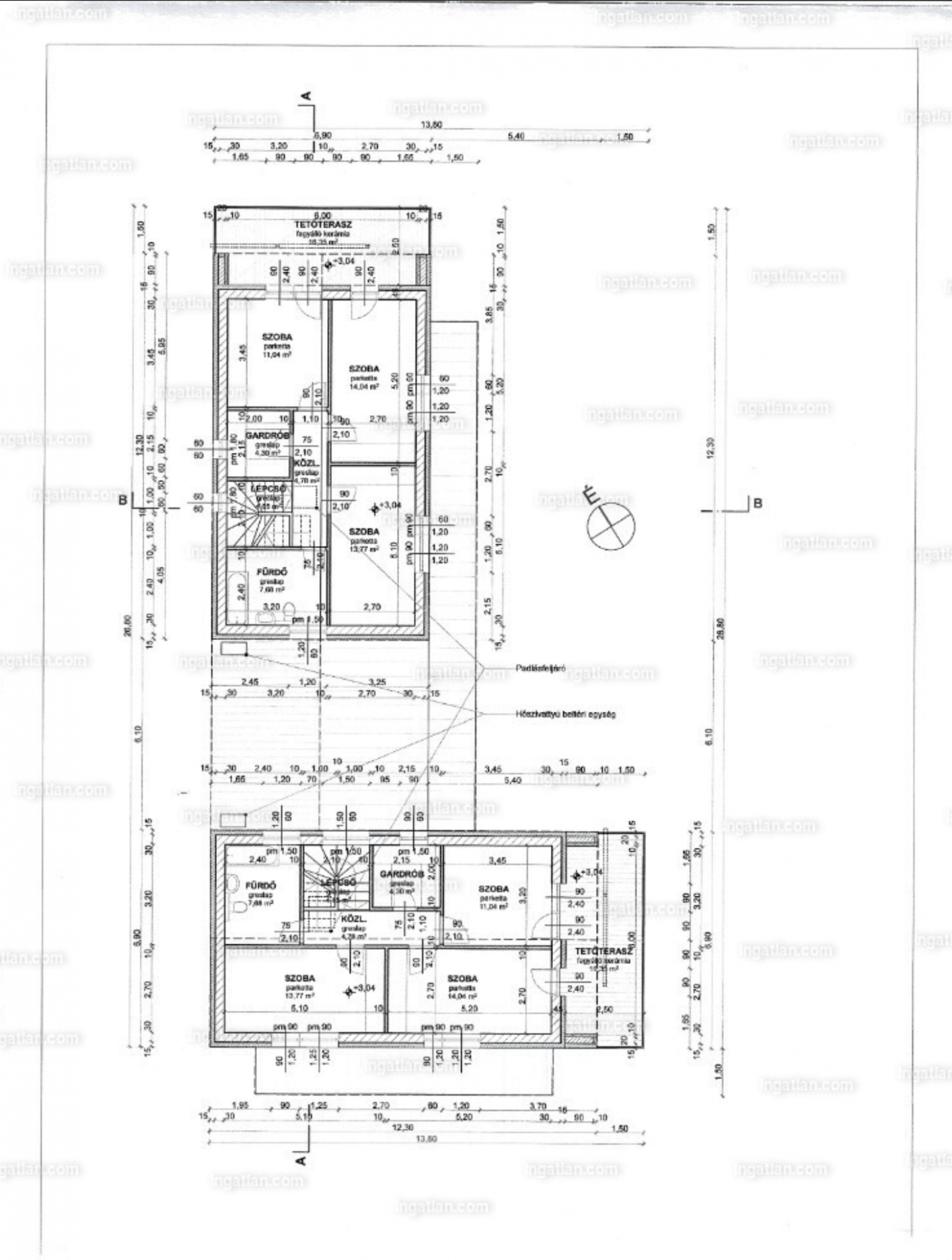
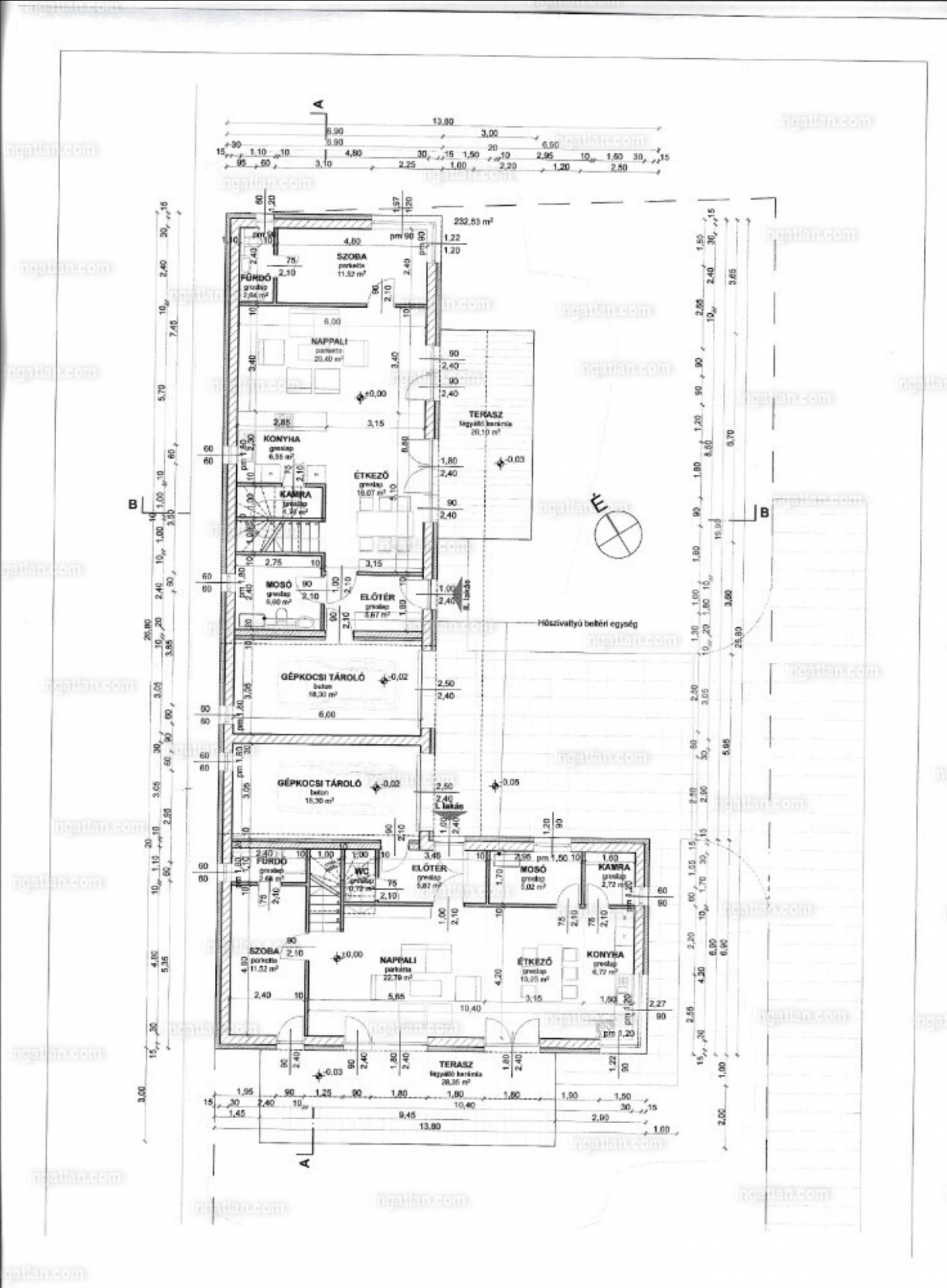
Helyiséglista:
Jelen hirdetésben a 2-es ikerház (hátsó) szerepel
Földszint:
- Garázs 18.30nm
- Előtér 5.67nm
- Mosókonyha - WC/gépészet 6.60nm
- Konyha 6.55nm
- Kamra 1.78nm /+ a lépcső alatti 1.90cm alatti rész/
- Étkező 16.07nm
- Nappali 20.40nm /Tájolás DK/
- Szoba 11.52nm
- Tusoló 2.64nm
- Terasz 20.10nm /Tájolás DK/
Nettó szintterület: 89.53nm
Bruttó szintterület: 109.63nm
Emeleti szint:
- Lépcső 4.85nm
- Közlekedő 4.78nm
- Gardrób 4.30nm
- Szoba 11.04nm
- Szoba 14.04nm
- Szoba 13.77nm
- Kádas fürdőszoba 7.68nm
- Tetőterasz 16.35nm /Tájolás ÉK/
Nettó szintterület: 60.46nm
Bruttó szintterület: 76.81nm
Hasznos alapterület: 149.99nm
Bruttó alapterület: 186.44nm
További információkért keressen elérhetőségeimen a hét bármely napján.
| Értékesítés | Eladó |
| Település | Diósd |
| Ingatlan típusa | Ikerház |
| Szobák száma | Nappali + 4 |
| Ingatlan állapota | Új építésű |
| Fűtés | Hőszivattyú, padlófűtés |
| Építés éve | 2025 |
| Épület szintjei | 2 |
| Komfort | Duplakomfort |
| Parkolás | Önálló garázsban, amit az ár tartalmaz |
| Kilátás | Udvarra néző |
| Kertkapcsolatos | Igen |
| Erkély | van |
| Fürdő és WC | Egyben és külön is |
![[@title]](https://res.cloudinary.com/nestagency/image/fetch/c_fill,w_480,h_480,q_auto,f_auto/e_sharpen/https://www.nestagency.hu/uploads/workers/1634661660-246345284_243276024483999_8574759661986451745_n.jpg)













