Eladó 24 szobás vendégház Bükön
Eladó 24 szobás vendégház Bükön – központ közeli, csendes utcában, nagy telekkel!
Eladó 24 szobás vendégház Bükön
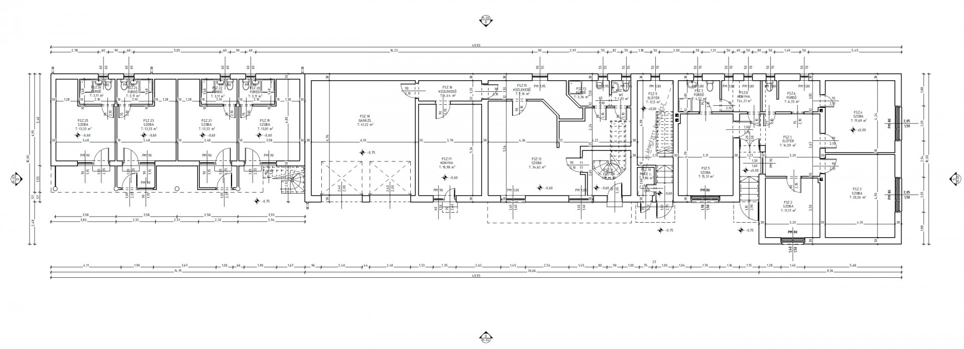
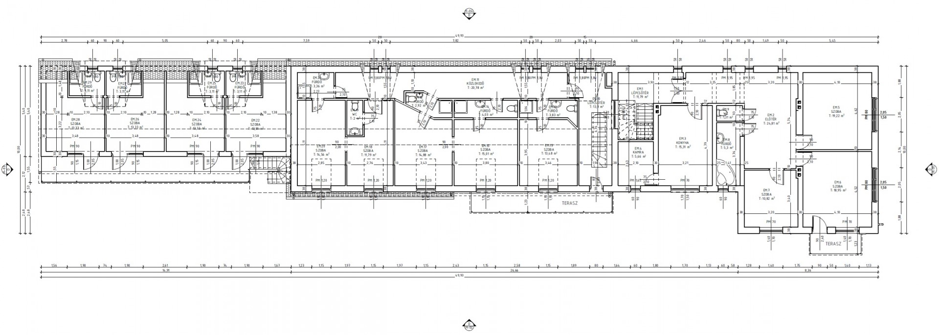
Bük egyik legkedveltebb, nyugodt részén, rendezett, aszfaltozott utcában kínálunk megvételre egy kiváló állapotban lévő, 24 szobás vendégházat, amely munkásszállóként, apartmanházként vagy panzióként is tökéletesen hasznosítható.
Az ingatlan egy 1292 m²-es, gondozott telken helyezkedik el, 584 m² hasznos alapterülettel, tégla falazattal és cserépfedéssel épült.
Főbb jellemzők:
24 szoba, több külön bejáratú egységgel
19 fürdőszoba és több külön WC
közös, jól felszerelt konyha és étkező
háztartási helyiség, garázs, fedett pihenőtér
fedett gépkocsibeálló
közművek: víz, villany, gáz, szennyvízcsatorna, ipari áram
fűtés: gázkonvektor
melegvíz- és áramellátás napelemekkel biztosított
Felhasználási lehetőségek:
- Vendégház vagy panzió
- Munkásszállás / céges szálláshely
- Apartmanház, hosszú távú kiadásra
- Orvosi, egészségügyi vagy turisztikai célú hasznosítás
A ház elhelyezkedése, mérete és kialakítása miatt stabil befektetés lehet mindazok számára, akik jövedelmező szálláshelyet vagy többfunkciós ingatlant keresnek Bük frekventált, mégis csendes részén.
További információkért keressen elérhetőségeimen a hét bármely napján!
| Értékesítés | Eladó |
| Település | Bük |
| Ingatlan állapota | Jó állapotú |
| Parkolás | Udvari beálló |
| Fürdő és WC | Külön |
| Víz | Van |
| Villany | Van |
| Gáz | Van |
| Csatorna | Van |
![[@title]](https://res.cloudinary.com/nestagency/image/fetch/c_fill,w_480,h_480,q_auto,f_auto/e_sharpen/https://www.nestagency.hu/uploads/workers/1634661660-246345284_243276024483999_8574759661986451745_n.jpg)

















