Eladó családi ház Törökbálinton a Tükörhegyen.
Eladó családi ház Törökbálinton a Tükörhegyen – Ideális két generáció számára is!
Eladó családi ház Törökbálinton a Tükörhegyen.
Eladó családi ház Törökbálinton a Tükörhegyen – Ideális két generáció számára is!
Az ingatlan ideális nagycsaládosoknak vagy két generációs együttéléshez, hiszen a ház két külön nappali térrel, 4 tágas hálószobával és 2 fürdőszobávalrendelkezik.
Az ingatlan 2002-ben épült, 30-as Porotherm téglából 10 cm vastag dryvit szigeteléssel.
A nyílászárók műanyagból készültek 2 rétegű üvegezéssel.
A két szint között 20 cm vastag monolit betonfödém található.
A padlástérben vízszintes 10 cm vastag kőzetgyapot szigetelés van.
A tető héjazata Bramac betoncserép.
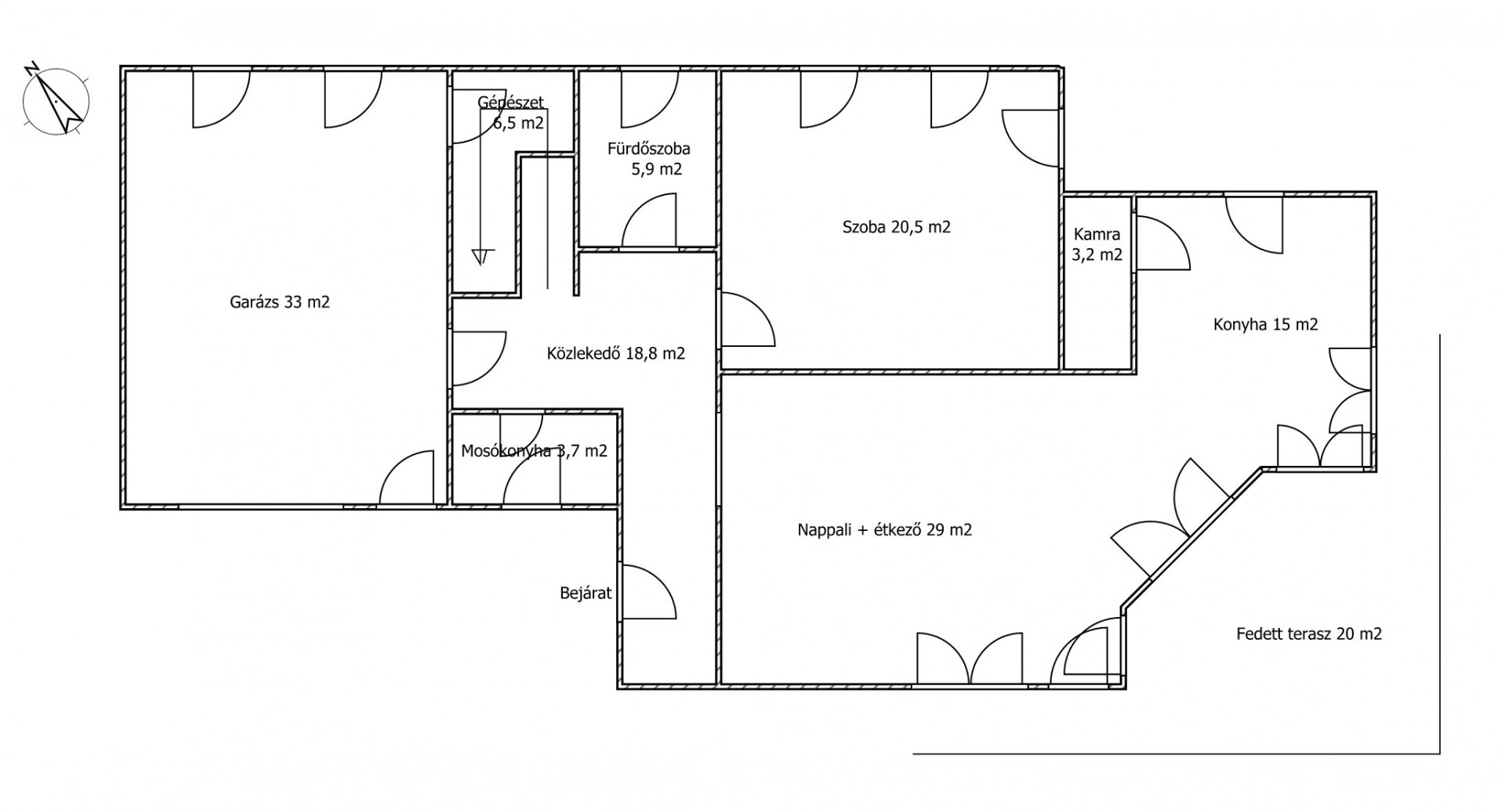
Ház alapterülete nettó244 m² két szinten plusz a 33 m2-es kétállásos garázs.
Az alsó szinten található: szoba 20,5m2, nappali+étkező 29m2, konyha 15m2,
kamra 3,2m2, fürdőszoba 5,9m2, mosókonyha 3,7m2, közlekedő 18,8m2, gépészeti
helyiség 2,35m2 és a kétállásos garázs, ami 33m2.
A nappaliból közvetlen teraszkapcsolattal rendelkezik, a fedett terasz 20m2 nagyságú.
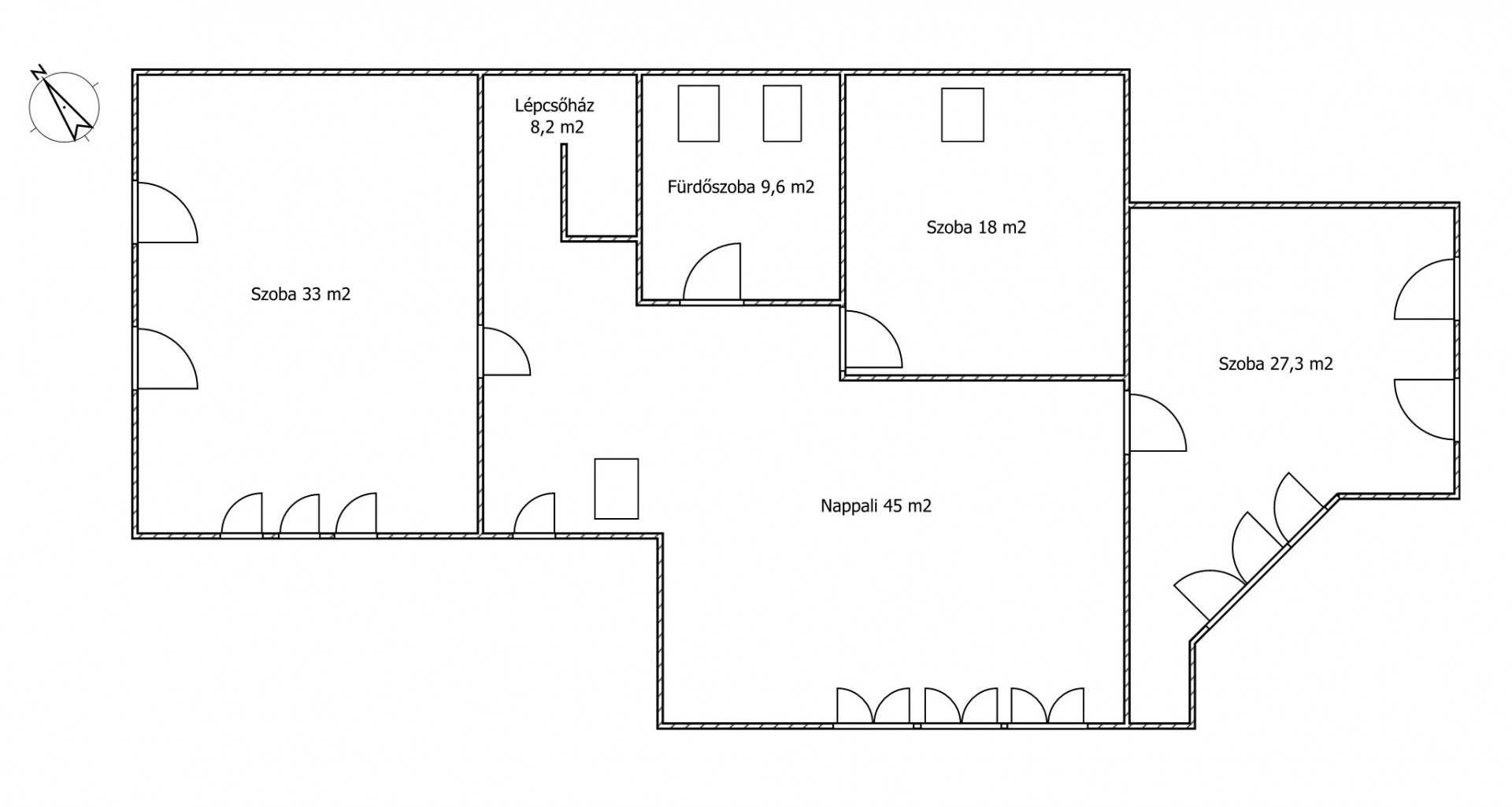
Az emeleten van három szoba, ami egyenként 33, 27 és 18m2-es, továbbá itt is található egy nappali szoba, ami 45m2 illetve a fürdőszoba, ami 9,6m2-es.
Az épületről alaprajz található a képek között.
Az ingatlan azonnal költözhető.
A fűtését gázcirkó biztosítja, radiátoros hőleadással.
A telek 800 m2-es füvesített, fákkal és bokrokkal ültetett, itt kapott helyet a 6x3 méteres kültéri medence is.
Várom a megtisztelő hívását.
| Értékesítés | Eladó |
| Település | Törökbálint - Tükörhegy |
| Ingatlan típusa | Családi ház |
| Ingatlan állapota | Jó állapotú |
| Fűtés | Kombi cirkó |
| Építés éve | 2002 |
| Épület szintjei | Földszintes |
| Tetőtér | Beépített |
| Komfort | Összkomfort |
| Parkolás | Garázsban és telken belül is |
| Kilátás | Udvarra néző |
| Kertkapcsolatos | Igen |
| Fürdő és WC | Egyben |
| Költözhető | azonnal |
![[@title]](https://res.cloudinary.com/nestagency/image/fetch/c_fill,w_480,h_480,q_auto,f_auto/e_sharpen/https://www.nestagency.hu/uploads/workers/1634720407-FaceAPP2.jpg)







