Eladó Érd Parkvárosban Új Építésű Családi Ház
Érd csendes, kedvelt utcájában, nappali + 3 szobás családi ház, garázzsal, terasszal, privát kerttel
Eladó Érd Parkvárosban Új Építésű Családi Ház
Új Építésű Családi Ház Érd Parkvárosban!
ENERGIATAKARÉKOS OTTHON A+
20 ÉVES TAPASZTALATTAL RENDELKEZŐ TŐEKEERŐS BERUHÁZÓTÓL
CSOK +, KAMATTÁMOGATOTT HITEL IGÉNYELHETŐ
Eladásra kínálok Érd Parkváros kedvelt részén faneves utcában egy 139 m²-es alapterületű, modern, új építésű családi házat, amely 778 m²-es, önálló telken helyezkedik el.
A ház nettó alapterülete 125,5 m², déli tájolású, amerikai konyhás nappali-éztkezővel + 3 kényelmes hálószobával rendelkezik, valamint egy 21,3 m²-es garázzsal, amely akár 4. szobává is alakítható. Ideális választás családok számára, akik tágas, modern, világos otthonra vágynak.
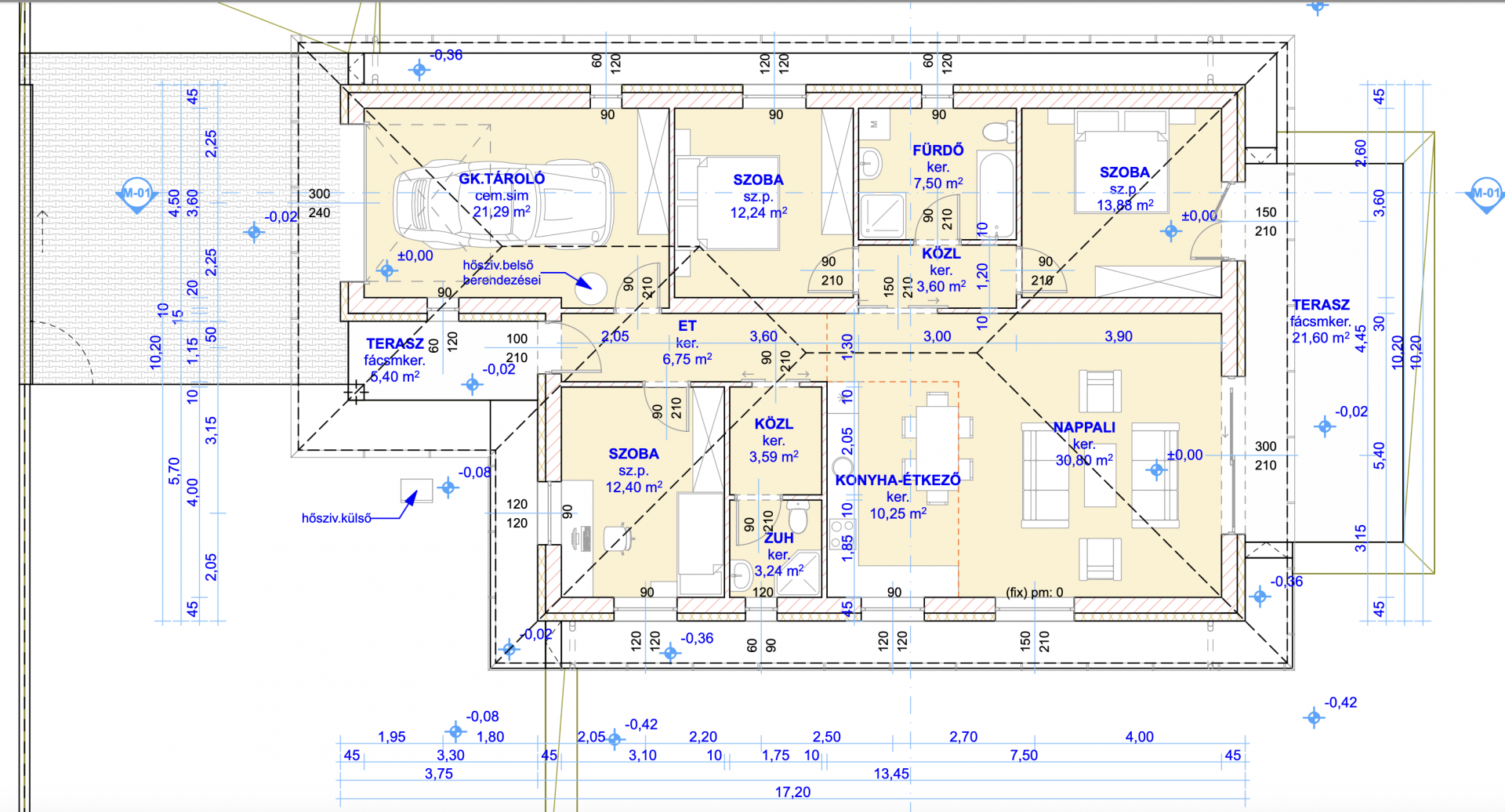
HELYISÉGLISTA
- Előtér: 6,75 m²
- Fürdőszoba: 7,50 m²
- Garázs: 21,29 m²
- Konyha-étkező: 10,25 m²
- Közlekedő 1: 3,59 m²
- Közlekedő 2: 3,60 m²
- Nappali: 30,80 m²
- Szoba 1: 13,88 m² , Szoba 2: 12,40 m², Szoba 3: 12,24 m²
- Zuhanyzós fürdő: 3,24 m²
Terasz 1: 21,60 m²
Terasz 2: 5,40 m²
Összes nettó lakótér: 125,54 m²
Teraszok összesen: 27,00 m²
MŰSZAKI TARTALOM
- Porotherm 30K falazat, 15 cm hőszigetelés, DÜFA színvakolat
- Nyeregtetős, fagerendás födém, cserépfedéssel, 15 cm kőzetgyapot szigeteléssel
- Monolit vasbeton koszorú, kerámia áthidalók a nyílászárók fölött
- Műanyag nyílászárók, 5 légkamrás, 3 rétegű üvegezés
- Padlófűtés hőszivattyúval, fürdőben törölközőszárítós radiátor
- Klíma előkészítés, Legrand kapcsolók és konnektorok
- Beton zsalukő kerítés, 4 méteres motoros úszókapuval és beépített kiskapuval
EXTRÁK
- Elektromos kapu
- Riasztórendszer
- Redőnyök
- Kaputelefon
Egyedi burkolatok, szaniterek – megbeszélés szerint választhatók
A kivitelező egy megbízható, 20 éves tapasztalattal rendelkező vállalkozó, aki a minőség mellett személyre szabott megoldásokat kínál.
Számos referencia ingatlan megtekinthető a környéken.
A fotók közt referencia fotók is találhatók.
Várható átadás: 2026
INFRASTRUKTÚRA
Kiváló közlekedés: gyors kijutás az M7, M1, M6 és M0 autópályákra, pár percre iskolák, óvodák, rendelők, bevásárlási lehetőségek.
A beruházótól jelenleg 5 eladó családi ház megvásárolható elhelyezkedéstől és alapterülettől függően 109 M és 130 M Ft közötti áraban.
További információkért keressen bizalommal elérhetőségeimen a hét bármely napján.
| Értékesítés | Eladó |
| Település | Érd |
| Ingatlan típusa | Családi ház |
| Szobák száma | Nappali + 3 |
| Ingatlan állapota | Új építésű |
| Fűtés | hőszivattyú, padlófűtés |
| Építés éve | 2025 |
| Épület szintjei | Földszint |
| Parkolás | Garázsban |
| Kilátás | Udvarra néző |
| Kertkapcsolatos | Igen |
| Erkély | van |
| Fürdő és WC | Egyben és külön is |
| CSOK | Igen |
![[@title]](https://res.cloudinary.com/nestagency/image/fetch/c_fill,w_480,h_480,q_auto,f_auto/e_sharpen/https://www.nestagency.hu/uploads/workers/1634661660-246345284_243276024483999_8574759661986451745_n.jpg)




