Eladó földszintes új építésű családi ház Érden
ENERGIATAKARÉKOS, NAPPALI + 3 SZOBÁS OTTHON
Eladó földszintes új építésű családi ház Érden
ÚJ ÉPÍTÉSŰ, MODERN CSALÁDI HÁZ ÉRD VINCELLÉR RÉSZÉN– SAJÁT KERTTEL, GARÁZZSAL
Letisztult formavilág, innovatív gépészet, kiváló lokáció!
Érd egyik csendes, forgalomtól mentes utcájában kínálunk megvételre egy bruttó 110 m²-es, nappali + 3 hálószobás + terasz 18,70 m2 földszintes, saját kerttel és garázzsal rendelkező új építésű családi házat.
A kivitelező tőkeerős, megbízható cég, számos sikeresen átadott referenciával a környéken.
Az építkezés már megkezdődött, ütemezetten halad. Jelenlegi készültségi szinten a belső alaprajzi elrendezés még egyedileg módosítható, így a ház valóban a leendő tulajdonos igényeire szabható.
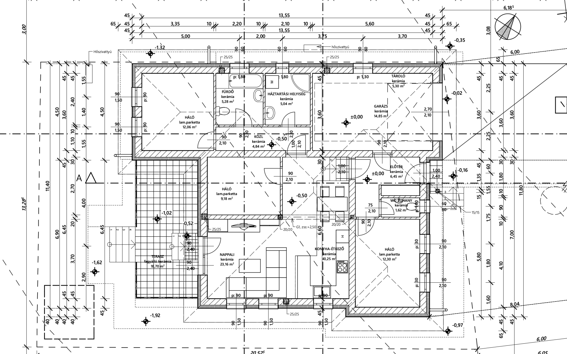
INGATLAN – ÁTGONDOLT TÉRKAPCSOLATOK, JÓL ÉLHETŐ ALAPRAJZ
A délkeleti tájolású, egyszintes családi ház tudatos tervezésének köszönhetően világos, praktikus terekkel rendelkezik.
Helyiségek az alaprajz szerint:
• Előtér: 6,45 m²
• Közlekedő: 4,84 m²
• Amerikai konyhás-étkezős nappali: 23,16 m²
• Konyha–étkező: 10,25 m²
• Hálószoba: 12,30 m²
• Hálószoba: 12,06 m²
• Hálószoba: 9,18 m²
• Fürdőszoba: 5,28 m²
• WC–zuhanyzó: 1,62 m²
• Háztartási helyiség: 5,04 m²
• Tároló: 5,30 m²
• Garázs: 14,85 m²
A nappaliból közvetlen kijárat nyílik a 18,70 m²-es, fedett teraszra, amely tökéletes helyszíne a családi és baráti összejöveteleknek.
KERT
• 606 m²-es telek
• Parkosított, teraszos kialakítás
• Ideális méret pihenéshez, gyermekeknek vagy kerti sütögetéshez
PARKOLÁS
• 1 állásos, saját garázs
• Az udvaron további gépkocsi-beállási lehetőség kialakítható
MŰSZAKI TARTALOM – MODERN, ENERGIATAKARÉKOS MEGOLDÁSOK
• Korszerű tégla falazat, hőszigeteléssel
• Padlófűtés az egész házban
• hőszivattyú fűtés
• Modern nyílászárók
• Magas műszaki alapfelszereltség
• Burkolatok, szaniterek, belső ajtók választhatók
LOKÁCIÓ – NYUGALOM ÉS KIVÁLÓ KÖZLEKEDÉS
Az ingatlan környezetét csend és nyugalom jellemzi, miközben minden fontos intézmény gyorsan elérhető:
• Iskola, óvoda, játszótér
• Orvosi rendelő, gyógyszertár
• Bevásárlási lehetőségek, pékség
• Volánbusz megálló pár perc sétára
• M7 autópálya pár perc, M6 és M0 kb. 10 perc
Tervezett átadás: 2026. IV negyedév
További információkért keressen elérhetőségeimen a hét bármely napján.
| Értékesítés | Eladó |
| Település | Érd |
| Ingatlan típusa | Családi ház |
| Szobák száma | Nappali + 3 |
| Energetikai tanúsítvány | A |
| Ingatlan állapota | Új építésű |
| Fűtés | Hőszivattyú |
| Építés éve | 2026 |
| Épület szintjei | Földszintes |
| Komfort | Összkomfort |
| Parkolás | Garázsban |
| Kilátás | Udvarra néző |
| Kertkapcsolatos | Igen |
| Erkély | 18 m2 |
| Fürdő és WC | Egyben és külön is |
![[@title]](https://res.cloudinary.com/nestagency/image/fetch/c_fill,w_480,h_480,q_auto,f_auto/e_sharpen/https://www.nestagency.hu/uploads/workers/1774180865-1774180460-1774180441-be99232b-6d35-4897-8f10-9863cbb54ffd.jpg)
















