Eladó modern vendégház Vértesbogláron
Eladó modern vendégház Vértesbogláron – 2020-as építés, hőszivattyús fűtés, kiváló befektetési lehetőség!
Eladó modern vendégház Vértesbogláron
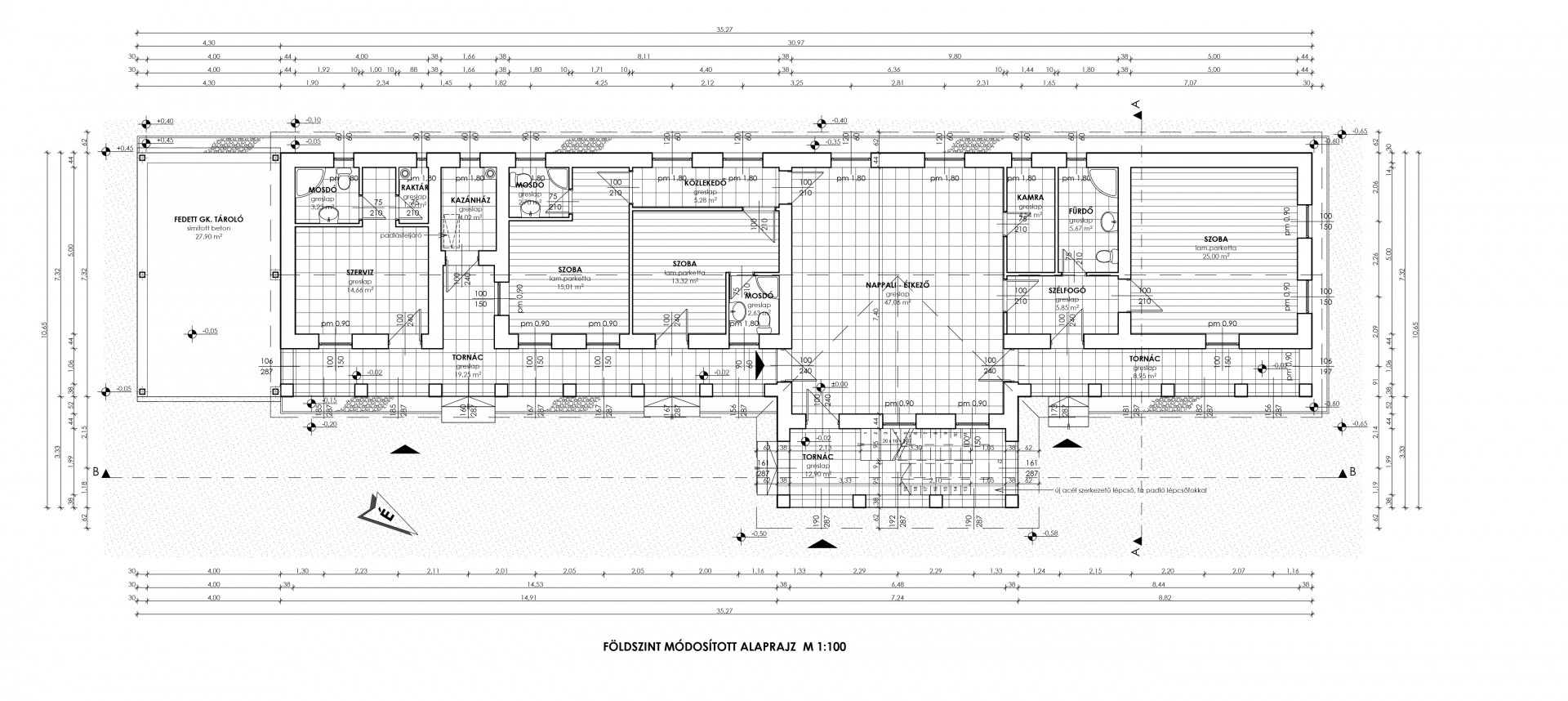
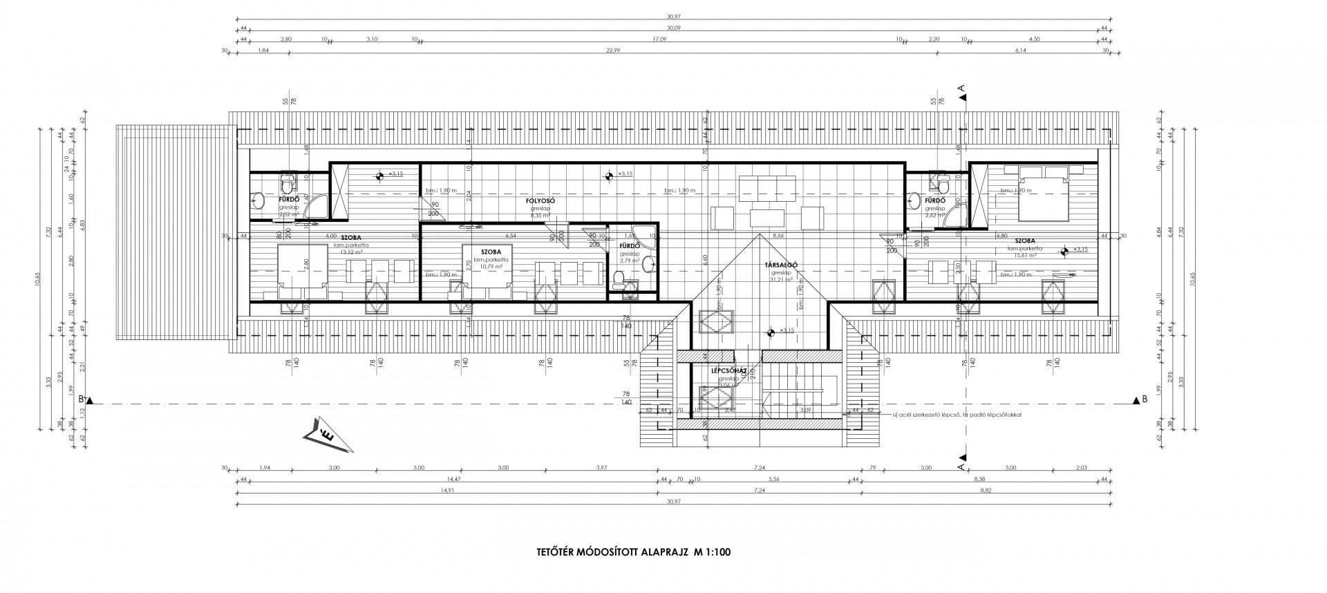
A Vértes lábánál, Vértesboglár csendes, természetközeli részén kínálunk megvételre egy újszerű, 2020-ban épült, 219 m²-es vendégházat, amely egy 736 m²-es, rendezett telken helyezkedik el.
A ház modern kialakításának, korszerű gépészetének és kényelmes elrendezésének köszönhetően ideális választás befektetőknek, vállalkozóknak vagy akár nagyobb családoknak is.
Főbb jellemzők:
6 külön bejáratú szoba + 2 közösségi helyiség
6 fürdőszoba és WC
Fűtés és melegvíz: hőszivattyú + fan-coil rendszer
Akadálymentesített épület, minden korosztály számára kényelmesen használható
Napelemek és energiatakarékos hőtechnika
Fedett gépkocsibeálló és tágas terasz
Tágas közösségi tér nagy, jól felszerelt konyhával és étkezővel
Felhasználási lehetőségek:
- Vendégház vagy panzió
- Munkásszállás
- Családi apartmanház
- Hosszú távú bérbeadás
Elhelyezkedése kiváló: Budapest, Tatabánya és Székesfehérvár is rövid idő alatt elérhető, így a ház könnyen megközelíthető, mégis nyugodt, zöld környezetben található.
Ez az ingatlan stabil, értékálló befektetés, amely hosszú távon is biztos megtérülést kínál.
További információkért keressen elérhetőségeimen a hét bármely napján!
| Értékesítés | Eladó |
| Ingatlan típusa | Vendégház |
| Szobák száma | 8 |
| Ingatlan állapota | Új építésű |
| Fűtés | hőszivattyú, padlófűtés, fan coil |
| Építés éve | 2020 |
| Komfort | Duplakomfort |
| Parkolás | Udvari beálló |
| Fürdő és WC | Egyben |
![[@title]](https://res.cloudinary.com/nestagency/image/fetch/c_fill,w_480,h_480,q_auto,f_auto/e_sharpen/https://www.nestagency.hu/uploads/workers/1634661660-246345284_243276024483999_8574759661986451745_n.jpg)

















































