Eladó Új Építésű Ikerház Budapest XXII. kerületében
2 szintes, nappali + 3 szobás, lakások, garázzsal, önálló kerttel NINCS SZOLGALMI ÚT, NINCS KÖZÖS TERÜLET,
Eladó Új Építésű Ikerház Budapest XXII. kerületében
Új építésű, modern ikerház eladó Budapest XXII. kerületében – saját kerttel, garázzsal!
Eladásra kínálok egy most épülő, modern ikerházat Budapest közkedvelt XXII. kerületében, egy csendes, családi házas övezetben, Campona közelében.
Az ingatlanok külön utcafrontos bejárattal rendelkeznek, nincs szolgalmi út, nincs közös terület – ez a nyugalom és privát élettér garanciája!
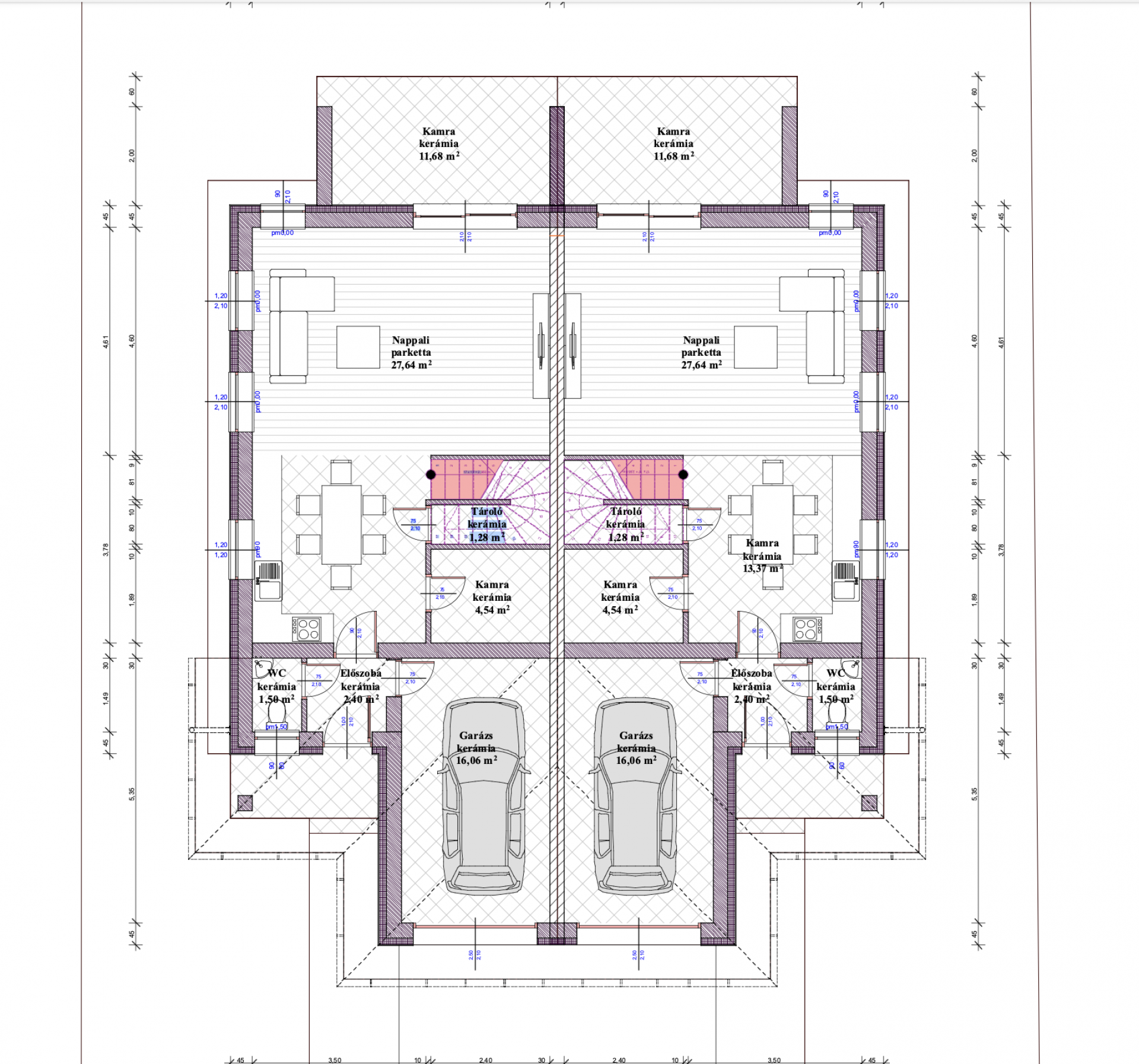
Az ikerház mindkét lakása egyforma, egymásnak tükörképei. Lakásonként 102 m2 alapterület + 11,68 m2 és 9,75 m2 terasz + 16,06 m2 garázs, nappali + 3 szoba, 550 m2 önálló kert.
Műszaki paraméterek:
- 30 cm-es tégla főfalak + 15 cm hőszigetelés
- 10 cm-es válaszfalak
- Műanyag nyílászárók, redőnyökkel
- Hőszivattyús fűtésrendszer (padlófűtéssel minden helyiségben)
- Klíma
- Elektromos garázskapu
- „H” tarifa igényelhető
A lakások TÁRSASHÁZI ALAPÍTÓ OKIRATTAL fognak rendelkeznek
Telekméret:
Teljes telek: 1100 m²
Lakásonként önálló használatú, 550 m² saját kert
Lakásonkénti helyiséglista és méretek:
Földszint:
- Nappali (parketta): 27,64 m²
- Konyha-étkező: kb. 13–14 m² + kamra 4,54 m²
- Kamra (kerámia): 13,73 m²
- Előtér: 2,71 m²
- Zuhanyzó: 1,96 m²
- WC (kerámia): 1,59 m²
- Tároló: 1,28 m²
Garázs: 16,06 m²
Terasz (kerámia): 11,68 m²
Emelet:
- Szoba 1: 13,07 m²
- Szoba 2: 13,00 m²
- Szoba 3: 8,70 m²
- Fürdőszoba (kerámia): 6,64 m²
- Közlekedő (lépcső): 7,10 m²
Terasz (kerámia): 9,75 m²
Extrák:
Új építés, leköthető fázisban
Megbízható kivitelező több referenciával (Érden, Tárnokon megtekinthetők)
CSOK Plusz és kamattámogatott hitel igénybe vehető
Kiváló közlekedés, Campona, iskolák, óvodák, szolgáltatások a közelben
Ne maradjon le erről a kiváló lehetőségről!
Ideális választás családoknak, akik privát kerttel rendelkező, jól megközelíthető, megfizethető, új és energiatakarékos otthont keresnek Budapest zöldövezeti részén.
További információkért keressen elérhetőségeimen a hát bármely napján.
| Értékesítés | Eladó |
| Település | Budapest XXII. kerület |
| Ingatlan típusa | Ikerház |
| Szobák száma | Nappali + 3 |
| Ingatlan állapota | Új építésű |
| Fűtés | Hőszivattyú, padlófűtés |
| Építés éve | 2025 |
| Épület szintjei | 2 |
| Parkolás | Garázsban |
| Kertkapcsolatos | Igen |
| Erkély | van |
| Fürdő és WC | Egyben és külön is |
| CSOK | Igen |
![[@title]](https://res.cloudinary.com/nestagency/image/fetch/c_fill,w_480,h_480,q_auto,f_auto/e_sharpen/https://www.nestagency.hu/uploads/workers/1634661660-246345284_243276024483999_8574759661986451745_n.jpg)


















