Érd Dombosvárosban új építésű családi ház eladó
nappali + 3 szobás, energiatakarékos otthon, kényelmes méretű garázzsal, nagy terasszal
Érd Dombosvárosban új építésű családi ház eladó
ÚJ ÉPÍTÉSŰ, ÖNÁLLÓ, FÖLDSZINTES CSALÁDI HÁZ
3 %-os OTTHON START HITELRE ALKALMAS
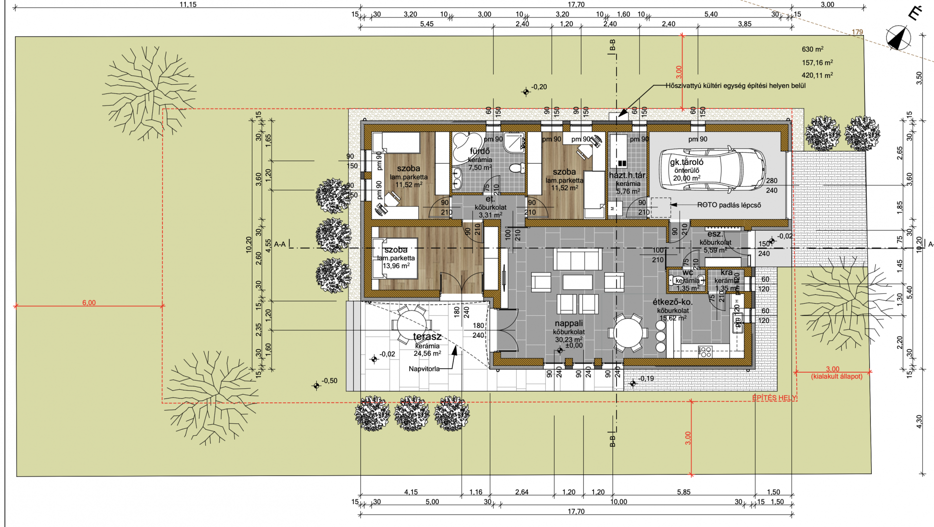
Eladásra kínálok Érd Dombosváros részén, csendes, rendezett, aszfaltozott utcában egy bruttó 140 m2 alapterületű (107 lakótér + 20 m2 garázs + 24,58 m2 terasz) nappali + 3 szobás, új építésű, földszintes családi házat 630 m2-es telekkel.
Az ingatlant tőkeerős, megbízható kivitelező cég építi, számos referencia ház megtekinthető a könyéken.
Az építkezés már elkezdődött, ütemezetten halad.
Várható átadás: 2025. év vége
MŰSZAKI TARTALOM
- Beton alap
- Főfalak: Porotherm NF 30-as tégla főfalak, válaszfalak: 10 cm tégla
- homlokzati szigetelés:15 cm dryvit
- födém: E-gerendás 20 cm hőszigeteléssel
- nyílászárók: korszerű fehér műanyag, 3 rétegű hőszigetelt üvegezéssel
- tető: cserépfedés
- burkolatok és beltéri ajtók szabadon választhatók a műszaki tartalom keretein belül.
Fűtés: Hőszivattyú, minden helyiségben padlófűtéssel
AJÁNDÉK: 1 db hűtő-fűtő klíma a nappaliban
HELYISÉGEK
- Előszoba: 5,59 m²
- WC + kézmosó: 1,35 m²
- Nappali: 30,23 m²
- Konyha + étkező: 15,62 m²
- Kamra: 1,35 m²
- Előtér: 3,31 m²
- Háztartási helyiség: 5,76 m²
- Fürdő + WC: 7,5 m²
- Szoba: 13,96 m²
- Szoba: 11,52 m²
- Szoba: 11,52 m²
Garázs: 20 m²
Terasz: 24,56 m²
PARKOLÁS
- 1 gépkocsi számára zárt garázs
- további felszíni beálló az udvaron
INFRASTRUKTÚRA ÉS ELHELYEZKEDÉS
Csendes, családi házas környezet Érd Dombosváros részén. Az ingatlan megközelítése kiváló, buszmegálló kb 10 perc sétára található. Közelben óvoda, iskola, posta, gyógyszertár, bevásárlási lehetőségek.
A hirdetésiben szereplő fotókon referencia ingatlanok találhatók, személyesen is megtekinthetők!
További információkért keressen elérhetőségeimen a hét bármely napján!
| Értékesítés | Eladó |
| Település | Érd |
| Ingatlan típusa | Családi ház |
| Szobák száma | Nappali + 3 |
| Ingatlan állapota | Új építésű |
| Fűtés | Hőszivattyú, padlófűtés |
| Építés éve | 2025 |
| Épület szintjei | Földszintes |
| Komfort | Összkomfort |
| Parkolás | Garázsban és telken belül is |
| Kilátás | Kertre néző |
| Kertkapcsolatos | Igen |
| Erkély | van |
| Fürdő és WC | Egyben és külön is |
| Légkondicionáló | Van |
![[@title]](https://res.cloudinary.com/nestagency/image/fetch/c_fill,w_480,h_480,q_auto,f_auto/e_sharpen/https://www.nestagency.hu/uploads/workers/1634661660-246345284_243276024483999_8574759661986451745_n.jpg)







.jpg)
.jpg)






.jpg)
.jpg)


.jpg)