Érd központi részén új építésű társasházi lakások eladók
12 lakásos társasházban nappali +1,2,3 szobás. alkások, tárolóval, garázzsal felszíni parkolóval
Érd központi részén új építésű társasházi lakások eladók
Érd egyik legkeresettebb, központi részén kínálunk megvételre egy modern, exkluzív társasházban kialakított, energiatakarékos otthonokat.
Az épületben 12 lakás kerül kialakításra, 4 szinten (földszint, 2 emelet és tetőtér). A kínálatban nappali + 1, 2 vagy akár 3 szobás lakások érhetők el, igény szerint alakítható belső terekkel, valamint saját tárolóval és parkolási lehetőséggel.
Az építtető tőkeerős kivitelező, számos referencia megtekinthető a környéken.
RÖVID MŰSZAKI TARTALOM
- masszív beton alap és szerkezet
- korszerű Porotherm falazat, kiváló hő- és hangszigeteléssel
- 3 rétegű, hőszigetelt nyílászárók
- rejtett redőnytokos kialakítás, elektromos előkészítéssel
- minőségi tetőfedés (Terrán cserép)
MODER GÉPÉSZET – ALACSONY FENNTARTÁS
- saját hőszivattyús rendszer lakásonként
- teljes körű padlófűtés minden helyiségben
- kedvező „H” tarifa lehetőség
- elektromos autó töltés előkészítése
- meleg víz ellátás villanybojlerrel
Kezdődő építkezés, ezért jelenleg még lehetőség van EGYEDI BELSŐ kialakításra
- burkolatok választhatók 8.000 Ft/m²-ig
- beltéri ajtók 80.000 Ft/db értékig
A projekt azok számára készült, akik nem csupán lakást, hanem értéket és időtálló minőséget keresnek.
JELEN HIRDETÉS
Első emelet 3. lakás – alapterület 36,17 m2, nappali + 1 szoba. Ára: 47,99 M
- közlekedő 5.11 m2,
- nappali 16.34m2 - konyha 3.52 m2,
- szoba 8.28 m2.
- fürdőszoba + wc 2.92 m2
Nagyméretű tároló + garázs 18,9 m2. Ára: 3 M + Felszíni parkoló: 2M
Ár tárolóval garázzsal: 52,99 M
Második emelet 7. lakás - alapterület 36,17 m2, nappali + 1 szoba. Ára 46,99 M
- közlekedő 5.11 m2,
- nappali 16.34m2 - konyha 3.52 m2,
- szoba 8.28 m2.
- fürdőszoba + wc 2.92 m2,
Nagyméretű tároló + garázs 18,9 m2. Ára: 3 M + Felszíni parkoló: 2M
Ár tárolóval garázzsal: 51, 99 M
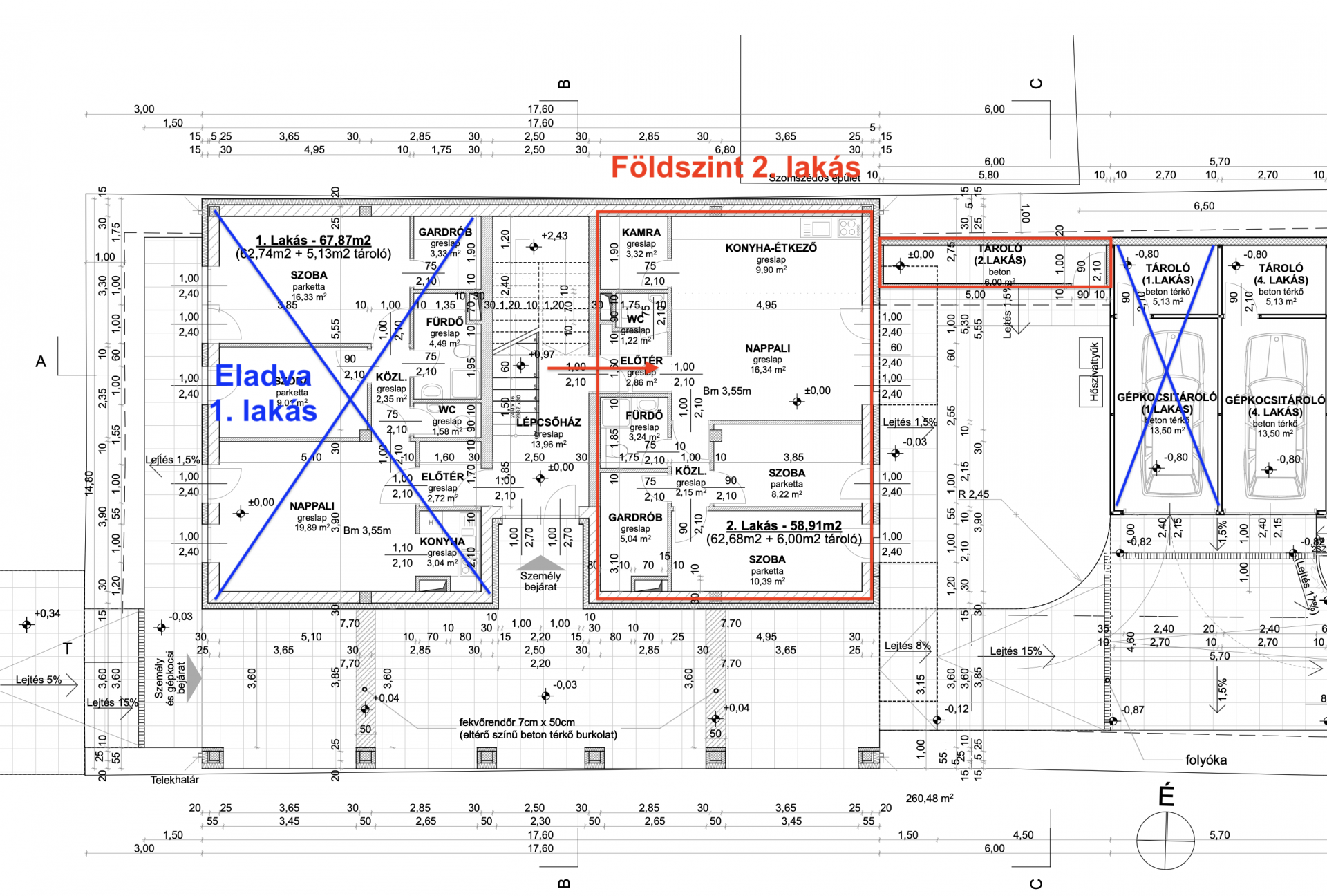
ELADOTT LAKÁSOK: Földszint 1, Első emelet 6. Második emelet 10.
TOVÁBBI ELÉRHETŐ LAKÁSTÍPUSOK
Családbarát, kényelmes otthonok: nappali + 2 szobás lakások, kb. 60–62 m² alapterület, erkély vagy saját kert
ELSŐ EMELET
4. akás – alapterület 60,70 m2, nappali + 2 szoba. Ára 76,99 M. Tároló 5,13 m2. Ára 2 M + garázs 13,5 m2. Ára: 3 M
Helyiségek: közlekedő 8.07 m2, nappali - konyha - étkező (17.16 m2 ,7.35 m2, 4.8 m2), 2 szoba (9.05m2, 8.41m2), fürdőszoba + wc 4.19m2, wc 1.44m2,
Ár tárolóval garázzsal: 81,99 M
5. lakás ERKÉLYES - alapterület 60,70 m2, nappali + 2 szoba + erkély 5,03 m2. Ára 78,99 M. Tároló 5,13 m2. Ára 2 M + garázs 13,5 m2. Ára: 3 M
Helyiségek: közlekedő 8.07 m2, nappali - konyha - étkező (17.16 m2 ,7.35 m2, 4.8 m2), 2 szoba (9.05m2, 8.41m2), fürdőszoba + wc 4.19 m2, wc 1.44m2,
MÁSODIK EMELET
8. lakás - alapterület 60,70 m2, nappali + 2 szoba. Ára 75,99 M. Tároló 5,13 m2. Ára 2 M + garázs 13,5 m2. Ára: 3 M
Helyiségek: közlekedő 8.07 m2, nappali - konyha - étkező (17.16 m2, 7.35 m2, 4.8 m2), 2 szoba (9.05m2, 8.41m2), fürdőszoba + wc 4.19 m2, wc 1.44m2,
Ár tárolóval garázzsal: 80,99 M
9. lakás ERKÉLYES - alapterület 60,70 m2, nappali + 2 szoba + erkély 5,03 m2. Ára 77,99 M. Tároló 5,13 m2. Ára 2 M + garázs 13,5 m2. Ára: 3 M
Helyiségek: közlekedő 8.07 m2, nappali - konyha - étkező (17.16 m2 ,7.35 m2, 4.8 m2), 2 szoba (9.05m2, 8.41m2), fürdőszoba + wc 4.19 m2, wc 1.44m2,
Ár tárolóval garázzsal: 82,99 M
Tágas, prémium lakások nagyobb igényekhez, akár KÉT KÜLÖN LAKÁSSÁ ALAKÍTHATÓ: nappali + 3 szobás, dupla komfortos otthonok, közel 77 m² lakótér, két terasz, két fürdőszoba,
TETŐTÉR
10. lakás 2 TERASSZAL - alapterület 76,95 m2, nappali + 3 szoba + 2 terasz (4,02, 4,02) m2. Ára 79,99 M. Tároló 5,13 m2. Ára 2 M + garázs 13,5 m2. Ára: 3 M
Helyiségek: közlekedő 7,55 m2, nappali - konyha (19,02 m2, 4,68 m2), 3 szoba (11,29 m2, 8,07 m2, 8.28 m2), 2 fürdőszoba + wc (5,07 m2, 2,74 m2), wc 1.44m2, gardrób 3,33 m2, mosókonyha 2,98 m2, előtér 3,32 m2
Ár tárolóval garázzsal: 84,99 M
11. lakás 2 TERASSZAL - alapterület 76,95 m2, nappali + 3 szoba + 2 terasz (4,02, 4,02) m2. Ára 79,99 M. Tároló 5,13 m2. Ára 2 M + felszíni parkoló. Ára: 2 M
Helyiségek: közlekedő 7,55 m2, nappali - konyha (19,02 m2, 4,68 m2), 3 szoba (11,29 m2, 8,07 m2, 8.28 m2), 2 fürdőszoba + wc (5,07 m2, 2,74 m2), wc 1.44m2, gardrób 3,33 m2, mosókonyha 2,98 m2, előtér 3,32 m2
Ár tárolóval garázzsal: 83,99 M
Lokáció – ahol minden közel van
A társasház elhelyezkedése kivételes:
buszpályaudvar, vasútállomás, üzletek, bankok, gyógyszertár, posta és közintézmények mind pár perc sétával elérhetők.
Ez a beruházás tökéletes választás azoknak, akik kompromisszumok nélkül szeretnének modern, értékálló otthonba költözni.
További információért és megtekintésért várom hívását!
| Értékesítés | Eladó |
| Település | Érd |
| Ingatlan típusa | társasházi lakás |
| Szobák száma | Nappali + 1 |
| Ingatlan állapota | Új építésű |
| Fűtés | hőszivattyú, padlófűtés |
| Építés éve | 2027 |
| Épület szintjei | 4 |
| Emelet | 1 |
| Komfort | Összkomfort |
![[@title]](https://res.cloudinary.com/nestagency/image/fetch/c_fill,w_480,h_480,q_auto,f_auto/e_sharpen/https://www.nestagency.hu/uploads/workers/1774180865-1774180460-1774180441-be99232b-6d35-4897-8f10-9863cbb54ffd.jpg)
















