Érd - Parkváros - családi ház
Családi ház eladó Érd Parkvárosban
Ház
124.9 M Ft
160 m²
Nappali + 3 szoba
Ingatlan
Ház
Alapterület
160 m²
Telek terület
827 m²
Szoba
Nappali + 3
Vételár
124.9 M Ft
Érd - Parkváros - családi ház
Tágas, önálló családi ház eladó Érd-Parkváros részén!
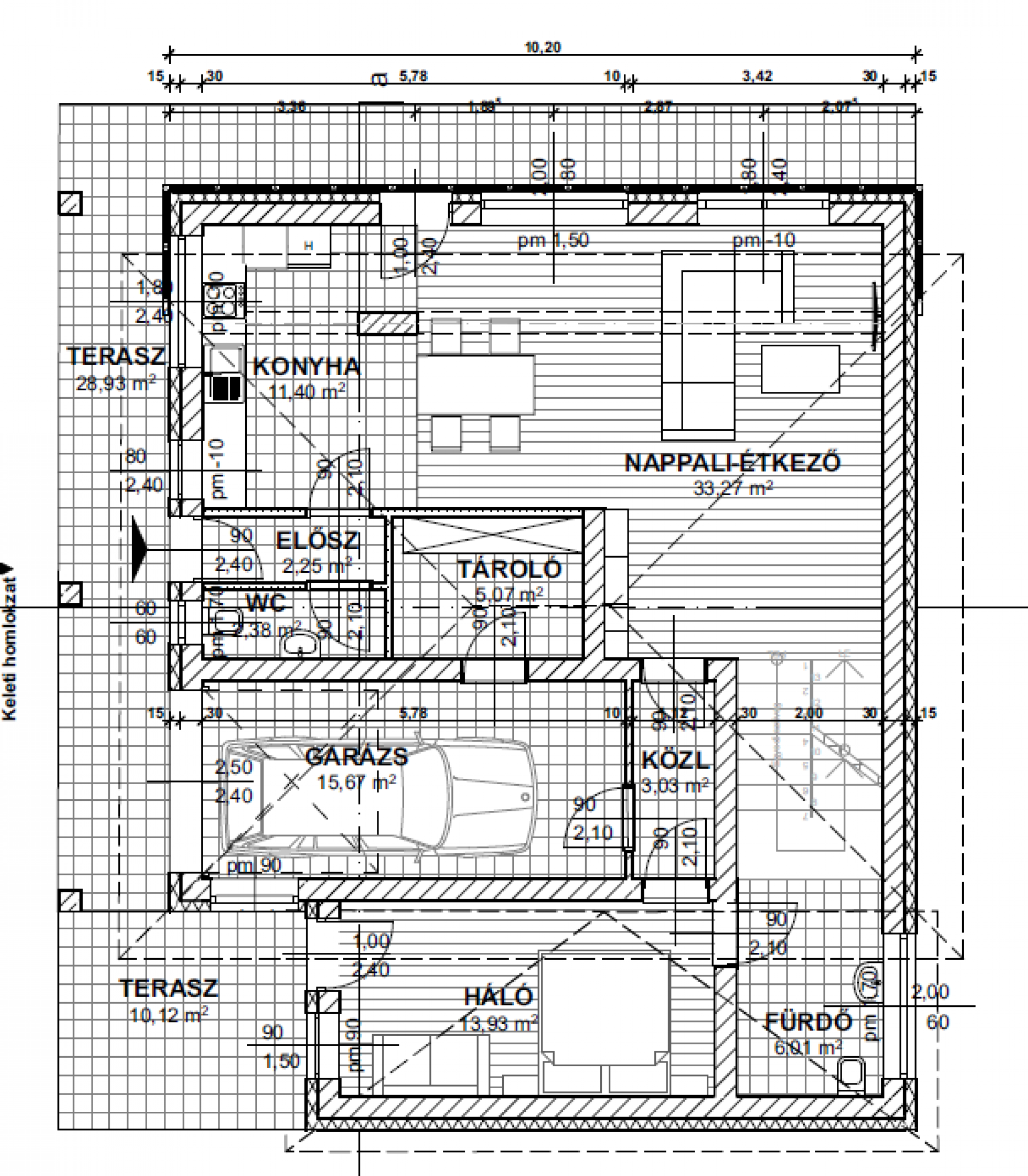
Érd-Parkvárosban, kiváló elhelyezkedéssel, 827 m²-es telken kínálunk eladásra egy nettó 144 m²-es, kétszintes, önálló családi házat, melyhez 54,5 m² terasz és 15,67 m²-es garázs is tartozik.
A ház átgondolt elrendezése és nagy méretű helyiségei kényelmes életteret biztosítanak többgyermekes családok számára is.
Földszinti elrendezés:
- Kényelmes méretű szoba 13,93 m2
- Fürdőszoba WC-vel 6,01 m2
- Különálló konyha 11,4 m2
- Tágas nappali + étkező 33,27 m2
- Kamra 2 m2
- Tároló 3,07 m2
- Közlekedő 3,03 m2
- Előszoba 2,25 m2
- Külön WC 2,38 m2
- + teraszok + garázs
Emeleti elrendezés:
- 2 nagyméretű szoba 17,01 - 17,07 m2
- Gardrób 6,96 m2
- Fürdőszoba WC-vel 10,51 m2
- Közlekedő 8,93 m2
- Terasz, ahol nyugodtan élvezheti a reggeli kávét vagy a délutáni pihenést
A ház ideális választás lehet azoknak, akik nyugodt környezetre, nagy terekre és jó elrendezésű otthonra vágynak Érd egyik legkeresettebb részén.
Ha szeretné megtekinteni, vagy kérdése lenne, keressen bizalommal!
Ne hagyja ki ezt a remek lehetőséget – hívjon még ma!
| Értékesítés | Eladó |
| Település | Érd |
| Ingatlan típusa | Családi ház |
| Szobák száma | Nappali + 3 |
| Ingatlan állapota | Újszerű |
| Fűtés | Gázkazán, padlófűtés |
| Építés éve | 2021 |
| Emelet | 1 |
| Pince | Nincs |
| Tetőtér | Nem beépíthető |
| Komfort | Duplakomfort |
| Parkolás | Garázsban és telken belül is |
| Kilátás | Udvarra néző |
| Kertkapcsolatos | Igen |
| Erkély | 28 nm |
| Fürdő és WC | Egyben és külön is |
| Légkondicionáló | Van |
| Gépesített | Igen |
| Belmagasság | 2,8 m |
| Akadálymentesített | Részben |
| Költözhető | megegyezés szerint |
| Víz | Van |
| Villany | Van |
| Gáz | Van |
| Csatorna | Van |
![[@title]](https://res.cloudinary.com/nestagency/image/fetch/c_fill,w_480,h_480,q_auto,f_auto/e_sharpen/https://www.nestagency.hu/uploads/workers/1634661660-246345284_243276024483999_8574759661986451745_n.jpg)
Percze Ágnes
Ingatlanreferens, értékbecslőIngatlanreferensként célom, ügyfeleim ingatlan adásvételével kapcsolatos igényeinek teljeskörű kiszolgálása. Elsődlegesen Érd, Diósd... bővebben



























