Érd Parkváros - ikerház
Érd - Parkvárosban új ikerház első rész eladó!
Ház
109.9 M Ft
102.64 m²
Nappali + 3 szoba
Ingatlan
Ház
Alapterület
102.64 m²
Telek terület
1156 m²
Szoba
Nappali + 3
Vételár
109.9 M Ft
Érd Parkváros - ikerház
Eladó ikerház Érd - Parkváros környezetben!
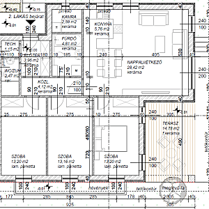
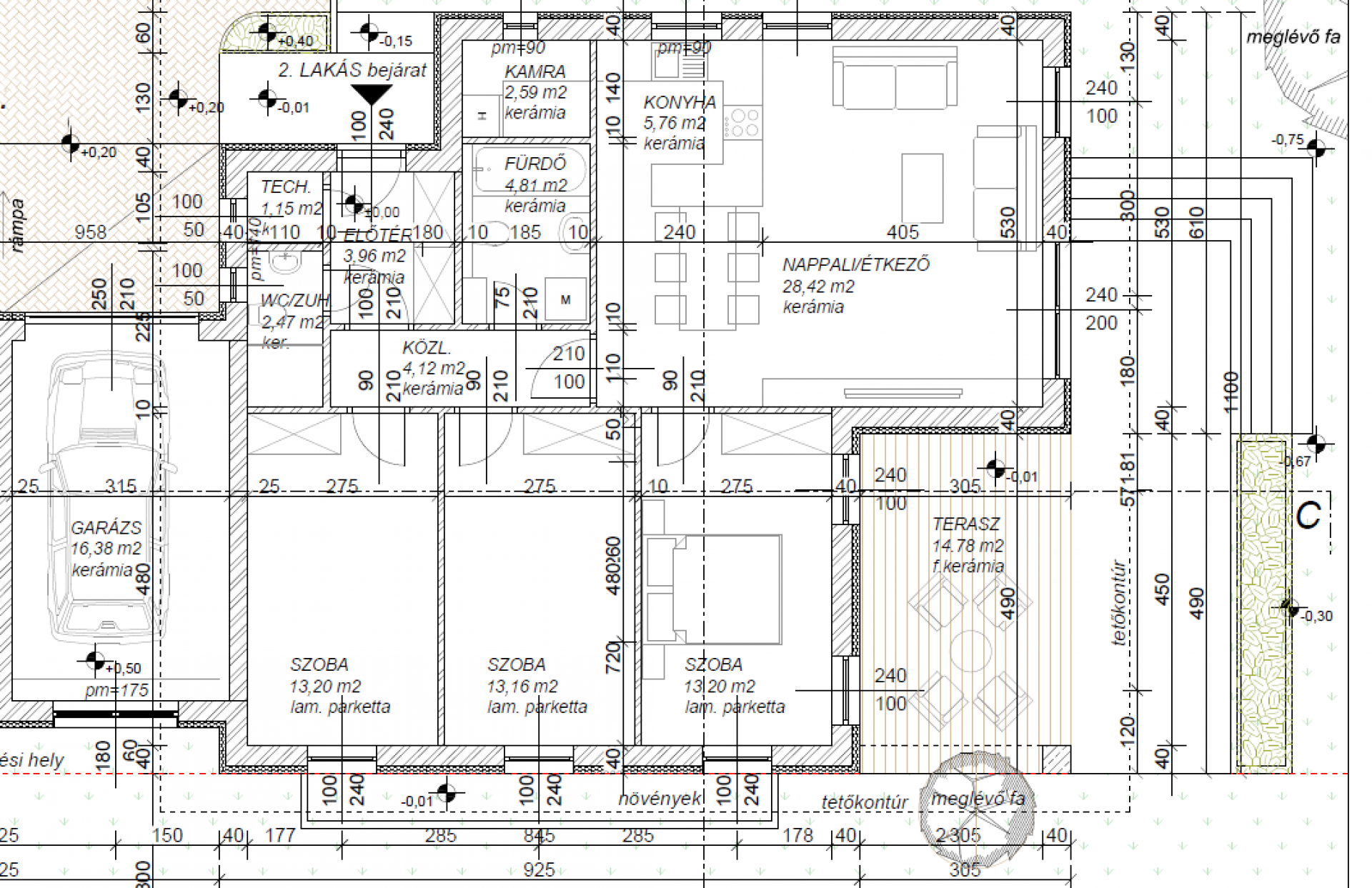
Érd - Parkváros környezetésben kb 600 m²-es telekrésszel rendelkező ikerház (nettó lakótér: 92,84 és 102,64 m2) várja új tulajdonosát. Az ingatlan társasházi alapító okirattal albetétesítve, külön helyrajzi számmal.
Az ingatlan jellemzői:
- Elosztás: 3 hálószoba, nappali, konyha + étkező, kamra fürdőszoba (káddal és WC-vel), technikai helység, zuhanyzóval és WC-vel, közlekedő
- Modern kivitelezés: Hőszivattyús padlófűtés H tarifával, nappaliban klíma kiállás.
- Nyílászárók: 3 rétegű műanyag ablakok a maximális energiahatékonyság érdekében.
- Ajtók: Bejárati ajtó: 100.000,-ig, Beltéri ajtók: 40.000,-ig/db választhatók.
- Burkolatok: Hideg- és melegburkolatok szabadon választhatók 5000 Ft/m² árig.
- Külső tér: Viacoloros gépkocsi beálló biztosít kényelmes parkolást.
- 1.lakás (Nettó: lakótér 102,64m2 + 27,16 m2):
- Nappali + étkező: 35,8 m2
- Szobák: 13,16 - 13,16 - 13,2
- Konyha: 6,27 m2
- közlekedők: 3,13 + 4,84 m2
- technikai helység: 1,15 m2
- Zuhanyzó + WC : 2,47 m2
- Fürdő (káddal) + WC: 5,5 m2
- Előtér: 3,96 m2
- + Garázs 16,38 + terasz: 10,78 = 27,16 m2
- 2. lakás (Nettó: lakótér 92,84 m2 + 31,16 m2):
- Nappali + étkező: 28,42 m2
- Szobák: 13,16 - 13,20 - 13,20 m2
- Konyha: 5,76 m2
- Kamra: 2,59 m2
- Zuhanyzó + WC : 2,47 m2
- Technikai helység: 1,15 m2
- Közlekedő: 4,12 m2
- Fürdő (káddal) + WC: 4,84 m2
- Előtér: 3,96 m2
- + Garázs 16,38 + terasz: 14,78 = 31,16 m2
Átadás: 2025. II.negyedév
- Kiváló elhelyezkedés:
- Bem tér Interspar és az M7-es autópálya mindössze 5 perc autóval.
- Az Interspar környezetében minden is elérhető - patika, orvosi rendelő, iskola, óvoda, buszállomás stb.
Ez az ingatlan tökéletes választás azok számára, akik modern, kényelmes otthont keresnek természetközeli, mégis kiválóan megközelíthető környezetben.
Várom megtisztelő érdeklődését a hét bármely napján!
| Értékesítés | Eladó |
| Település | Érd |
| Ingatlan típusa | Ikerház |
| Szobák száma | Nappali + 3 |
| Ingatlan állapota | Új építésű |
| Fűtés | hőszivattyú, padlófűtés |
| Építés éve | 2025 |
| Épület szintjei | Földszintes |
| Komfort | Duplakomfort |
| Parkolás | Garázsban és telken belül is |
| Kilátás | Udvarra néző |
| Kertkapcsolatos | Igen |
| Fürdő és WC | Egyben |
| Légkondicionáló | Kiépített hely |
| Belmagasság | 2,8 m |
| Akadálymentesített | Igen |
| CSOK | Igen |
| Víz | Van |
| Villany | Van |
| Gáz | Utcában |
| Csatorna | Van |
![[@title]](https://res.cloudinary.com/nestagency/image/fetch/c_fill,w_480,h_480,q_auto,f_auto/e_sharpen/https://www.nestagency.hu/uploads/workers/1738056365-131.jpg)
Pál-Botos Erika
ingatlanreferensIngatlanreferensként szerencsésnek tartom magam, hogy azzal foglalkozhatok, amit igazán szeretek. Különösen, mert mindezt a dél-budai... bővebben













