Érd-Parkváros, új építésű családi ház eladó
ÚJ ÉPÍTÉSŰ, FÖLDSZINTES CSALÁDI HÁZ ÉRD-PARKVÁROSBAN!
Érd-Parkváros, új építésű családi ház eladó
CSOK PLUSZ, KAMATTÁMOGATOTT HITEL IGÉNYBEVEHETŐ!
Eladásra kínálok új építésű családi ház Érd-Parkváros közkedvelt részén. CSOK Plusz valamint kamattámogatott hitel igénybevételére is lehetőség van!
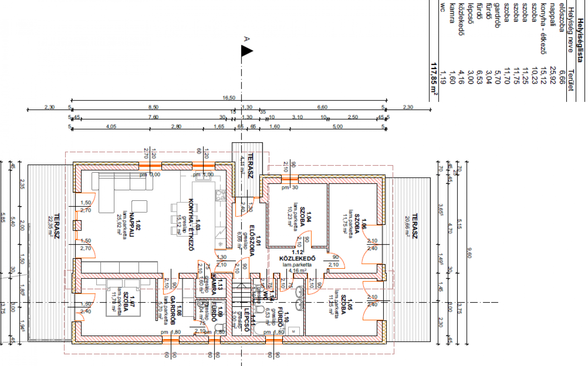
Helyiségek és méretek
- Nappali: 25,92 m2
- Konyha + étkező: 15,12 m2
- Kamra: 1,6 m2
- Szobák: 10,23 - 11,25 - 11,70 - 11,75 m2
- Gardrób: 5,7 m2
- Fürdő + WC : 6,53 m2
- Fürdő: 3 m2
- WC: 1,19 m2
- Előszoba: 6,66 m2
- Közlekedő: 4,16 m2
- Lépcső: 3 m2
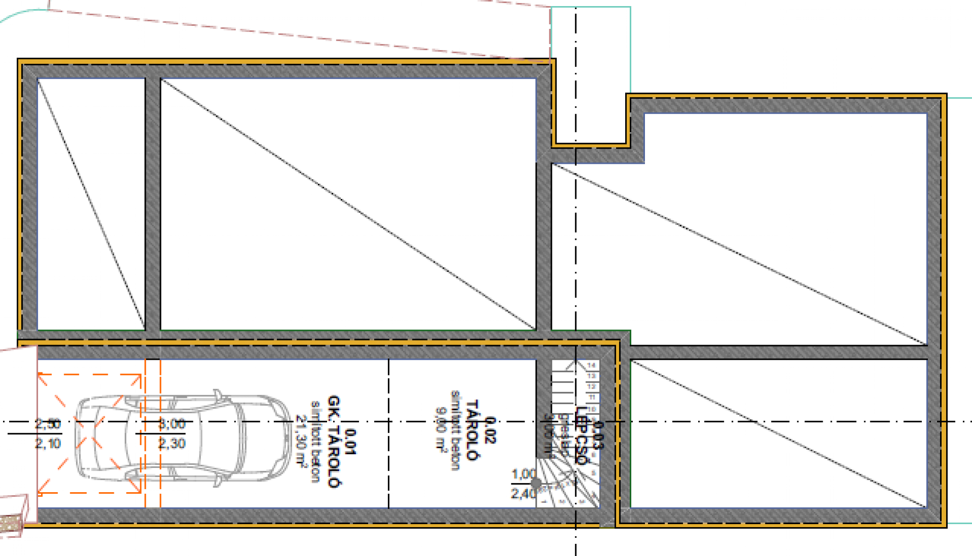
Pinceszint:
- garázs: 21,3 m2
- Zuhany + WC : 4 m2
- Tároló: 5 m2
+ teraszok: 41,11 + 20,66 + 25,35 m2
Műszaki tartalom:
- Beton alap, lábazatszigeteléssel
- 30 cm Porotherm N+F főfalak, 15 cm dryvit homlokzati szigeteléssel
- 10 cm Porotherm válaszfalak
- Kőzetgyapot szigetelésű fafödém
- Tető: fóliázott, cserépfedéssel
- Külső nyílászárók: műanyag, bukó-nyíló, több rétegű Thermoplan üveggel
- Belső ajtók: fa szerkezetűek
Hőszivattyús, padlófűtéssel.
Várható átadás: 2025. IV. negyedév vége
Ajánlom olyan keresőknek, akik fiatalos modern, új otthont keresnek Érd egyik legkeresettebb részén, kiváló infrastruktúrával, játszótérrel, óvodával, tömegközlekedéssel a közelben.
További információkért keressen elérhetőségeimen a hét bármely napján.
| Értékesítés | Eladó |
| Település | Érd |
| Ingatlan típusa | Családi ház |
| Szobák száma | Nappali + 4 |
| Ingatlan állapota | Új építésű |
| Fűtés | Padlófűtés |
| Építés éve | 2025 |
| Épület szintjei | Földszintes |
| Pince | Van |
| Tetőtér | Nem beépíthető |
| Komfort | Duplakomfort |
| Parkolás | Garázsban és telken belül is |
| Kilátás | Udvarra és utcára néző |
| Kertkapcsolatos | Igen |
| Fürdő és WC | Egyben és külön is |
| Légkondicionáló | Kiépített hely |
| Belmagasság | 2,8 m |
| Akadálymentesített | Nem |
| CSOK | Igen |
| Víz | Van |
| Villany | Van |
| Gáz | Van |
| Csatorna | Van |
![[@title]](https://res.cloudinary.com/nestagency/image/fetch/c_fill,w_480,h_480,q_auto,f_auto/e_sharpen/https://www.nestagency.hu/uploads/workers/1738056365-131.jpg)














