Érd Parkvárosban új építésű földszintes családi ház eladó
700 m2 keret, nappali + 3 szoba, terasz, garázs, energiatakarékos otthon
Érd Parkvárosban új építésű földszintes családi ház eladó
Érd Parkváros – Új építésű, egyszintes családi ház garázzsal,
Csendes kertvárosi környezet!
3%-os Otthon Start hitelre akalmas!
Érd Parkváros aszfaltozott, csendes, nyugodt utcájában, kertvárosi környezetben kínálunk megvételre egy új építésű, egyszintes családi házat, megbízható, tőkeerős kivitelezőtől.
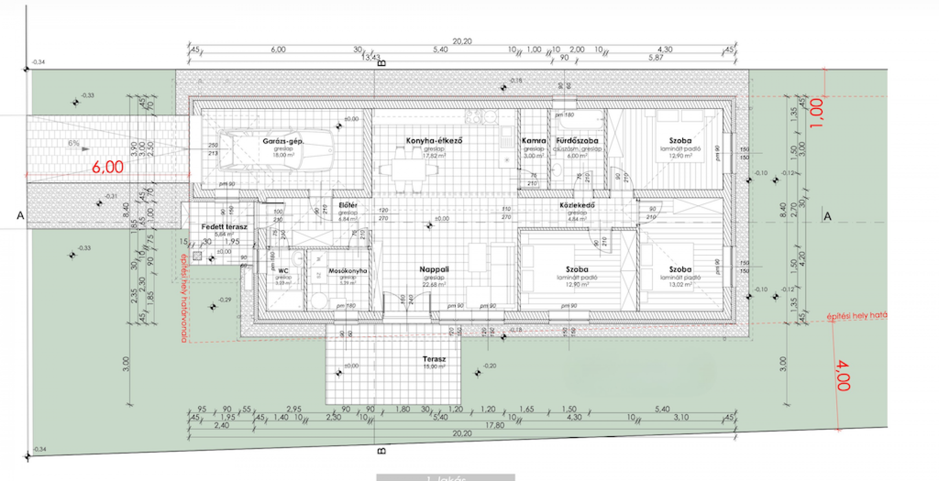
Főbb paraméterek
• Hasznos lakótér: 126,51 m² + teraszok 15 m² + 5,64 m² fedett terasz
• Nappali + 3 szoba
• Önálló családi ház
• Telek mérete: 700 m²
HELYISÉGEK
A gondosan megtervezett alaprajz tágas, világos tereket kínál: a nappali-konyha-étkező központi élettérként szolgál, míg a három külön nyíló szoba kényelmes életteret biztosít egy család számára. A kertkapcsolatos terasz tovább növeli az otthon élhetőségét, tökéletes helyszínt biztosítva a pihenéshez.
• Nappali: 22,68 m²
• Konyha-étkező: 17,82 m²
• Szoba 1: 13,02 m²
• Szoba 2: 12,90 m²
• Szoba 3: 12,90 m²
• Fürdőszoba: 6,00 m²
• WC: 3,22 m²
• Mosókonyha: 5,29 m²
• Kamra: 3,00 m²
• Előtér: 6,84 m²
• Közlekedő: 4,84 m²
• Garázs: 18,00 m²
• Terasz: 15,00 m²
• Fedett terasz: 5,64 m²
MŰSZAKI TARTALOM (röviden)
A ház korszerű műszaki tartalommal, energiahatékony megoldásokkal készül, megbízható, stabil kivitelező által, akinek referenciái a környéken is megtekinthetők. Az ingatlan nemcsak esztétikus, hanem hosszú távon is értékálló választás.
• 30 cm vastag, korszerű pórusbeton falazat + 10 cm hőszigetelés
• 25 cm födém hőszigetelés (cellulóz)
• Hőszivattyús rendszer (kültéri egységgel)
• Korszerű rétegrendű padló és vízszigetelés
• Kerámia cserépfedésű tető
• Minőségi nyílászárók
• Energiahatékony kialakítás
KÖRNYEZET
• Csendes, családi házas övezet
• Jó infrastruktúra
• Nyugodt, zöld környezet
• Ideális családok számára
Ez az ingatlan kiváló választás mindazok számára, akik egy modern, energiatakarékos otthont keresnek nyugodt kertvárosi környezetben. A ház korszerű műszaki tartalommal készül, így hosszú távon is gazdaságosan fenntartható, miközben a kivitelezést egy megbízható, tőkeerős cég végzi, amelynek referenciái a környéken is megtekinthetők.
| Értékesítés | Eladó |
| Település | Érd |
| Ingatlan típusa | Családi ház |
| Szobák száma | Nappali + 3 |
| Ingatlan állapota | Új építésű |
| Fűtés | hőszivattyú, padlófűtés |
| Építés éve | 2026 |
| Épület szintjei | Földszintes |
| Pince | Nincs |
| Komfort | Összkomfort |
| Parkolás | Garázsban |
| Kilátás | Udvarra néző |
| Kertkapcsolatos | Igen |
| Erkély | van |
| Fürdő és WC | Egyben és külön is |
![[@title]](https://res.cloudinary.com/nestagency/image/fetch/c_fill,w_480,h_480,q_auto,f_auto/e_sharpen/https://www.nestagency.hu/uploads/workers/1774180865-1774180460-1774180441-be99232b-6d35-4897-8f10-9863cbb54ffd.jpg)

















