Érd - Sasvárosban új családi ház eladó
Érd egyre fejlődő részén - korszerű, önálló családi ház eladó
Érd - Sasvárosban új családi ház eladó
Modern, önálló családi ház Érd egyik legjobb részén – kiváló ár-érték arány, 2025-ös átadással!
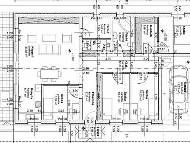
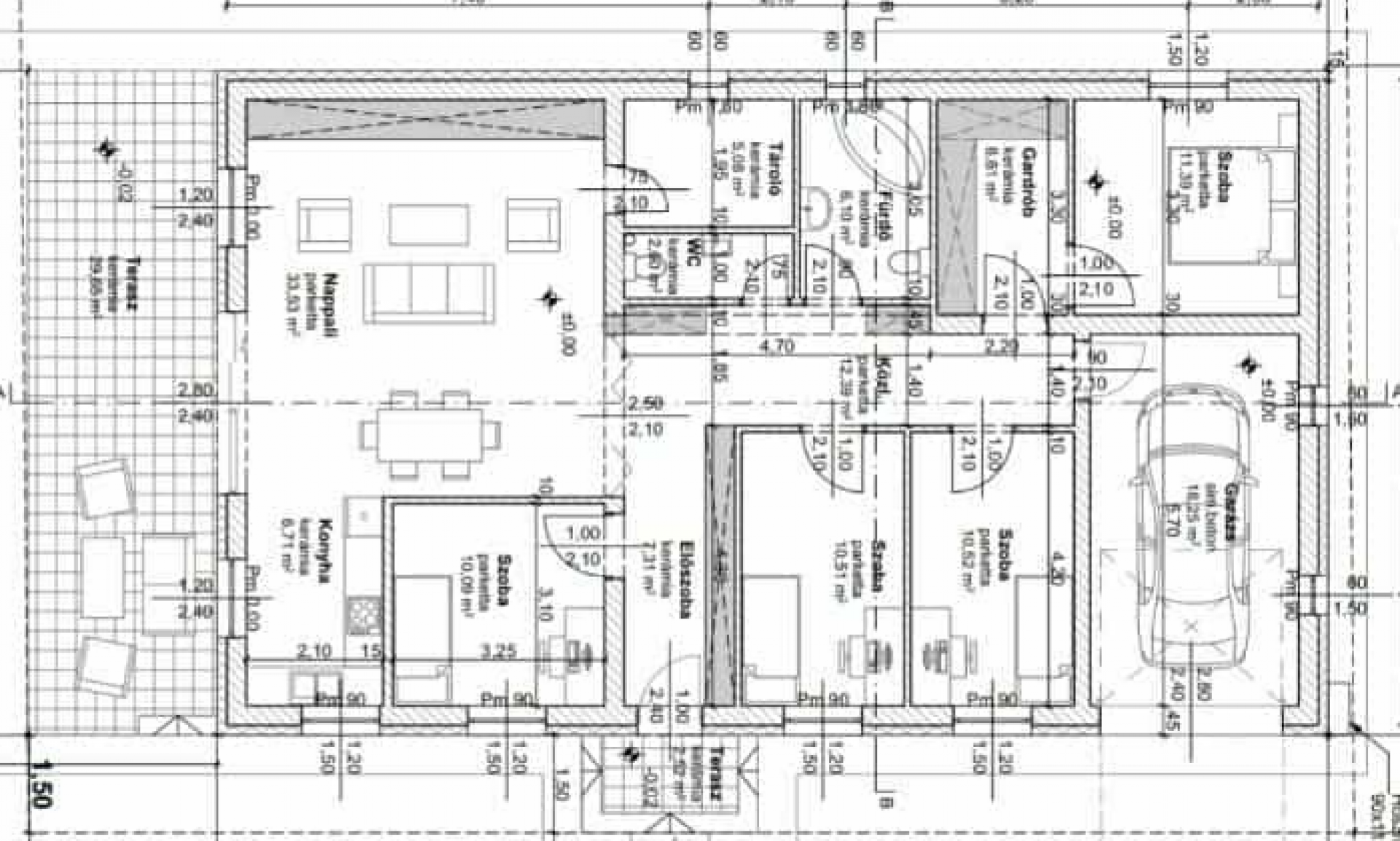
Érd csendes, rendezett, családbarát környezetében kínálunk megvételre egy új építésű, földszintes - nappali + 4 szoba -, önálló családi házat, amely a mai kor igényeinek minden szempontból megfelel – legyen szó energiahatékonyságról, kényelmes térkihasználásról vagy modern műszaki tartalomról.
Műszaki adatok:
Nettó alapterület: 141,9 m² (ebből garázs: 16,75 m²)
Teraszok: 29,68 m² + 2,52 m²
Telek mérete: 580 m²
Modern építési és energetikai megoldások:
30 cm vastag tégla főfalak
Beton alap, cserépfedés
Tető alatt fóliázott, 30 cm-es hőszigeteléssel
15 cm-es homlokzati szigetelés (dryvit rendszer)
Hő- és hangszigetelt műanyag nyílászárók
Hőszivattyús fűtés + padlófűtés a teljes házban
Burkolatok és szaniterek szabadon választhatók 8.000 Ft/m² árkeretig
Extra felszereltség:
Elektromos redőnyök előkészítése
Elektromos autóbeálló kapu
Klímakiállás kiépítve
Átadás várható időpontja: 2025. Ősz!
Ez a ház ideális választás családok számára, akik egy jól megközelíthető, mégis nyugodt, természetközeli környezetben keresnek korszerű otthont.
- A közelben iskola, óvoda, bevásárlási lehetőségek, valamint a vasútállomás és buszmegálló is 10-15 perces sétatávolságon belül elérhető.
- További részletekért, alaprajzért vagy helyszíni megtekintés egyeztetéséhez keressen bizalommal – elérhető vagyok a hét minden napján!
| Értékesítés | Eladó |
| Település | Érd |
| Ingatlan típusa | Családi ház |
| Szobák száma | Nappali + 4 |
| Ingatlan állapota | Új építésű |
| Fűtés | Hőszivattyú |
| Építés éve | 2025 |
| Épület szintjei | Földszintes |
| Tetőtér | Nem beépíthető |
| Komfort | Duplakomfort |
| Parkolás | Garázsban és telken belül is |
| Kilátás | Udvarra és utcára néző |
| Kertkapcsolatos | Igen |
| Fürdő és WC | Egyben és külön is |
| Légkondicionáló | Kiépített hely |
| Gépesített | Nem |
| Belmagasság | 2,8 m |
| Akadálymentesített | Igen |
| CSOK | Igen |
![[@title]](https://res.cloudinary.com/nestagency/image/fetch/c_fill,w_480,h_480,q_auto,f_auto/e_sharpen/https://www.nestagency.hu/uploads/workers/1738056365-131.jpg)



















