Kiadó raktár Maglódon napelemrendszerrel
Kiadó raktár Maglódon, az M0 autóút és a Liszt Ferenc Nemzetközi Repülőtér közelében napelemes rendszerrel
Kiadó raktár Maglódon napelemrendszerrel
Előbérleti lehetőség új építésű raktáregységekben, akár bérlés–vétel konstrukcióval is.
A hazai piacon egyedülálló módon a raktáregységek ipari társasházi albetétként is megvásárolhatók, így hosszú távon saját tulajdonba kerülhetnek.
Az építkezés jelenleg is folyamatban van, a költözés a közeljövőben lehetséges.
Elhelyezkedés:
A logisztikai park kiváló lokációval rendelkezik, az M0-s autóút közvetlen közelében található, a Liszt Ferenc Nemzetközi Repülőtértől mintegy 2,4 km-re, Budapest belvárosától körülbelül 21 km-re.
Funkció és kialakítás:
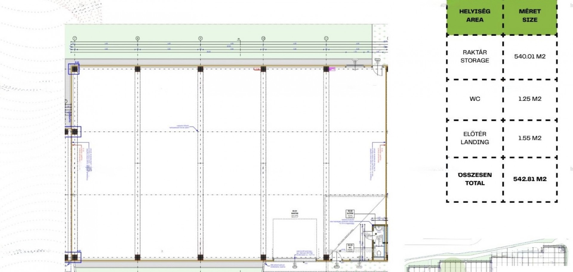
Igényre szabható raktárterületek érhetők el hosszú távú bérlésre, már 144 m²-től. A fejlesztés négy ütemben valósul meg, a bérelhető egységek mérete és műszaki tartalma rugalmasan alakítható.
Műszaki paraméterek:
Vegyes hasznosításra alkalmas raktár- és műhelyterületek 144 m²-től
Minimum 6 méter tiszta belmagasság
5 t/m² teherbírású ipari padló
Tehergépjármű-forgalomra kialakított infrastruktúra, kényelmes parkolási lehetőség
Elektromos autótöltési lehetőség, napelemes rendszer
Szerződéses feltételek:
Egyedi igények esetén „built to suit” megoldások is elérhetők, egyedi ármegállapodás mellett. Lehetőség van szerkezetkész vagy kulcsrakész kivitelezésre.
Bérleti díj: 6,5 EUR / m² / hó + ÁFA + közös költség + közműátalány.
További információért vagy megtekintési időpont egyeztetéséhez keressen bizalommal.
| Értékesítés | Kiadó |
| Település | Maglód |
| Ingatlan típusa | Műhely - raktár |
| Ingatlan állapota | Új építésű |
![[@title]](https://res.cloudinary.com/nestagency/image/fetch/c_fill,w_480,h_480,q_auto,f_auto/e_sharpen/https://www.nestagency.hu/uploads/workers/1769637469-img_7677.jpeg)

























