Panorámás újépítésű tégla lakás Budaörsön
Újépítésű, panorámás, duplakomfortos tégla lakás Budaörs központjában.
Panorámás újépítésű tégla lakás Budaörsön
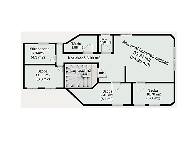
Eladásra kínálok Budaörsön egy nettó 57,28 m², bruttó 86.66 m²-es, 2. emeleti, újszerű tégla lakást egy 3 lakásos társasházban 119.9M Ft-ért. A társasház ezen szintjének beépítése 2022-ben történt, a lakás pedig végig modern szemlélettel, igényesen került kialakításra.
Elrendezés: amerikai konyhás nappali + 3 hálószoba, fürdőkádas fürdőszoba, külön WC, valamint egy praktikus tároló. A lakás duplakomfortos, a terek jól használhatók, élhetőek.
Műszaki tartalom: a fűtést gáz cirkó, kiegészítésként pedig 2 db klíma biztosítja a kellemes hőérzetet. A kedvező fenntartásról 10 cm külső hőszigetelés, illetve a tetőben 20 cm gyapot szigetelés gondoskodik. A lakás külön mérőórákkal rendelkezik.
Vadonatúj, gépesített konyhabútor és modern, dizájn burkolatok mindenhol. Méretre készített letisztult megjelenésű beépített szekrények biztosítanak rengeteg tárolóhelyet minden helyiségben. A nappaliban igényes, egyedileg tervezett, térbe komponált gipszkarton polcrendszerek, falfülkék és süllyesztett TV-fal került kialakításra.
A Budaörsi hegyekre nyíló panoráma különösen kellemes, nyugodt látványt nyújt.
A környék ellátottsága kifejezetten jó: a közelben több sportolási lehetőség is elérhető (ABS/Androméda Budaörs Sportcentrum, Herman sportpálya), valamint iskolák is megtalálhatók (Budaörsi Illyés Gyula Gimnázium, Budaörsi Herman Ottó Általános Iskola). A mindennapi bevásárlás kényelmes, több kisbolt mellett az Auchan és a Tesco bevásárlóközpont is gyorsan elérhető.
Tömegközlekedéssel a 40, 40B, 88, 88A járatokkal a Kelenföld vasútállomás (M4) kb. 15 perc alatt elérhető, a 140 és 140A járatokkal pedig a Déli pályaudvar megközelítőleg 25 perc.
Az ingatlan ideális választás azoknak, akik újszerű állapotú, modern kialakítású és jó lokációval rendelkező lakást keresnek Budaörsön.
Megtekintés rugalmasan, egyeztetés alapján.
| Értékesítés | Eladó |
| Település | Budaörs |
| Ingatlan típusa | Tégla építésű lakás |
| Szobák száma | 1 |
| Félszobák száma | 3 |
| Ingatlan állapota | Új építésű |
| Fűtés | Kombi cirkó |
| Építés éve | 2024 |
| Épület szintjei | 2 |
| Emelet | 2 |
| Tetőtér | Tetőtéri |
| Lift | Nincs |
| Komfort | Duplakomfort |
| Parkolás | Utcán - ingyenesen |
| Kilátás | Panorámás |
| Fürdő és WC | Egyben és külön is |
| Légkondicionáló | Van |
| Gépesített | Igen |
| Költözhető | azonnal |
![[@title]](https://res.cloudinary.com/nestagency/image/fetch/c_fill,w_480,h_480,q_auto,f_auto/e_sharpen/https://www.nestagency.hu/uploads/workers/1769637469-img_7677.jpeg)









