Perkáta - családi házak eladók!
Perkátán családi házak (albetétes - 2 db) eladók!
Perkáta - családi házak eladók!
Eladó családi házak Perkátán – nagy telek, kiváló ár-érték arány!
Perkáta egy csendes, ugyanakkor dinamikusan fejlődő kis község, ahol most lehetősége nyílik új építésű nappali + 3 szobás családi házak megvásárlására!
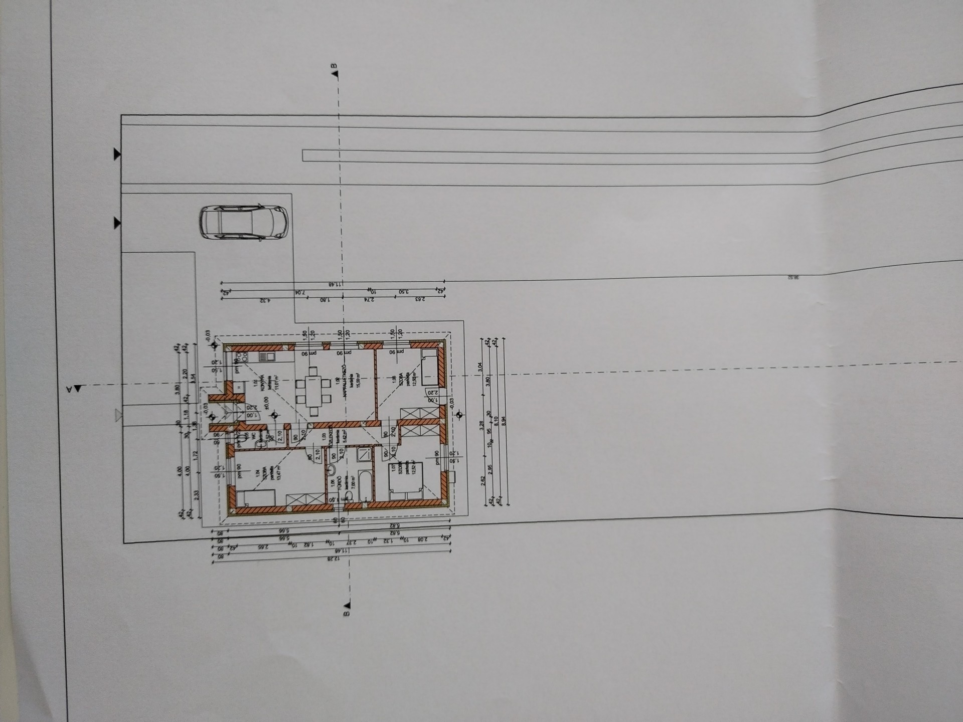
Ingatlan főbb jellemzői:
- Nettó alapterület: 80,03 m²
- Bruttó alapterület: 102,25 m²
- Telek mérete: 1.135 m² / db – bőven van hely kertészkedésre, pihenésre vagy akár bővítésre is!
Helyiségek:
- Nappali + étkező 15,59 m2
- Különálló konyha 11,01 m2
- 3 kényelmes hálószoba 12,50 - 12,52 - 13,47 m2
- Fürdőszoba + WC 7 m2
- Külön WC 2,52 m2
- Közlekedő 5,42 m2
Magas műszaki tartalommal épül!
Burkolatok és szaniterek még választhatók, így saját ízlésére szabhatja otthonát!
- Első ház ára: 51,8 M Ft.
- Hátsó ház ára: 54,2 M Ft.
Közlekedés: A község kiváló lokációval rendelkezik, az M6-os autópálya mindössze 10 percnyi autóútra található, így Budapest vagy Dunaújváros is könnyedén elérhető.
Támogatott finanszírozás: Az ingatlan CSOK-ra alkalmas, hitelezhető, így akár állami támogatással is megvásárolható!
Ideális választás családoknak, akik nyugodt környezetre vágynak, ugyanakkor fontos számukra a jó közlekedés és a nagy telek nyújtotta szabadság.
Ne maradjon le erről a remek lehetőségről – hívjon bizalommal és tekintse meg személyesen!
| Értékesítés | Eladó |
| Település | Perkáta |
| Ingatlan típusa | Ikerház |
| Szobák száma | Nappali + 3 |
| Ingatlan állapota | Új építésű |
| Építés éve | 2025 |
| Épület szintjei | Földszintes |
| Pince | Nincs |
| Tetőtér | Nem beépíthető |
| Komfort | Összkomfort |
| Parkolás | Udvari beálló |
| Kilátás | Udvarra néző |
| Kertkapcsolatos | Igen |
| Fürdő és WC | Egyben és külön is |
| Belmagasság | 2,8 m |
| Akadálymentesített | Igen |
| CSOK | Igen |
| Víz | Van |
| Villany | Van |
![[@title]](https://res.cloudinary.com/nestagency/image/fetch/c_fill,w_480,h_480,q_auto,f_auto/e_sharpen/https://www.nestagency.hu/uploads/workers/1738056365-131.jpg)













