Törökbálint városközpontban eladó egy 162 m2-es családi ház 900 m2 telekkel.
Törökbálint városközpontban eladó egy 162 m2-es családi ház 900 m2 telekkel.
Ház
81.9 M Ft
162 m²
4 szoba
Ingatlan
Ház
Alapterület
162 m²
Telek terület
900 m²
Szoba
4
Vételár
81.9 M Ft
Törökbálint városközpontban eladó egy 162 m2-es családi ház 900 m2 telekkel.
Törökbálint városközpontban eladó egy 162 m2-es családi ház 900 m2 telekkel.
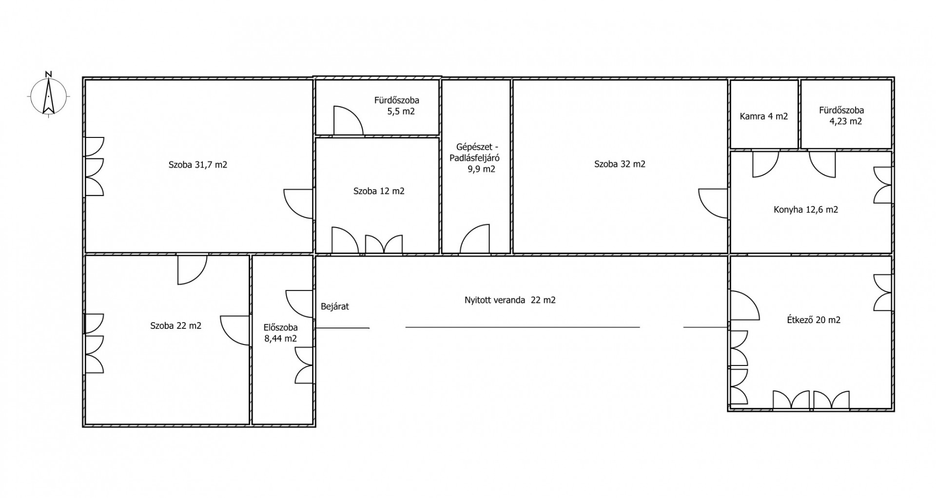
Az ingatlan mészkőből épült U alakú, nyitott verandás családi ház.
A ház 162 m2, négy szobás, földszintes.
Fűtését gázkazán biztosítja, radiátoros hőleadással, a meleg víz ellátást, pedig villanybojler és gázbojler.
A ház természetesen bővíthető, vagy igény esetén le is bontható.
Az ingatlan jelenlegi állapota felújítást igényel, ám ennek köszönhetően teljesen az Ön ízlésére és igényeire szabhatja.
A telek 900 m2-es, Lke-4-es besorolású, utcafrontja 17,5 méter széles és 25 %-a beépíthető.
Várom a megtisztelő hívását!
| Értékesítés | Eladó |
| Település | Törökbálint |
| Ingatlan típusa | Családi ház |
| Szobák száma | 4 |
| Ingatlan állapota | Felújítandó |
| Fűtés | Gázkazán |
| Építés éve | 1950 előtt |
| Épület szintjei | Földszintes |
| Komfort | Összkomfort |
| Parkolás | Udvari beálló |
| Kertkapcsolatos | Igen |
| Víz | Van |
| Villany | Van |
| Gáz | Van |
| Csatorna | Van |
| Beépíthetőség | 25 % |
| Telek besorolása | Lke-4 |
![[@title]](https://res.cloudinary.com/nestagency/image/fetch/c_fill,w_480,h_480,q_auto,f_auto/e_sharpen/https://www.nestagency.hu/uploads/workers/1634720407-FaceAPP2.jpg)





