Törökbálinton eladó ikerház.
Törökbálinton az Ófaluban eladó ikerház.
Törökbálinton eladó ikerház.
Törökbálinton az Ófaluban eladó ikerház.
Amerikai Konyhás Nappali + 4 tágas hálószoba, saját gardrób, 2 fürdőszoba, külön háztartási helyiség, önálló 2 állásos fűtött garázs tartozik a házhoz.
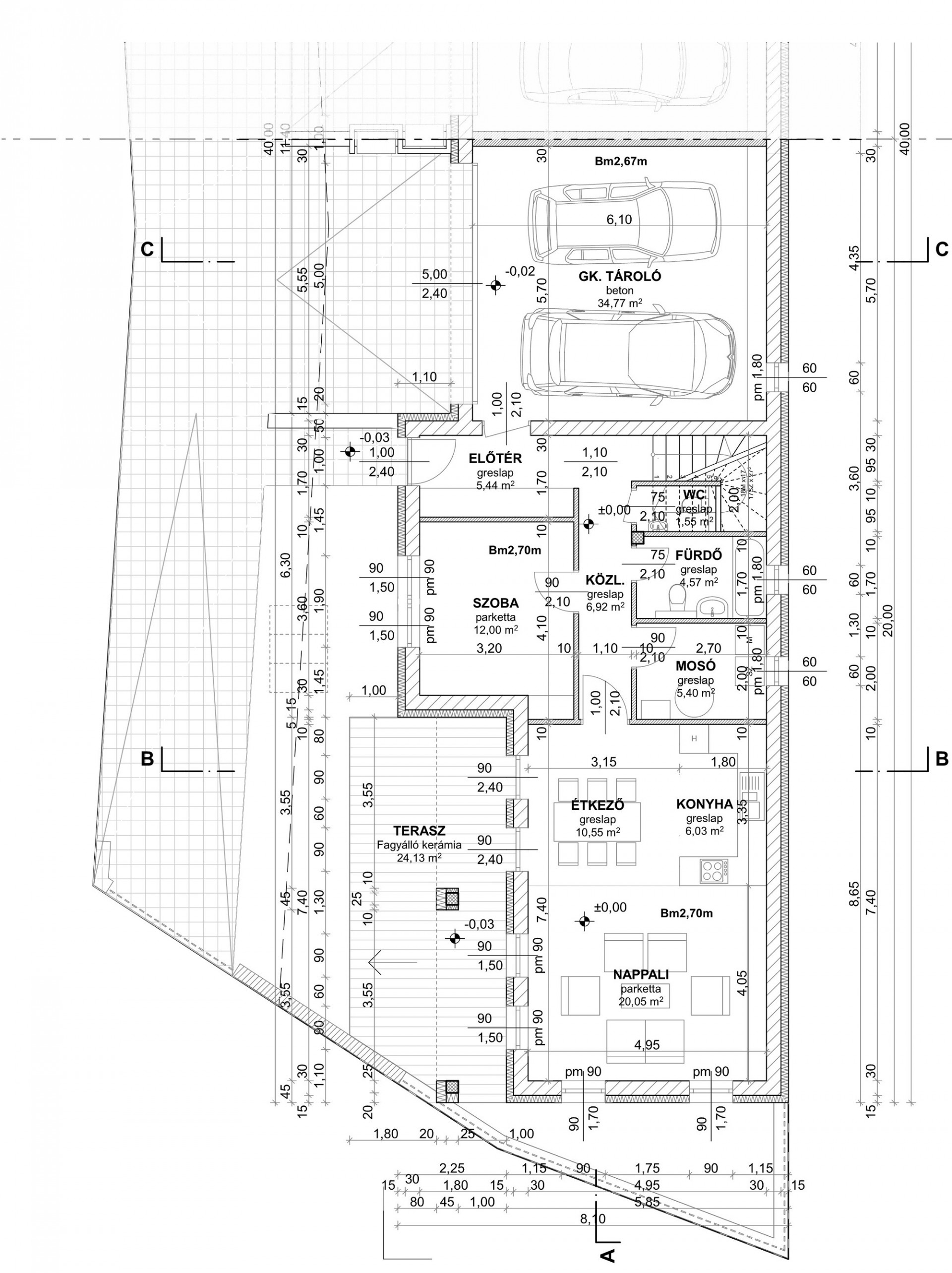
Hasznos alapterületek:
Földszint: 72,09m2 + Tetőtér: 63,57m2 = 136,38m2
Gépkocsitároló: 34,77m2
Összesen: 171,15m2
Földszinten kapott helyet: Előtér 5,44m2, Wc 1,55m2, Fürdő 4,57m2 Mosókonyha 5,40m2, Közlekedő 6,92m2, Konyha 6,03m2, Étkező 10,55m2, Nappali 20,05m2, Szoba 12,00m2. Összesen: 72,51m2
Tetőtérben helyezkedik el: Szoba 17,40m2, Szoba 11,54m2, Szoba 15,34m2,
Gardrób 11,85m2, Fürdő 3,18m2, Lépcső 4,56m2. Összesen: 63,87m2.
A ház 136,38m2, plusz a két állásos garázs, ami 34,77m2. Így összesen: 171,15m2.
A terasz 24,13m2.
Alaprajz a képek között található az ingatlanról.
A házrészhez tartozó telekrész kb.: 80 m2 a közös pedig 100 m2.
A fűtést és a meleg víz ellátást hőszivattyús rendszer biztosítja, padlófűtéssel.
A tervezett energetikai besorolás BB.
Az épület falazata 30 cm vastag Porotherm N+F téglából készül, 15 cm vastag EPS hőszigeteléssel.
A födém 20 cm vastag monolit vasbeton. A tetőszerkezet fából készül, 15+15 cm vastag kőzetgyapot szigeteléssel. A tető fedése cserép.
A belső válaszfalak 10 cm-es Ytong falazóelemből készültek.
A nyílászárók műanyagból készültek három rétegű üvegezéssel, beépített hőszigetelt redőnytokkal, motoros alumínium redőnnyel szerelve.
Jelenleg csak a burkolás hiányzik, a szaniterek, valamint a beltéri ajtók beépítése. Ezek a munkafolyamatok körülbelül 2 hónapot vesznek még igénybe.
Az ár természetesen a kulcsrakész állapotra vonatkozik.
Várom a megtisztelő hívását.
| Értékesítés | Eladó |
| Település | Törökbálint |
| Ingatlan típusa | Ikerház |
| Szobák száma | Nappali + 4 |
| Ingatlan állapota | Új építésű |
| Fűtés | Hőszivattyú |
| Építés éve | 2024 |
| Épület szintjei | Földszintes |
| Tetőtér | Beépített |
| Komfort | Duplakomfort |
| Parkolás | Garázsban és telken belül is |
| Kilátás | Udvarra és utcára néző |
| Fürdő és WC | Egyben és külön is |
![[@title]](https://res.cloudinary.com/nestagency/image/fetch/c_fill,w_480,h_480,q_auto,f_auto/e_sharpen/https://www.nestagency.hu/uploads/workers/1634720407-FaceAPP2.jpg)

















