Újszerű, modern vendégház eladó Vértesbogláron
Újszerű, modern vendégház eladó Vértesbogláron – 6 szobával, hőszivattyúval és napelemmel!
Újszerű, modern vendégház eladó Vértesbogláron
Kivételes lehetőség Vértesboglár központjában!
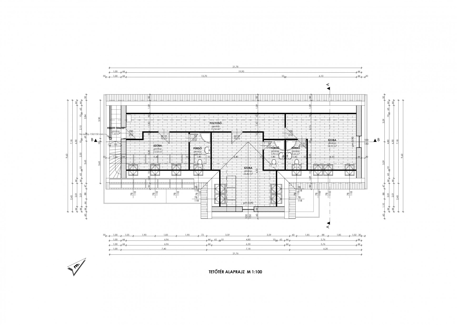
Ez a 2020-ban épült, modern, energiatakarékos vendégház akár azonnal üzemeltethető panzióként, akár tágas, többgenerációs családi házként is ideális választás.
Telek területe: 582 m²
Épület alapterülete: kb. 170 m²
Építés éve: 2020
Szerkezet: téglaépítésű, cserépfedéses
Állapot: újszerű
Főbb jellemzők
6 külön bejáratú, saját fürdőszobás szoba
Közös, tágas társalgó és felszerelt konyha
Hőszivattyús fűtés és hűtés fan-coil rendszerrel
Napelemrendszer ad–vesz órával → rendkívül alacsony rezsi
Közművek: víz, villany, szennyvízcsatorna
Modern burkolatok, világos terek, gondozott udvar
Felhasználási lehetőségek
- Engedéllyel működő vendégházként vagy panzióként
- Céges szálláshelyként – munkavállalók, partnerek elhelyezésére
- Többgenerációs családi házként
- Befektetésre és kiadásra – akár azonnali hozammal
Vértesboglár barátságos, fejlődő település a Vértes lábánál, Székesfehérvár és Bicske között, könnyen megközelíthető az M1-es autópályáról.
A környék ideális azok számára, akik nyugodt, természetközeli környezetben keresnek otthont vagy befektetési lehetőséget.
Modern technológia, energiahatékonyság és biztos hozam egyben – ritka lehetőség Vértesbogláron!
| Értékesítés | Eladó |
| Település | Vértesboglár |
| Ingatlan típusa | Vendégház |
| Szobák száma | Nappali + 6 |
| Ingatlan állapota | Újszerű |
| Fűtés | hőszivattyú, padlófűtés, fan coil |
| Komfort | Luxus |
| Parkolás | Udvari beálló |
| Víz | Van |
| Villany | Van |
| Gáz | Van |
| Csatorna | Van |
![[@title]](https://res.cloudinary.com/nestagency/image/fetch/c_fill,w_480,h_480,q_auto,f_auto/e_sharpen/https://www.nestagency.hu/uploads/workers/1738056365-131.jpg)




























































