22. kerületben, Rózsavölgyben sorház ELADÓ
22. kerületben, Rózsavölgyben sorház ELADÓ
22. kerület legszebb részén kínálok eladásra egy otthonos sorházat.
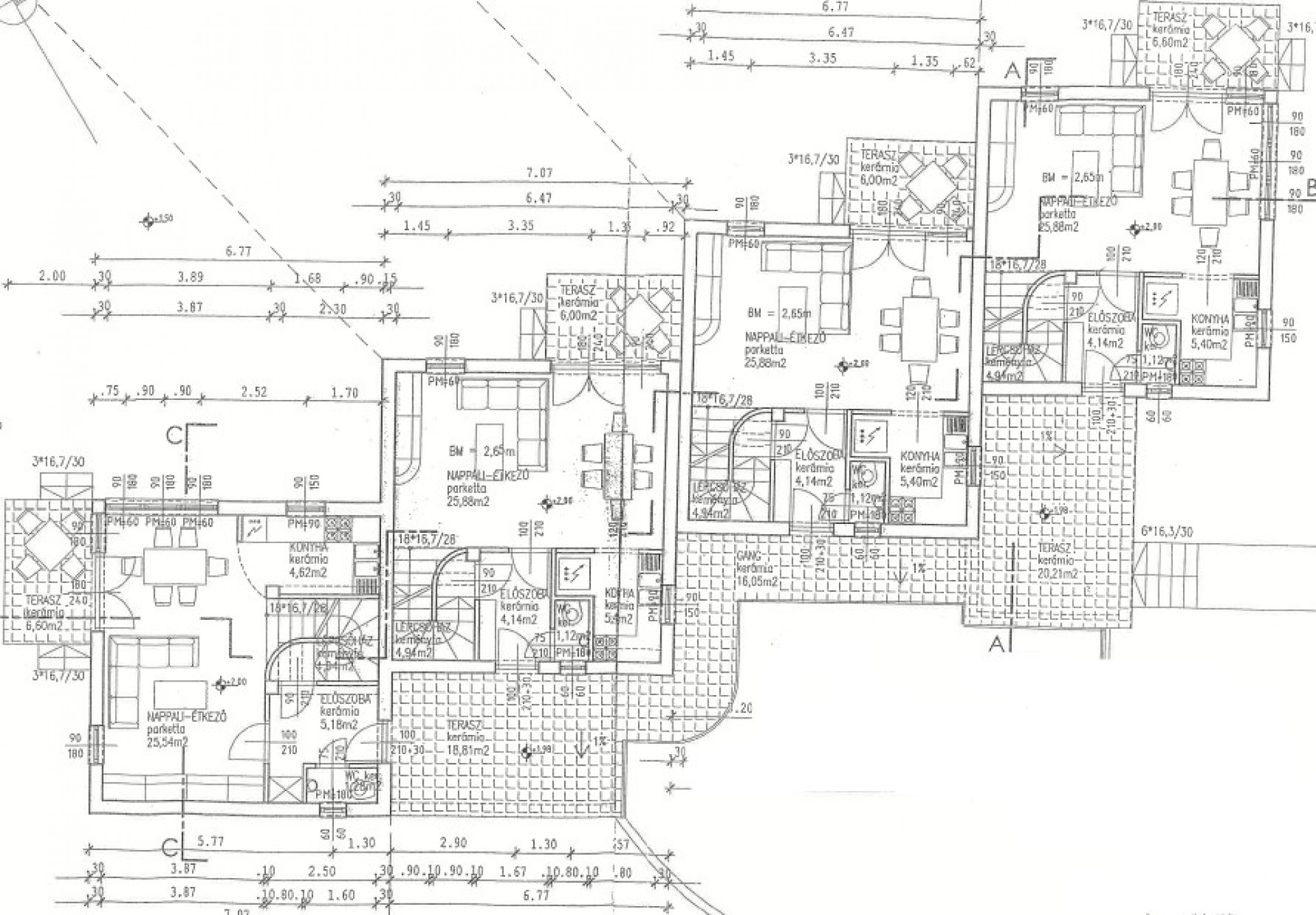
Rózsavölgy csendes, szép fekvésű utcájában található a 4 lakásos sorház, melynek 3. háza eladó.
A 3 szintes ingatlan legalsó részén található egy fűthető garázs, előszoba, háztartási helyiség (zuhanyzóval, wc-vel) és egy tágas, bútorozott tároló, bor trezorral. Ide az udvarról az autóbeállón keresztül juthatunk be.
A középső szinten zajlik a családi élet, itt kapott helyet, a főbejárat amely az előszobába nyílik, egy világos, szeparált konyha - étkező, és nappali valamint mellékhelyiség. A kert, amely kizárólagos használatú, erről a szintről elérhető, burkolt terasz és a gyerekeknek játszósarok is kialakított. Szépen karbantartott és parkosított növényzettel beültetett, kerti sütögetővel.
A felső szinten találhatóak a hálószobák (12,2 nm, 8,3 nm és 8,2 nm), valamint egy kádas fürdőszoba wc-vel és bidével. A 2 hálószoba saját, kertre néző erkéllyel is rendelkezik.
Tájolásából adodóan az ingatlan világos. a környéken sok a zöld növényzet, ennek látványa is emeli a környék szépségét. Nagy előnye, hogy minden irányban panorámás, szellős.
A ház utcafronti részén térköves, közös használatú udvar található (200+ nm), további parkolási lehetőséggel, beálló formájában.
A lakás fűtése radiátoros rendszerű, Junkers gázkazánnal. A rezsi költség kedvező, köszönhetően a kőzetgyapotos homlokzati és padlás szigetelésnek, ill. a lakások részben átfedő kialakításának. Az éves áramfogyasztás 2500 KWh körüli (havi kb. 210 kWh), míg a gázfogyasztás évi 1.100-1.200 m3 közötti (átlag kb. 90-100 m3/hó).
Savoya Park, Budafok belváros autóval pár perc, Kelenföld/Őrmező 10 perc. Buszmegálló 5 perc séta, villamosmegálló 10 perc sétatávra található.
Várom megtisztelő hívását.
| Értékesítés | Eladó |
| Ingatlan típusa | Sorház |
| Szobák száma | 4 |
| Ingatlan állapota | Újszerű |
| Fűtés | Gáz (cirko) |
| Építés éve | 2011 |
| Épület szintjei | 3 |
| Pince | Van |
| Tetőtér | Nem beépíthető |
| Komfort | Duplakomfort |
| Parkolás | Teremgarázs - az árban |
| Kilátás | Udvarra néző |
| Kertkapcsolatos | Igen |
| Fürdő és WC | Egyben és külön is |
| Légkondicionáló | Van |
| Akadálymentesített | Nem |
| Rezsiköltség | 35.000 Ft/hó |
![[@title]](https://res.cloudinary.com/nestagency/image/fetch/c_fill,w_480,h_480,q_auto,f_auto/e_sharpen/https://www.nestagency.hu/uploads/workers/1634720381-FaceAPP1.jpg)




.jpg)









.jpg)








