BUDAJENŐ TEMPLOMKERT VILLAPARKBAN ÚJ ÉPÍTÉSŰ CSALÁDI HÁZAK ELADÓK
Budajenő zsákutcájában önálló családi házak eladók
BUDAJENŐ TEMPLOMKERT VILLAPARKBAN ÚJ ÉPÍTÉSŰ CSALÁDI HÁZAK ELADÓK
BUDAJENŐ TEMPLOMVÖLGY VILLAPARKBAN ÚJ ÉPÍTÉSŰ CSALÁDI HÁZAK ELADÓK
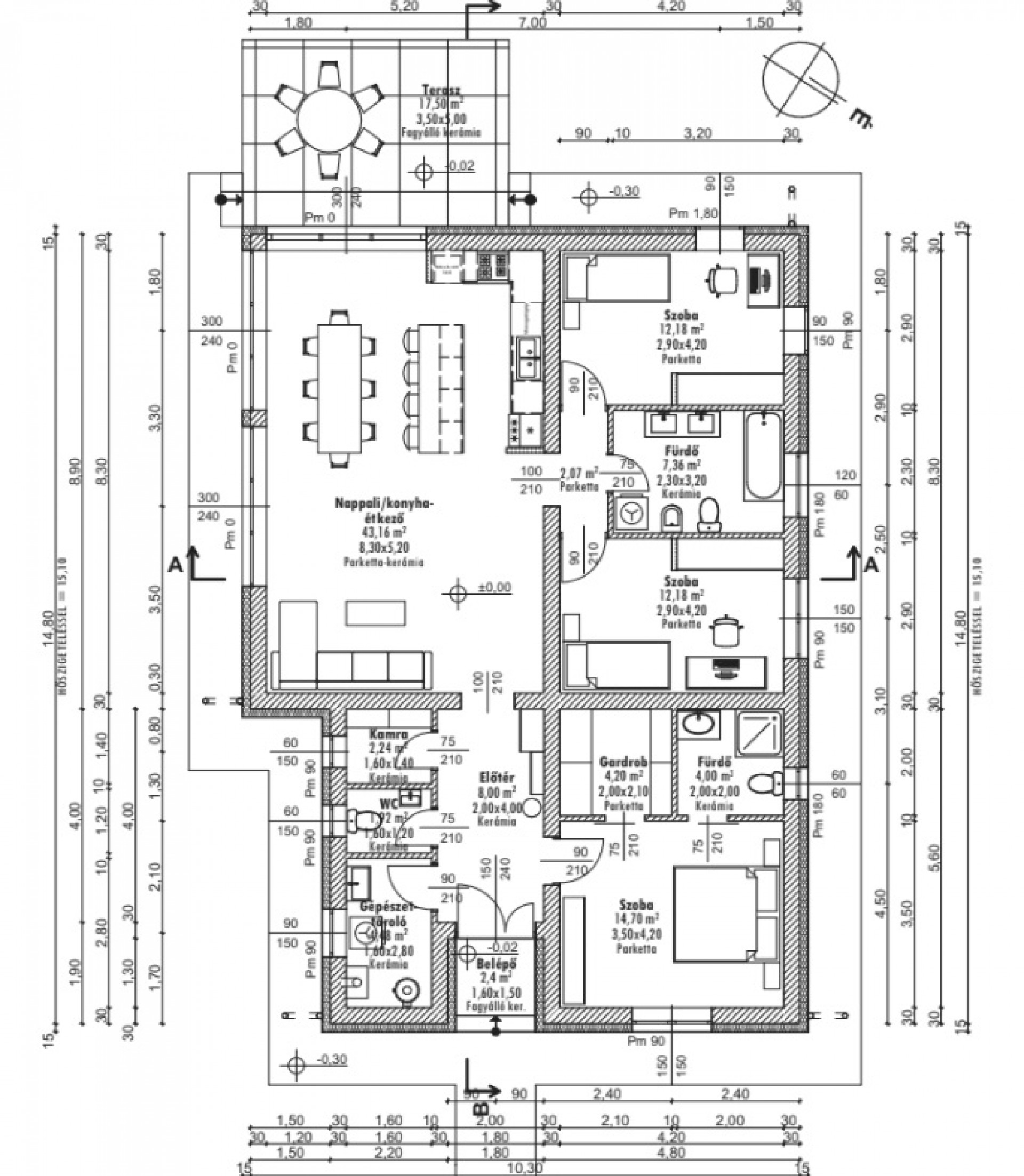
Budajenő új részén, a Templomvölgy Villapark aljában nappali és 3-4 illetve 5 hálószobás családi házak eladók magas műszaki tartalommal, 933 nm-es telekkel, kertépítéssel, kulcsrakész állapotban!
A zsákutcában 11 ház készül, egyedi igények alapján az alaprajzok bizonyos keretek között még változtathatók.
A szóban forgó ingatlan nappali és 3 hálószobás, 2 fürdőszobával, teraszkapcsolattal, autóbeállóval, igény esetén 1 állásos garázzsal.
Fűtéséről kondenzációs kazán gondoskodik, HŐSZIVATTYÚ kérhető, padlófűtéssel, hűtés inverteres klímával megoldott.
A kivitelező számos referenciával rendelkezik, melyek megtekinthetők.
Már elkészült, ÖRÖK PANORÁMÁS ingatlanok -159.9 Millió ft-ért- az alábbi linken elérhetők:
https://ingatlan.com/34203107
Kifejezetten nyugalmas, meghitt környezetben, igényes kivitelezéssel, egyedi igények figyelembevételével valósítják meg leendő otthonát!
Referenciaház elkészült állapotban megtekinthető!
Várom megtisztelő érdeklődését a hét minden napján!
| Értékesítés | Eladó |
| Település | Budajenő |
| Ingatlan típusa | Családi ház |
| Szobák száma | Nappali + 3 |
| Félszobák száma | 1 |
| Ingatlan állapota | Új építésű |
| Fűtés | Padlófűtés |
| Építés éve | 2024 |
| Épület szintjei | Földszintes |
| Komfort | Duplakomfort |
| Parkolás | Udvari beálló |
| Fürdő és WC | Egyben és külön is |
![[@title]](https://res.cloudinary.com/nestagency/image/fetch/c_fill,w_480,h_480,q_auto,f_auto/e_sharpen/https://www.nestagency.hu/uploads/workers/1634725677-FaceAPP4.jpg)
















.jpg)
