BUDAJENŐN EXKLUZÍV, ÚJ ÉPÍTÉSŰ CSALÁDI HÁZ ELADÓ
BUDAJENŐN EXKLUZÍV, ÚJ ÉPÍTÉSŰ CSALÁDI HÁZ ELADÓ
A tetszetős családi ház hatalmas üvegfelületekkel, egyedi megoldásokkal, kifejezetten magas minőségben és minden igényt kielégítő felszereltséggel kerül átadásra.
A nappali és 3 hálószobás ingatlan konyhája egyedi tervek alapján készül, teljes gépészettel.
Budajenő gyönyörű részén, összesen nettó 159.25nm-es (+ terasz) új építésű önálló családi ház leköthető igény szerinti befejezéssel!
Várható átadás: 2024. augusztus!
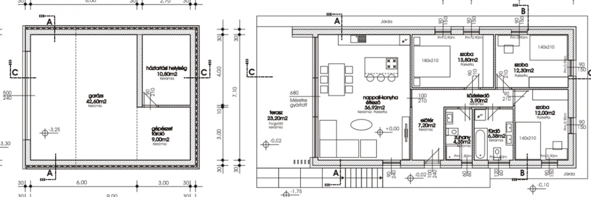
Az ingatlan szintenkénti felosztása:
Alagsor (62.4nm): garázs (42.6nm), gépészet-tároló (9nm), háztartási helyiség (10.8nm).
Földszint (96.85nm + terasz): előtér (7.2nm), közlekedő (3.9nm), nappali-konyha (36.92nm), 2 fürdőszoba (4.35nm, 6.38nm), 3 szoba (12nm, 12.3nm, 13.8nm), terasz (23.2nm).
Szerkezeti leírás: Beton alap. Tégla főfalak + 15cm EPS hőszigetelés, lábazaton 15cm XPS szigetelés. Tégla válaszfalak. A külső nyílászárók műanyag szerkezetűek, 5 légkamrás, 3 rétegű üvegezéssel ellátva antracit színben, szúnyoghálóval kombinált vakolhatótokos, elektromos redőnyökkel felszerelve, kívül-belül műkő párkányokkal. A belső nyílászárók dekorfóliás ajtók. Födémen 30 cm kőzetgyapot szigetelés. Cserép fedésű tető.
Az igény szerinti befejezésnek köszönhetően a hideg-meleg burkolatok 10.000Ft / nm árig választhatók.
Fűtés, meleg víz ellátás: Az ingatlan fűtése hőszivattyús rendszerrel megoldott, melyhez a meleg víz egyenletes és folytonos hőmérsékletének biztosításához egy 200l-es indirekt víztároló tartály kapcsolódik. A fűtést minden helyiségben padlófűtés biztosítja.
Parkolás: alagsorban 2 gépkocsi számára alkalmas garázsban.
Extrák: beépített-gépesített konyhabútor, redőnyök, szúnyoghálók, 3 db. klíma, elektromos nagykapu, elektromos garázsajtó, öntözőrendszer, riasztó kiépítés.
Várható befejezés 2024. augusztus!
A kivitelező számos referenciával rendelkezik, melyek megtekinthetők!
További hasonló ingatlanok találhatók még a NEST AGENCY INGATLANIRODA kínálatában!
Várom megtisztelő érdeklődését a hét minden napján!
| Értékesítés | Eladó |
| Település | Budajenő |
| Ingatlan típusa | Családi ház |
| Szobák száma | 4 |
| Ingatlan állapota | Új építésű |
| Fűtés | hőszivattyú, padlófűtés |
| Építés éve | 2024 |
| Emelet | 2 |
| Komfort | Duplakomfort |
| Parkolás | Garázsban |
| Fürdő és WC | Egyben és külön is |
| Légkondicionáló | Van |
![[@title]](https://res.cloudinary.com/nestagency/image/fetch/c_fill,w_480,h_480,q_auto,f_auto/e_sharpen/https://www.nestagency.hu/uploads/workers/1634725677-FaceAPP4.jpg)

















