Budapest, III. kerületében, Csillaghegyen eladó egy 420 m2-es kétgenerációs családi ház.
Eladó 420 m2-es kétgenerációs családi ház, 1403 m2-es telekkel.
Budapest, III. kerületében, Csillaghegyen eladó egy 420 m2-es kétgenerációs családi ház.
Budapest, III. kerületében, Csillaghegy városrészben eladó egy 420 m2-es kétgenerációs családi ház.
A különleges hangulatú, loft-jellegű építészeti megoldásokkal kialakított 420 m2 lakótérrel rendelkező ingatlan egy 1403 m2 nagyságú telken kapott helyet.
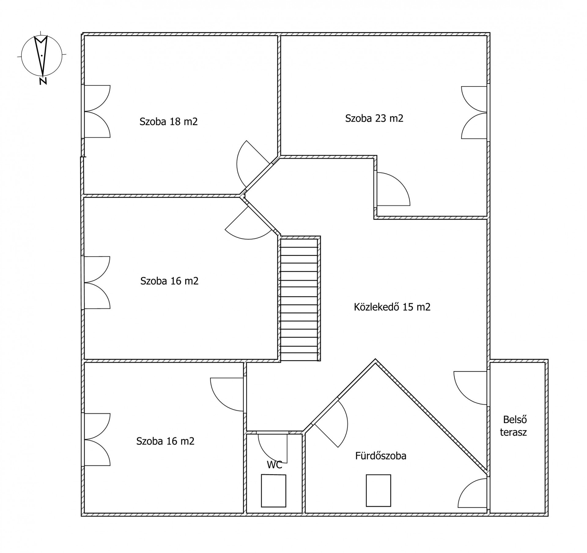
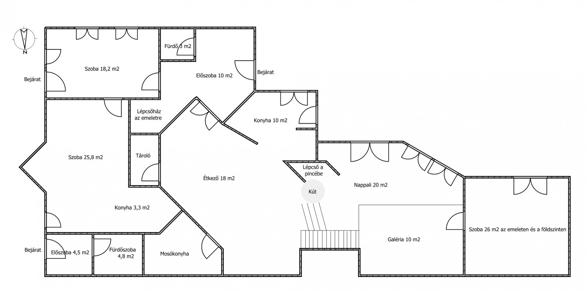
A földszinten három bejárattal rendelkező házban 10 szoba, 2 konyha és 3 fürdőszoba lett kialakítva.
A földszint 270 m2-es, különlegességét a konyha-étkező-nappali egy légtérben való elhelyezkedése adja, amiben még egy használatban lévő, működő kút is található.
A rendkívül mozgalmas lakótérben a fa a vas és a tégla építőanyagok dominálnak, valamint a nagyméretű nyílászárók. Az ablakok fából készültek, két rétegű hőszigetelt üvegezéssel.
A földszinten egy különálló lakrészként is használható egységet alakítottak ki nappalival, étkezővel, konyhával, fürdővel és hálószobával, míg az emeleten további 4 hálószoba egy fürdőszoba és egy különálló WC található, valamint egy belső erkély, amelyről a földszinti nappalira látni.
A pinceszinten egy garázst és tároló helyiségeket használhat a tulajdonos és itt kapott helyet a gépészeti helyiség is.
A telek hatalmas és teljesen sík, intim kerttel rendelkezik, amely a garázsokon kívül további autók parkolására is lehetőséget ad jelenlegi kialakításában.
A ház teljes körű felújításon és átépítésen esett át.
2019-ben új, Ariston kombi gázkazán, készenléti víztartály, továbbá előkészítés rézcsövekkel a napkollektor fűtéshez került kiépítésre.
A helyiségek klimatizáltak.
Automata garázs kapu, automata öntözőberendezés, erkélyek, gépesített konyha, kandalló, kert, légkondicionáló, riasztó.
A ház lakóhelynek, vagy üzleti, vállalkozási célokra is kitűnő választás lehet.
Az ingatlanról alaprajz a képek között található.
Azonnal költözhető!
Várom a megtisztelő hívását!
| Értékesítés | Eladó |
| Település | Budapest III. kerület |
| Ingatlan típusa | Családi ház |
| Szobák száma | Nappali + 9 |
| Ingatlan állapota | Jó állapotú |
| Fűtés | Gázkazán |
| Építés éve | 2001-2010 |
| Épület szintjei | Földszintes |
| Pince | Van |
| Tetőtér | Beépített |
| Komfort | Duplakomfort |
| Parkolás | Garázsban és telken belül is |
| Kilátás | Udvarra és utcára néző |
| Kertkapcsolatos | Igen |
| Fürdő és WC | Egyben és külön is |
| Légkondicionáló | Van |
| Belmagasság | 3 méternél magasabb |
| Költözhető | azonnal |
![[@title]](https://res.cloudinary.com/nestagency/image/fetch/c_fill,w_480,h_480,q_auto,f_auto/e_sharpen/https://www.nestagency.hu/uploads/workers/1634720407-FaceAPP2.jpg)







