Ercsi csendes, nyugodt, mégis remek közlekedésű részén ikerházfél eladó
Ercsiben vadonatúj építésű, egyszintes ikerház nagy kerttel eladó
Ercsi csendes, nyugodt, mégis remek közlekedésű részén ikerházfél eladó
Rendkívül jó ár-érték arány, szuper lehetőség!
Vadonatúj építésű, minőségi anyagokkal kivitelezett egyszintes ikerház jellegű önálló ház eladó Ercsi csendes, nyugodt, mégis nagyon jó közlekedésű részén!
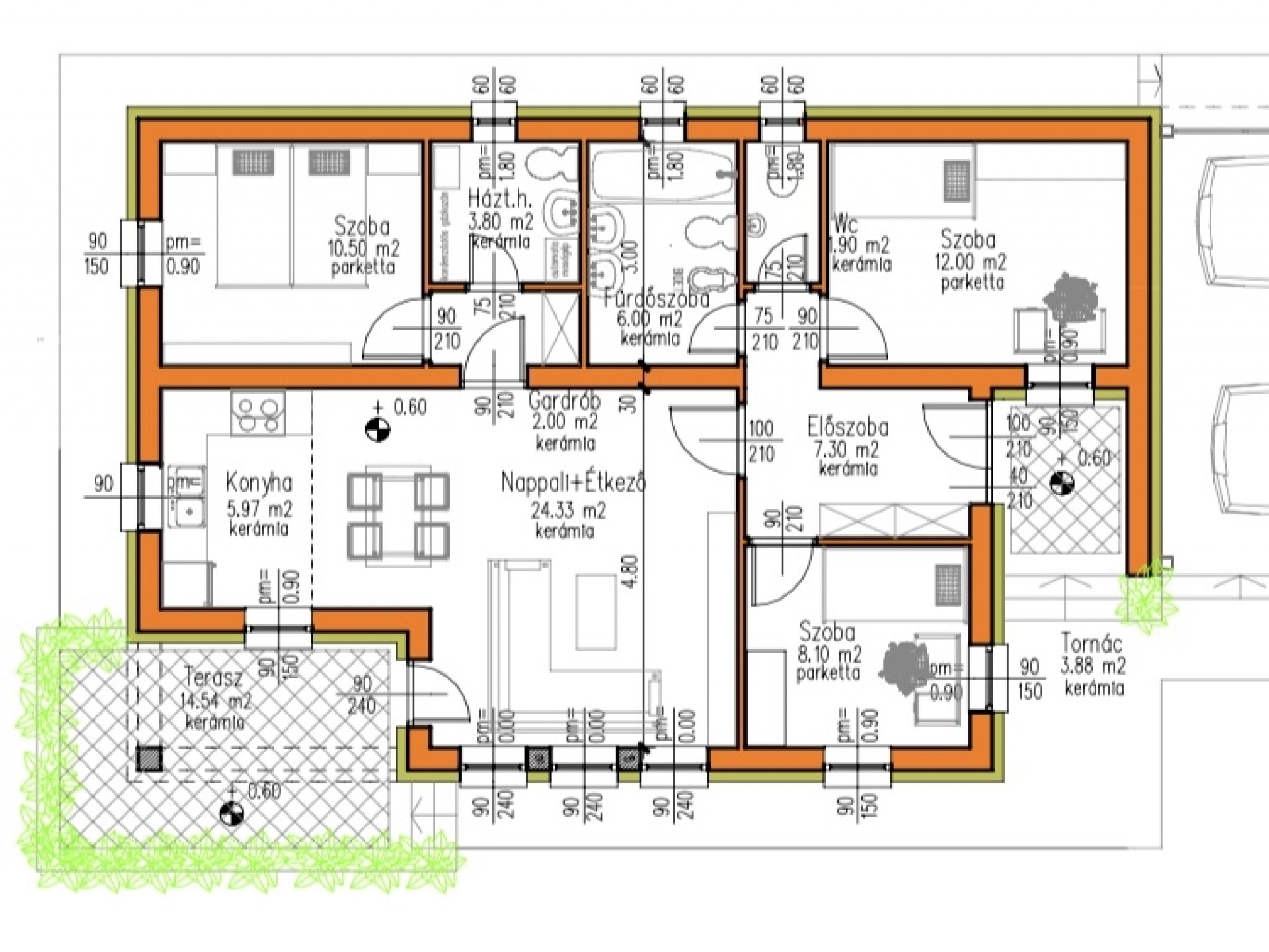
Az egyszintes, bruttó 92 m2-es ikerház rendkívül jó elosztású, helyiségei: amerikai konyhás nappali + 3 szoba, mosókonyha, kádas fürdő wc-vel, külön kis wc és kényelmes előszoba.
A kertkapcsolatos nappaliból nagyméretű, pergolával fedett teraszra jutunk, melynek tájolása tökéletes, DNy-i, tehát egész nap körbenapozott.
Az ingatlanhoz tartozó teljesen szeparált, saját 795 m2-es kertben található egy 40 m2 alapterületű fedett dupla autóbeálló. Az ikerház másik felével mindössze ez köti össze az ingatlant, tehát semmilyen közös fal/falrész nincs!
A kertben további 3 autó beállására van lehetőség.
Az ingatlan A+ energetikai besorolású, köszönhetően a 15 cm külső szigetelésnek, a többrétegű műanyag nyílászáróknak (redőnnyel, szúnyoghálóval), és a padlófűtést kiszolgáló hőszivattyúnak.
Minden burkolat, szaniter és beépített bútor minőségi, felső kategóriás, a konyhabútor méretre tervezett, egyedi gyártású, a konyhagépek mind a prémium AEG márkát képviselik.
Az ingatlan nem beépített bútorai és berendezései külön megbeszélés tárgyát képezik az áron felül.
A közlekedés kiváló: az utca végében található a buszmegálló Ercsi központja felé, a vasútállomás 10 perc gyalog, az M6 autópálya és a 6-os út egyaránt 2 percre vannak autóval.
A kert még nincs befejezve, a teljes kialakítás az új tulajdonosra vár. Méretéből adódóan nagyméretű medence, napozó, kerti tó, gyerekjátszó, kerti konyha vagy bármi kényelmesen kiépíthető benne, határt csak a fantázia vagy a pénztárca szabhat!
Amennyiben egy ilyen szuper lehetőséget keres, a főváros zajától távol, mégis nagyon jó közlekedéssel, most megtalálta!
Hívjon bizalommal!
| Értékesítés | Eladó |
| Település | Ercsi |
| Ingatlan típusa | Ikerház |
| Szobák száma | Nappali + 3 |
| Ingatlan állapota | Új építésű |
| Fűtés | Hőszivattyú |
| Építés éve | 2024 |
| Épület szintjei | Földszintes |
| Parkolás | Udvari beálló |
| Kertkapcsolatos | Igen |
| Fürdő és WC | Egyben és külön is |
| Légkondicionáló | Van |
![[@title]](https://res.cloudinary.com/nestagency/image/fetch/c_fill,w_480,h_480,q_auto,f_auto/e_sharpen/https://www.nestagency.hu/uploads/workers/1634660033-img-5208.jpg)



































