Érd Fenyvesben Minimalista Önálló családi ház eladó
Érd Fenyvesben hangulatos, ősfákkal övezett telken 2 szintes, exluzív ház eladó garázzsal
Érd Fenyvesben Minimalista Önálló családi ház eladó
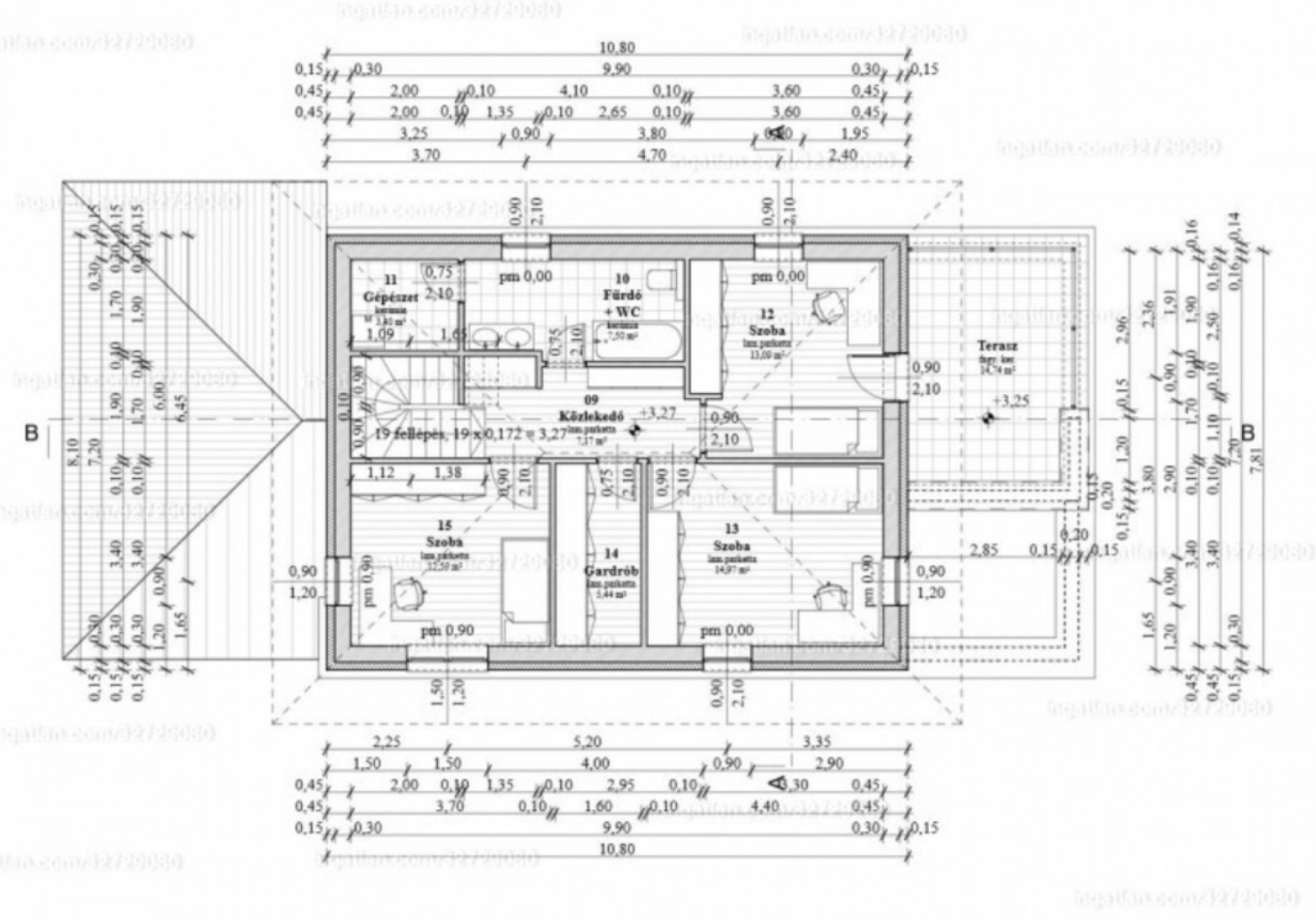
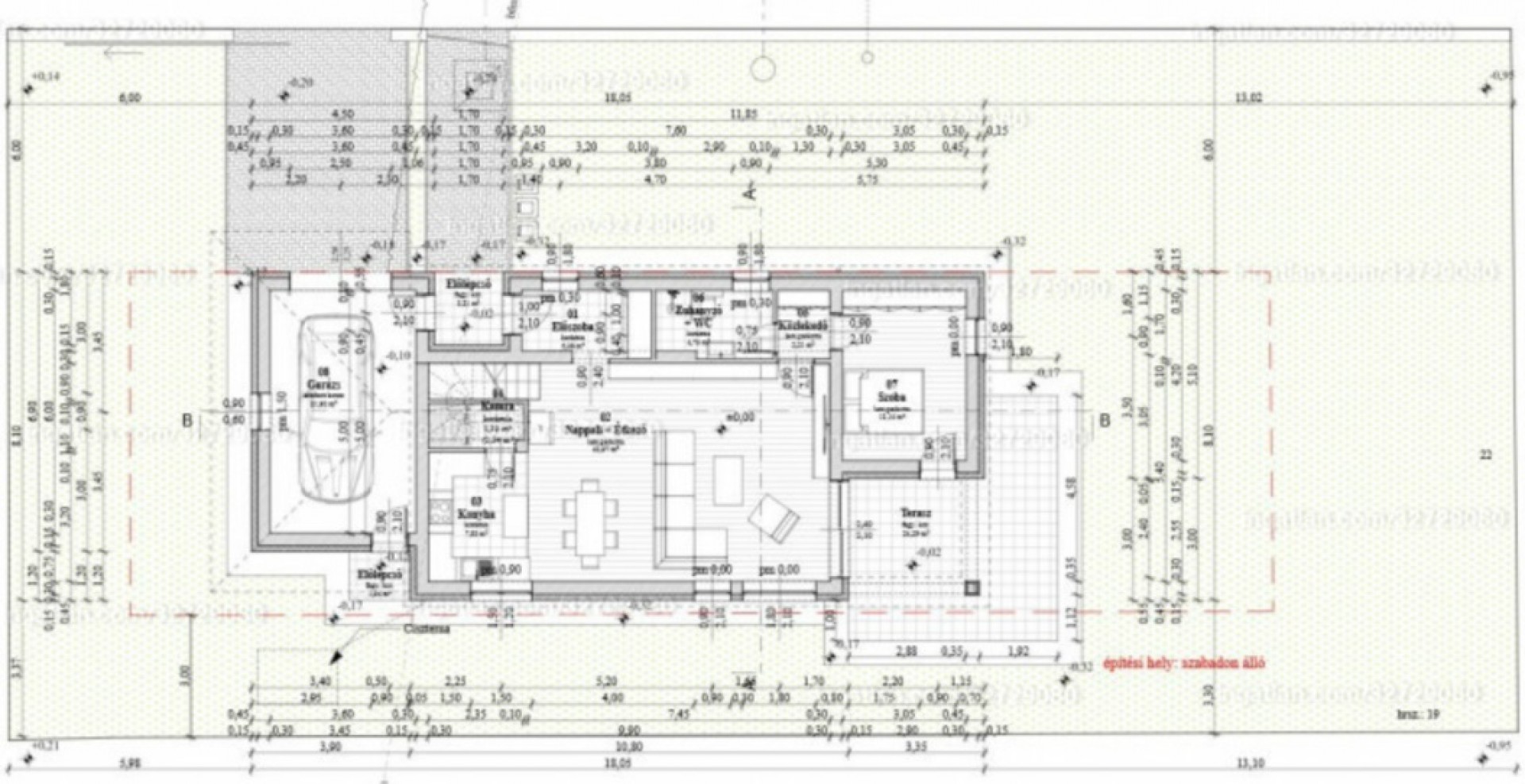
Érd Fenyves Parkvárosban, ŐSFÁS környezetben, aszfaltos utcában kínálok eladásra egy nappali és 4 hálószobás családi házat. Új építésű ingatlanokkal beépített részen egy 645 m2-es telken épült ingatlan bruttó 216 m2 alapterületű, 164 m2 hasznos alapterülettel, magas műszaki tartalommal.
A földszinten hatalmas, egy légterű nappali-étkező-konyha, előszoba, zuhanyzó+Wc,  hálószoba, kamra, garázs és  tároló található.  A kertkapcsolat a nappaliból és a hálószobából nagyméretű tolóajtón keresztül megoldott. 
Az emeletre került egy káddal felszerelt fürdőszoba, gardróbszoba valamint három nagy méretű szoba, illetve egy tágas, PANORÁMÁS terasz.
A ház minőségi anyagok felhasználásával, korszerű technikával, sok extrával épült. Az épület földszinti teherhordó falszerkezete 30 cm vtg. Bakonytherm falazat, a homlokzaton 15 cm , a lábazaton pedig 10 cm hőszigeteléssel.
A tető fedése fekete Terran cserép, színezett bádogozással,  eresz dobozolással. A beépített nyílászárók, műanyag szerkezetű, három réteg üvegezésű, fokozott hőszigetelésű, kívül antracit belül fehér színű nyílászárók, vakolható tokos beépített, motoros vezérlésű redőnnyel, szúnyoghálóval felszerelve.
A ház fűtéséről és melegvíz-ellátásáról LG Therma 16 KW-os HŐSZIVATTYÚ gondoskodik, a hőleadás padlófűtésen keresztül történik, továbbá tartalékfűtés és hűtés számára split klíma funkcionál. Az épület a modern fűtésnek, a NAPELEMnek és a vastag szigetelésnek köszönhetően rendkívül alacsony rezsi költséggel fenntartható. Beépítésre került továbbá egy Ubbink Vigor hővisszanyerős, páraszabályozós LAKÁSSZELLŐZTETŐ rendszer, melynek köszönhetően a ház folyamatosan friss levegővel van ellátva.
A burkolatok, beltéri ajtók, szaniterek magas minőségben szabadon választhatók.
Az ingatlan megvásárlásához CSOK PLUSZ igénybe vehető.
Extrák: elektromos kis- és nagykapu, motoros garázskapu, kaputelefon, riasztórendszer előkészítés, klíma a nappaliban, a szobákban előkészítve, ELEKTROMOS REDŐNY, termőföldterítés, falazott kerítés.
A kivitelező sokéves tapasztalattal, és referenciákkal rendelkezik a környéken.
Érdeklődés esetén műszaki tartalmat küldök!
Meghitt környezet, minőség és élhetőség!
Várom megtisztelő érdeklődését a hét minden napján!
| Értékesítés | Eladó | 
| Település | Érd | 
| Ingatlan típusa | Családi ház | 
| Szobák száma | Nappali + 4 | 
| Félszobák száma | 1 | 
| Ingatlan állapota | Új építésű | 
| Fűtés | Hőszivattyú | 
| Fürdő és WC | Egyben és külön is | 
| Légkondicionáló | Van | 
![[@title]](https://res.cloudinary.com/nestagency/image/fetch/c_fill,w_480,h_480,q_auto,f_auto/e_sharpen/https://www.nestagency.hu/uploads/workers/1634725677-FaceAPP4.jpg)
















.jpg)