Érd Fenyvesben ÚJ ÉPÍTÉSŰ, minimál ház eladó
Érd Fenyves-Parkvárosban nappali és 4 hálós családi ház eladó garázzsal, 645 nm-es telekkel
Érd Fenyvesben ÚJ ÉPÍTÉSŰ, minimál ház eladó
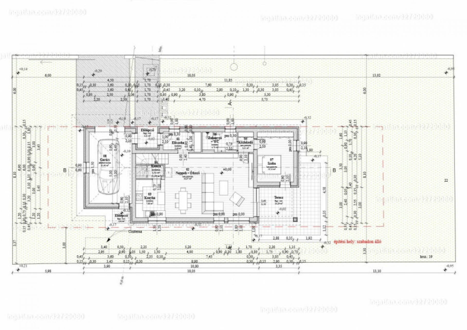
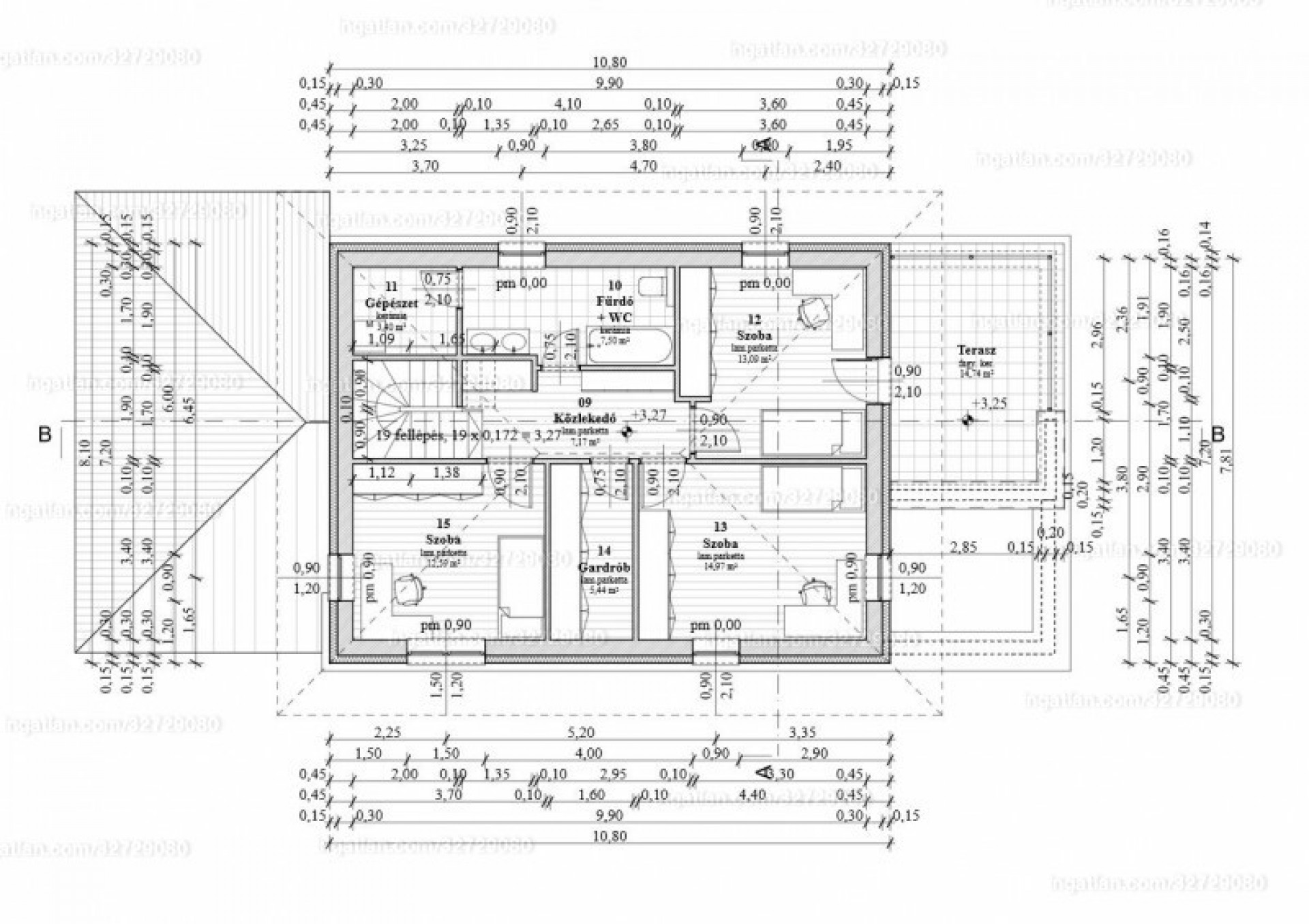
Érd Fenyves Parkvárosban, aszfaltos utcában, rendezett, újépítésű ingatlanokkal beépített részen, 645 m2-es telken eladó egy bruttó 216 m2 alapterületű, 164 m2 hasznos alapterületű CSALÁDI HÁZ.
Az ingatlan nappali + 4 szobás önálló, dupla komfortos, kétszintes ház, magas műszaki tartalommal.
A ház elosztása: a földszinten egy hatalmas egy légterű nappali-étkező-konyha, előszoba, zuhanyzó+Wc, egy hálószoba, kamra, garázs és egy tároló. A kertkapcsolat a nappaliból és a hálószobából nagyméretű tolóajtón keresztül megoldott. Az emeletre került egy káddal felszerelt fürdőszoba, gardróbszoba valamint három nagy méretű szoba, illetve egy hatalmas, panorámás terasz.
A ház minőségi anyagok felhasználásával, korszerű technikával, sok extrával épült. Az épület földszinti teherhordó falszerkezete 30 cm vtg. Bakonytherm falazat, a homlokzaton 15 cm , a lábazaton pedig 10 cm hőszigeteléssel.
A tető fedése fekete Terran cserép, színezett bádogozással, az eresz dobozolással. A beépített nyílászárók műanyag szerkezetű, három réteg üvegezésű, fokozott hőszigetelésű, kívül antracit belül fehér színű nyílászárók, vakolható tokos beépített, motoros vezérlésű redőnnyel, szúnyoghálóval felszerelve.
A ház fűtéséről és melegvíz-ellátásáról LG Therma 16 KW-os hőszivattyű gondoskodik, a hőleadás padlófűtésen keresztül történik, továbbá tartalékfűtés és hűtés számára split klíma funkcionál. Az épület a modern fűtésnek, a NAPELEMEKnek és a vastag szigetelésnek köszönhetően rendkívül alacsony rezsi költséggel fenntartható. Beépítésre került továbbá egy Ubbink Vigor hővisszanyerős, páraszabályozós lakásszellőztető rendszer, melynek köszönhetően a ház folyamatosan friss levegővel van ellátva szellőztetés nélkül is.
A burkolatok, beltéri ajtók, szaniterek a műszaki tartalomban rögzített árakig szabadon választhatók.
Az ingatlan megvásárlásához CSOK+ igénybe vehető.
Extrák: elektromos kis- és nagykapu, motoros garázskapu, kaputelefon, riasztórendszer előkészítés, klíma a nappaliban, a szobákban előkészítve, elektromos redőny, termőföldterítés, falazott kerítés.
A kivitelező sokéves tapasztalattal, és referenciákkal rendelkezik a környéken.
Várom megtisztelő érdeklődését a hét minden napján!
| Értékesítés | Eladó |
| Település | Érd |
| Ingatlan típusa | Családi ház |
| Szobák száma | Nappali + 4 |
| Félszobák száma | 1 |
| Ingatlan állapota | Új építésű |
| Fűtés | Hőszivattyú |
| Épület szintjei | 2 |
| Komfort | Duplakomfort |
| Parkolás | Garázsban és telken belül is |
| Erkély | 20 m2 |
| Fürdő és WC | Egyben és külön is |
| Légkondicionáló | Van |
![[@title]](https://res.cloudinary.com/nestagency/image/fetch/c_fill,w_480,h_480,q_auto,f_auto/e_sharpen/https://www.nestagency.hu/uploads/workers/1634725677-FaceAPP4.jpg)

















