Érdligeten Új Építésű Családi Ház eladó NAGY TELEKKEL
Érd kiválóm részén, természetközeli környezetben, magas minősében épülő családi otthon 5 szobával
Érdligeten Új Építésű Családi Ház eladó NAGY TELEKKEL
MAGAS MINŐSÉGBEN KIVITELEZETT INGATLAN
NAPPALI + 4 SZOBA
NAGY TELEK, KIVÁLÓ ELHELYEZKEDÉS
Eladásra kínálunk Érd egyik legkedveltebb részén, Érdligeten egy nappali + 4 hálószobás, nagy teraszos, önálló új építésű családi házat!
1098 m²-es, sík fekvésű telken, rendezett, családi házas környezetben épül ez az egyszintes, modern kialakítású otthon, amelyhez tágas teraszok és garázs is tartozik.
A házat tőkeerős, megbízható kivitelező cég építi, számos megtekinthető referenciával a környéken.
A jelenlegi készültségi fokban egyéni kialakításra még lehetőség van.
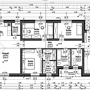
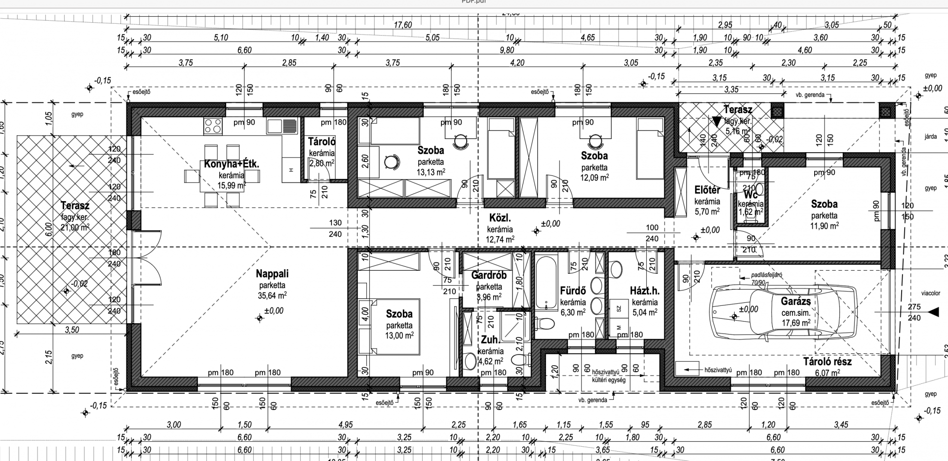
Helyiségek (nettó 170 m² + teraszok)
- Nappali – 35,64 m²
- Konyha + Étkező – 15,99 m²
- 3 szoba – (13,13 m², 12,09 m², 11,90 m², 13,00 m²)
- Közlekedő (Közl.) – 12,74 m²
- Előtér – 5,70 m²
- Gardrób – 3,96 m²
- Fürdő – 6,30 m²
- Zuhanyzó (Zuh.) – 4,62 m²
- WC – 1,62 m²
- Háztartási helyiség (Ház.h.) – 5,04 m²
- Tároló – 2,80 m²
- Garázs – 17,69 m²
- Tároló rész (garázshoz kapcsolódó) – 6,07 m²
Terasz (nagy) – 21,00 m²
Terasz (bejáratnál) – 5,16 m²
A teljes közművesítés jelenleg zajlik, minden bekötés új. A kerítés kivitelezése folyamatban van. A telken ásott kút található, amely locsolásra kiválóan alkalmas,
Műszaki tartalom (a vételár tartalmazza)
•Nyílászárók 82 mm-es, 6 légkamrás, 3 rétegű argonnal töltött üvegezés
•Színezett kivitel
•Rejtett tokozású, elektromos alumínium redőnyök
•Tokba épített szúnyogháló
Gépészet
•Hőszivattyú (Panasonic / Daikin – br. 3.000.000 Ft-ig)
•200 literes beépített melegvíz tartály
•Padlófűtés minden helyiségben
•Fürdőszobákban törölközőszárítós radiátor
•Hővisszanyerős központi szellőztető rendszer (Premium Ventilus)
•Homok vízszűrő
•3x16A + H tarifa 1x32A
Burkolatok
•Hideg- és melegburkolatok választhatók br. 10.000 Ft/m²-ig
•Garázs burkolat br. 5.000 Ft/m²
•60x60 cm méretig az ár tartalmazza a burkolást
•Épített WC-k (porcelán)
•Épített zuhany
•Beltéri ajtók br. 100.000 Ft/db
Elektromos rendszer
•120 db prémium Legrand (Vanela Life) szerelvény
•35 db világítótest kiállás
•Elektromos, hőszigetelt, motoros garázskapu
•Napelem előkészítés
•Okos otthon előkészítés
•Kamera, internet, riasztó előkészítés
•Külső lámpa előkészítés
Külső kialakítás
•15 cm vastag homlokzati hőszigetelés
•20 m²-ig travertin mészkő homlokzati burkolat
•20 cm födémszigetelés (kőzetgyapot)
•Sík tetőcserép, színazonos bádogozás
•Csapadékvíz ciszternába / szikkasztóba vezetve
•Kertrendezés, termőföld feltöltés
•Kerti csap
•Járda és beálló viacolor burkolattal (br. 7.000 Ft-ig), CKT beton alapozással
•Választható kerítésbetét (fém pálcás vagy lemezfedés)
Szerkezeti ismertető
•Vasbeton sávalap statikai terv szerint
•Zsalukő lábazat
•30 cm vastag, síkra csiszolt téglafalazat
•10 cm válaszfalak
•10 cm aljzatszigetelés (gépészet ebben a rétegben)
•15 cm Dryvit hőszigetelés nemes vakolattal
•Betongerendás, béléstestes födém felbetonnal
•20 cm födémszigetelés
•Extrich aljzatbeton
Amit a vételár nem tartalmaz
•Konyhabútor és gépesítés
•Fürdőszobabútor, mosdószekrény
•Zuhany üvegfal / zuhanyfüggöny
•Lámpatestek
Ez az ingatlan kiváló választás azok számára, akik modern műszaki tartalommal, energiatakarékos megoldásokkal, még személyre szabható belső kialakítással keresnek hosszú távú otthont Érd egyik legjobb részén.
További információkért keressen bizalommal a hét bármely napján.
| Értékesítés | Eladó |
| Település | Érd |
| Ingatlan típusa | Családi ház |
| Szobák száma | Nappali + 4 |
| Ingatlan állapota | Új építésű |
| Fűtés | hőszivattyú, padlófűtés |
| Építés éve | 2026 |
| Épület szintjei | Földszint |
| Komfort | Duplakomfort |
| Kertkapcsolatos | Igen |
| Erkély | van |
| Fürdő és WC | Egyben és külön is |
![[@title]](https://res.cloudinary.com/nestagency/image/fetch/c_fill,w_480,h_480,q_auto,f_auto/e_sharpen/https://www.nestagency.hu/uploads/workers/1774180865-1774180460-1774180441-be99232b-6d35-4897-8f10-9863cbb54ffd.jpg)














