Földszinti tégla lakás Budaörsön
Jó állapotú, földszinti tégla lakás. 3 lakásos társasházban, kb. 120 m² saját kertkapcsolattal nagy pincével.
Földszinti tégla lakás Budaörsön
Budaörs frekventált, mégis nyugodt részén eladó egy jó állapotú, földszinti tégla lakás egy mindössze 3 lakásos társasházban, kb. 120 m² saját kertkapcsolattal nagy pincével. Az ingatlan kialakításának és elhelyezkedésének köszönhetően lakásként és üzleti célra egyaránt kiválóan alkalmas.
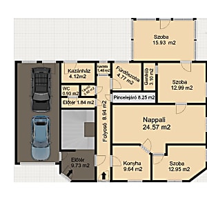
Elrendezés:
előszoba, tágas nappali, 3 hálószoba, konyha, felújított sarokkádas fürdőszoba, külön WC, tároló és kamra.
Műszaki tartalom:
– kondenzációs kazán radiátoros hőleadással
– átlagos fűtési költség: kb. 20–22.000 Ft/hó
– 10 cm külső hőszigetelés az épületen
– felújított, jól záródó fa nyílászárók, megfelelő hő- és hangszigeteléssel
Extrák, amelyek valódi értéket képviselnek:
A lakáshoz tartozik egy kb. 30 m²-es, száraz, tiszta pince, amely közvetlenül az előszobából közelíthető meg. Ideális tárolásra, hobbihelyiségnek vagy akár műhely jellegű használatra.
A kb. 120 m²-es saját kertkapcsolat, tökéletes pihenésre, kertészkedésre kikapcsolódásra és családi együttlétekre. Kialakítható kiülős, teraszos rész, játszósarok a gyerekeknek, kiskert vagy fűszerkert, valamint grillezésre, baráti összejövetelekre is kiváló.
Az ingatlan ideális választás családoknak, idősebbeknek (földszinti elhelyezkedés), valamint irodának, rendelőnek vagy egyéb üzleti tevékenységre, ahol fontos a könnyű megközelíthetőség és a kertkapcsolatos jelleg.
Opcionálisan megvásárolható:
– 33 m²-es, 2 férőhelyes garázs szerelőaknával, irányár: 19,9 M Ft
Környék és infrastruktúra:
Kiváló ellátottság: sportolási lehetőségek (ABS, Androméda Budaörs Sportcentrum), iskolák (Illyés Gyula Gimnázium, Herman Ottó Általános Iskola), több kisbolt, valamint az Auchan pár perc alatt elérhető.
Közlekedés:
– 40, 40B, 88, 88A buszokkal a Kelenföldi vasútállomás kb. 15 perc
– 140, 140A járatokkal a Déli pályaudvar kb. 25 perc
| Értékesítés | Eladó |
| Település | Budaörs |
| Ingatlan típusa | Tégla építésű lakás |
| Szobák száma | 4 |
| Ingatlan állapota | Jó állapotú |
| Fűtés | Kondenzációs, kombi gázkazán |
| Épület szintjei | 2 |
| Emelet | Földszint |
| Pince | Van |
| Tetőtér | Nem tetőtéri |
| Komfort | Összkomfort |
| Kilátás | Udvarra néző |
| Kertkapcsolatos | Igen |
| Fürdő és WC | Külön |
| Akadálymentesített | Igen |
| Költözhető | megegyezés szerint |
![[@title]](https://res.cloudinary.com/nestagency/image/fetch/c_fill,w_480,h_480,q_auto,f_auto/e_sharpen/https://www.nestagency.hu/uploads/workers/1769637469-img_7677.jpeg)




