Törökbálinton az Újtelep városrészben eladó egy új építésű, Nappali + 3 szobás ikerházfél.
Törökbálinton az Újtelep városrészben eladó egy új építésű, bruttó 123m2-es, Nappali+3 szobás ikerházfél.
Törökbálinton az Újtelep városrészben eladó egy új építésű, Nappali + 3 szobás ikerházfél.
Törökbálinton az Újtelep városrészben eladó egy új építésű, Nappali + 3 szobás ikerházfél.
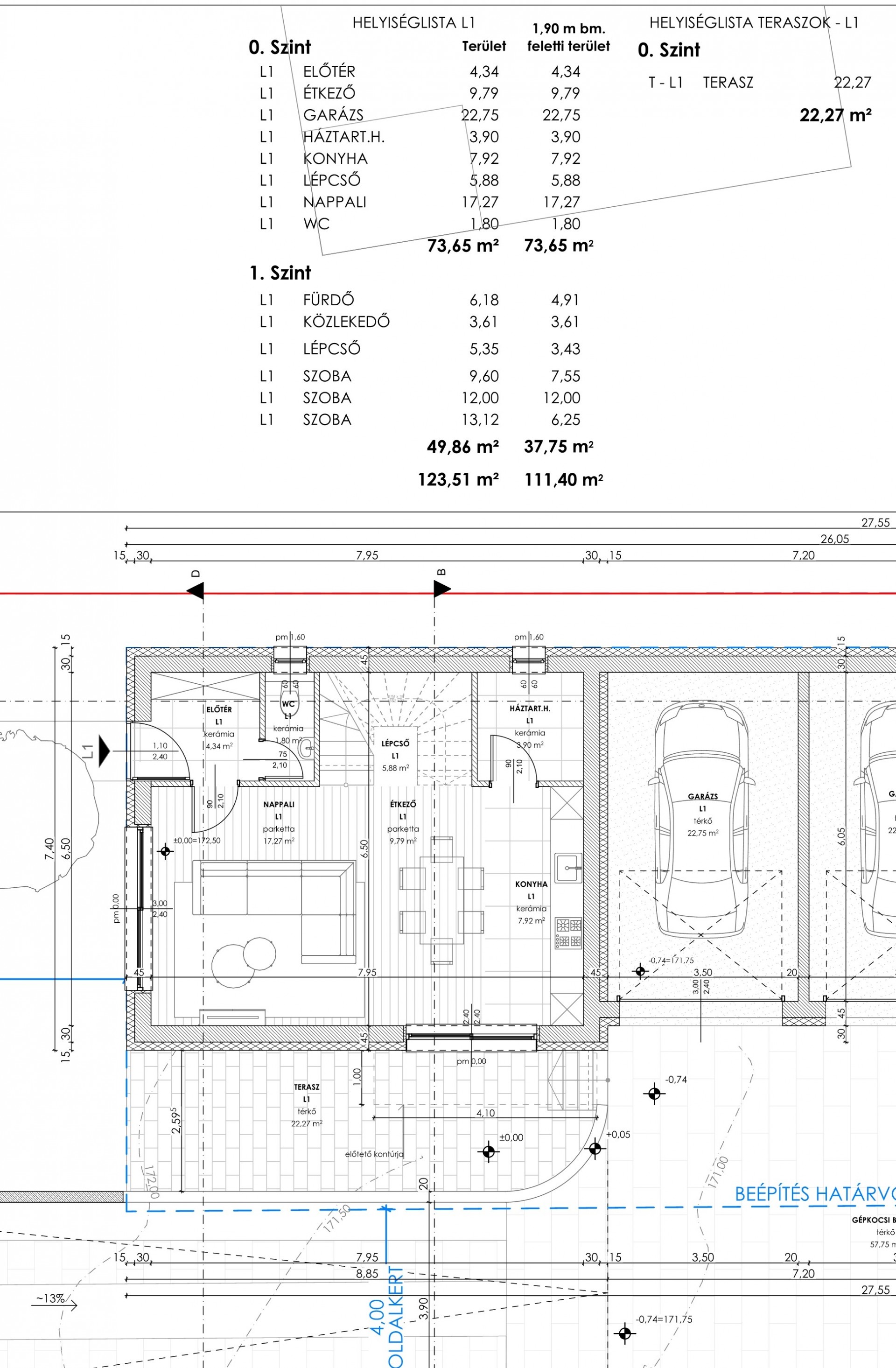
Az ingatlan bruttó területe 123.51 m2, ami nettóban 88.65m2 hasznos lakóterületet jelent és tartozik hozzá 22.75m2 garázs-tároló és egy 22.27m2-es terasz.
A belső kétszintes ikerházfél közel 100m2 saját használatú telekkel rendelkezik.
A társasház előzetes alapítása megtörtént, önálló helyrajzi számmal fog rendelkezni.
Az építkezés már elkezdődött, a várható befejezése 2026 végén lehetséges.
A beruházást az építtető saját erőből finanszírozza.
Az ár a kulcsrakész állapotra vonatkozik.
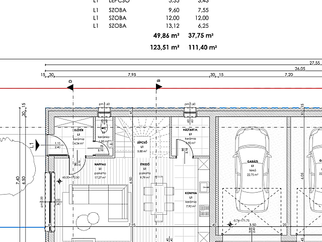
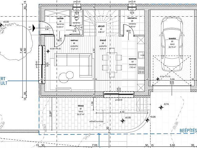
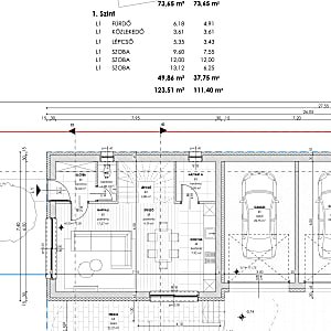
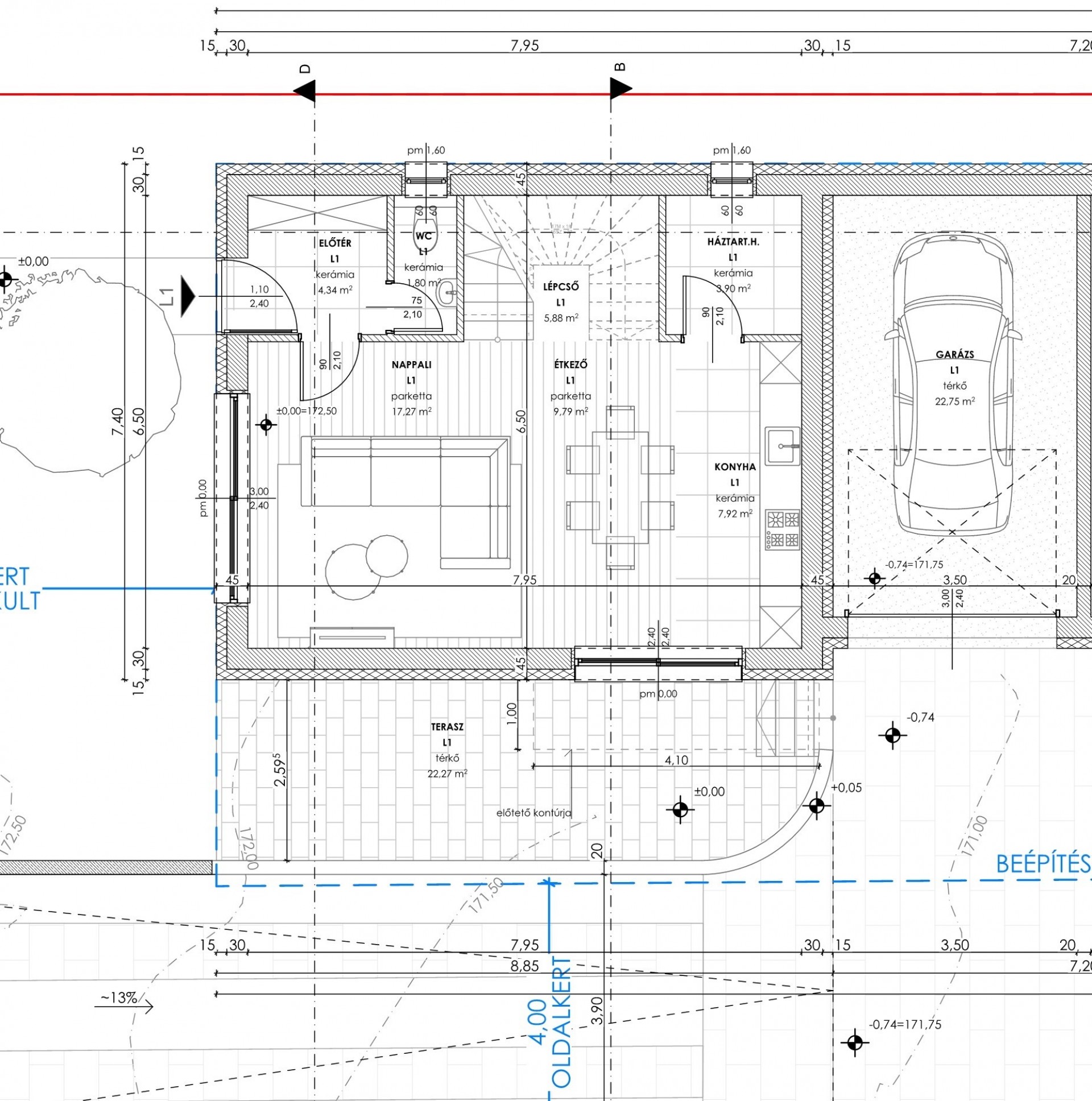
A földszinten található az előtér 4.34m2, étkező 9.79m2, háztartási helység 3.9m2, konyha 7.92m2, nappali 17.27m2, WC 1.8m2 illetve a lépcsőház 5.88m2 plusz a garázs 22.75m2.
Ez így összesen 73.65m2.
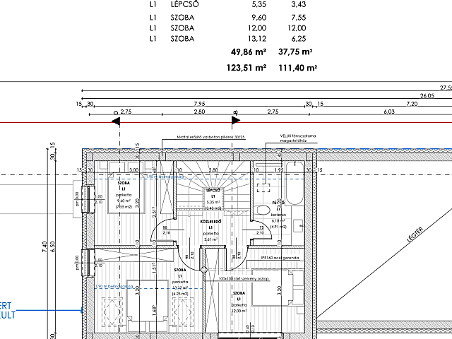
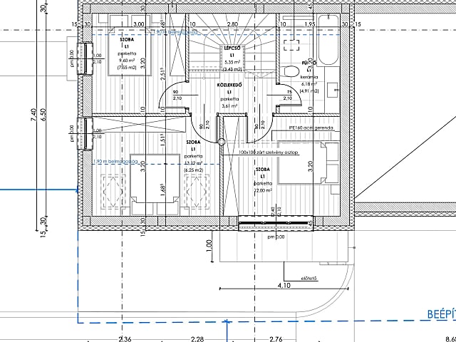
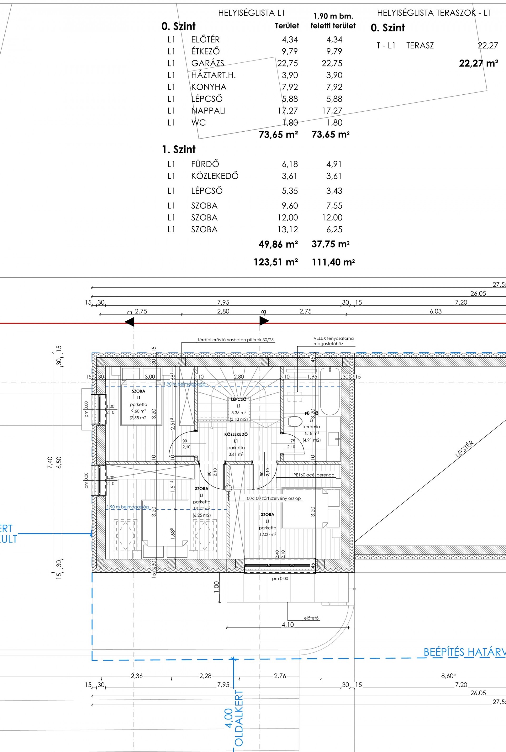
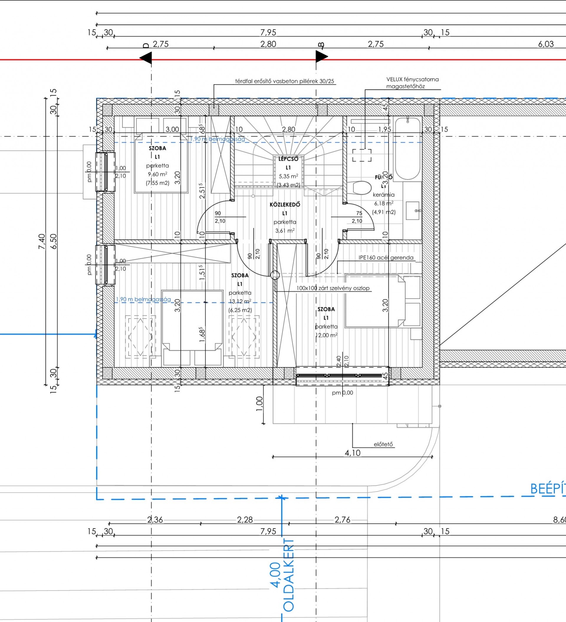
Az emeleten három hálószoba, melyek 7.55m2, 12m2 és 6.25m2 alapterületűek nettóban.
Az emeleten a szobákon kívül egy fürdőszoba 4.91m2, egy közlekedő 3.61m2 és a
lépcsőház 3.43m2 kapott még helyet. Az emeleten megjelölt m2 az 190 cm feletti területet jelzi, mivel tetőtér beépítéssel rendelkezik az ingatlan. Az emelet hasznos alapterülete összesen 37.75 m2.
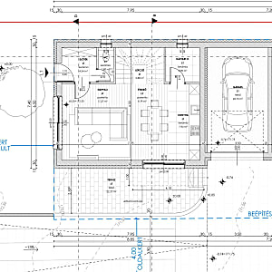
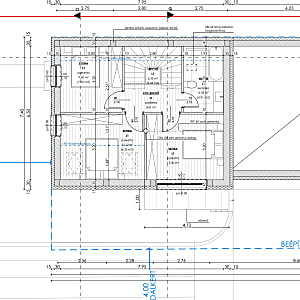
A képek között található alaprajz az ingatlanról.
Az ikerházfél földszinti részén kapott helyet a garázs, mely a két épületrész elválasztásaként is szolgál.
A hagyományos beton sávalapra épített ingatlan 30-as Porotherm tégla falazatú.
A téglafal 20 cm vastag hőszigeteléssel épül meg.
A szinteket elválasztó födém monolit vasbeton, ami 20 cm vastagságú.
A tetőtér 25 cm vastag kőzetgyapot hőszigetelést kap.
A tető héjazata kerámia cserép fedéssel valósul meg.
A homlokzati nyílászárók műanyag szerkezetűek, 3 rétegű üvegezéssel kerülnek beépítésre, kívül antracit, belül pedig fehér színben.
Levegő-víz hőszivattyús rendszer gondoskodik a meleg víz ellátásról és a fűtésről, padlófűtés hőleadással.
A bejárati ajtó 5 kamrás, 5 ponton záródó, hőhíd mentes alumínium küszöbbel kerül beépítésre.
A teraszajtók toló kivitelben kerülnek beépítésre.
A gépkocsi beállóban autóstöltő kiépítése lehetséges.
Kettő darab faincool, szintenként 1-1 kiépítése.
Várom a megtisztelő hívását.
| Értékesítés | Eladó |
| Település | Törökbálint |
| Ingatlan típusa | Ikerház |
| Szobák száma | Nappali + 3 |
| Ingatlan állapota | Új építésű |
| Fűtés | Hőszivattyú |
| Építés éve | 2026 |
| Épület szintjei | Földszintes |
| Tetőtér | Beépített |
| Komfort | Összkomfort |
| Parkolás | Garázsban és telken belül is |
| Kilátás | Udvarra és utcára néző |
| Kertkapcsolatos | Igen |
| Fürdő és WC | Egyben és külön is |
| Légkondicionáló | Van |
![[@title]](https://res.cloudinary.com/nestagency/image/fetch/c_fill,w_480,h_480,q_auto,f_auto/e_sharpen/https://www.nestagency.hu/uploads/workers/1634720407-FaceAPP2.jpg)













