Tárnok közkedvelt, csendes mellékutcájában
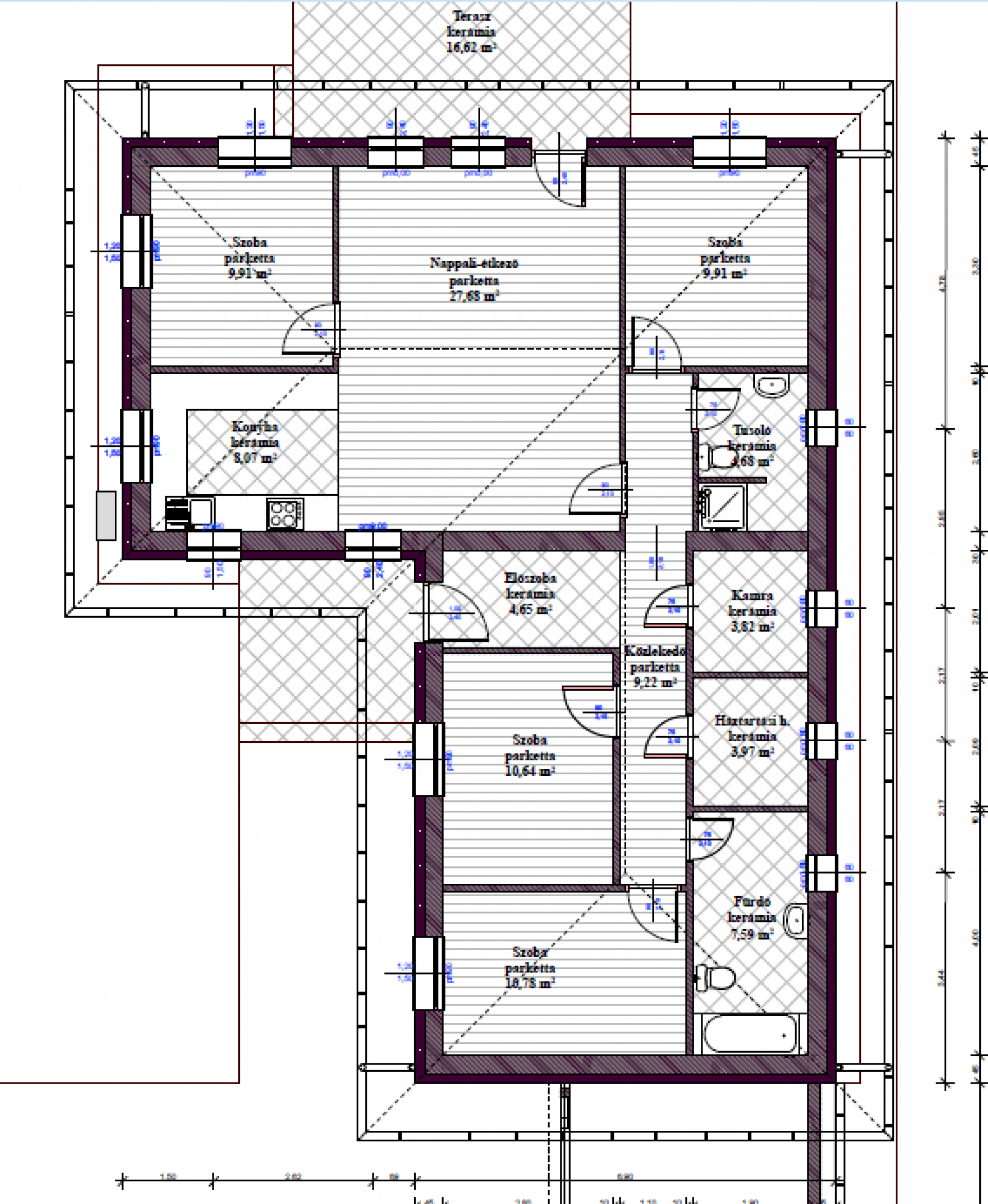
- Nettó 110,91 m² + 16,62 m² terasz + 650 m² saját telek
- Nappali + 4 szoba + 2 fürdőszoba + háztartási helyiség + kamra
- Padlófűtés hőszivattyús rendszerrel + klíma a nappaliban
- Fedetlen felszíni gépkocsi beálló zárt udvaron belül
- Várható átadás: 2025. Ősz
- Megbízható beruházó, számos referenciával – a képeken korábbi eladott házak is láthatók
Szerkezeti jellemzők:
Beton alap, 30 cm-es tégla főfalak + 15 cm dryvit szigetelés
Tégla válaszfalak, ragasztott gipszkarton burkolattal
3 rétegű hőszigetelt műanyag nyílászárók
Lépésálló szigetelt betonfödém
Cserép fedésű tető fóliázással
Helyiségelosztás (110,91 m² + 16,62 m² terasz):
Tágas nappali + étkező + konyha: 27,68 m²
4 különálló szoba (10,08 m², 11,58 m², 2×9,91 m²)
2 fürdőszoba WC-vel (7,59 m² és 4,68 m²)
Előtér, közlekedő, kamra, háztartási helyiség
Igény szerinti befejezés:
Hideg–meleg burkolatok 5.000 Ft/m²-ig választhatók
Beltéri dekorfóliás ajtók 60.000 Ft/db értékig
Szaniterek és csaptelepek választhatók a műszaki tartalom szerint
Fűtés és hűtés:
Modern hőszivattyús rendszer
Teljes padlófűtés az egész házban
Hűtő-fűtő klíma a nappaliban
Melegvíz ellátás szintén hőszivattyúval történik
Parkolás:
Saját telken belül fedetlen, zárt felszíni beálló biztosított
Kiváló elhelyezkedés és infrastruktúra:
Vasútállomás, buszmegálló, iskola, óvoda, bevásárlási lehetőségek 15 perc sétatávolságra!
Most még lehetősége van saját igényeire szabni új otthonát! Ne maradjon le róla – érdeklődjön bizalommal!











![[@title]](https://res.cloudinary.com/nestagency/image/fetch/c_fill,w_480,h_480,q_auto,f_auto/e_sharpen/https://www.nestagency.hu/uploads/workers/1634661660-246345284_243276024483999_8574759661986451745_n.jpg)

.jpg)
