Újépítésű ikerházfél XXII kerületben eladó
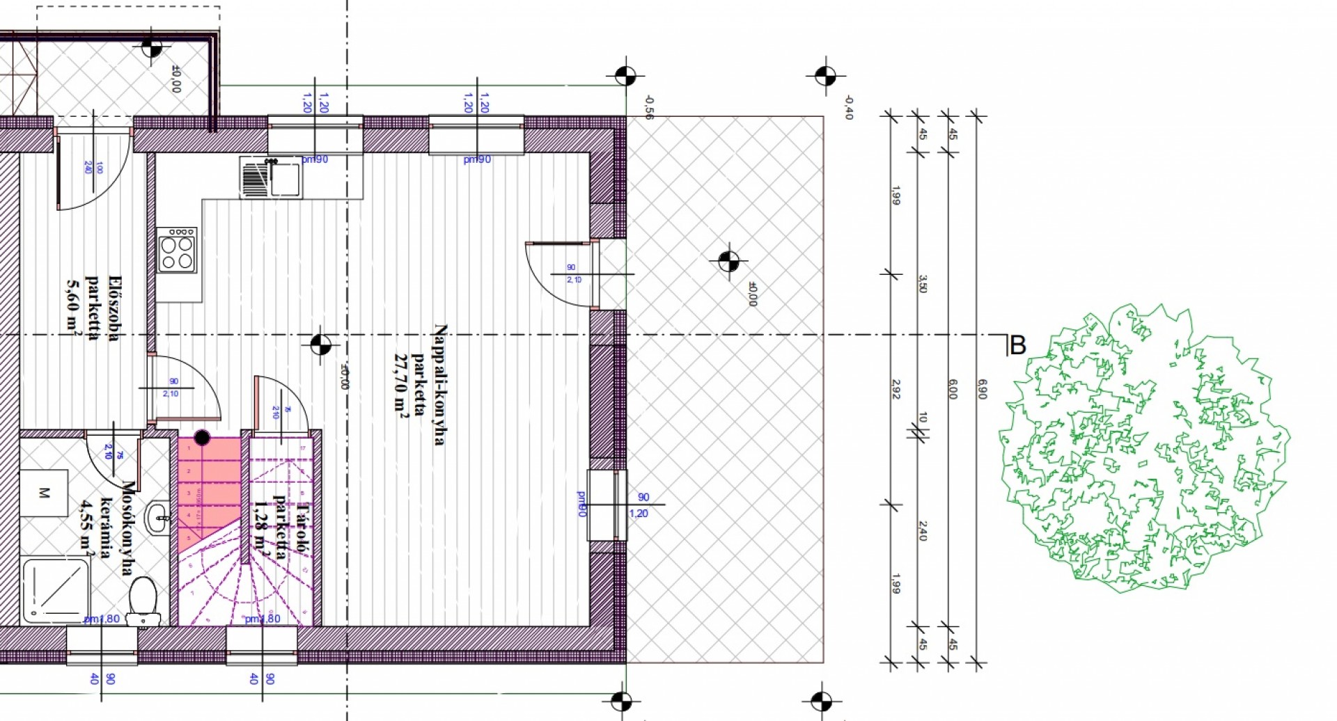
Eladó egy modern, két szintes, új építésű ikerházfél, 3 hálószobával, amerikai konyhás nappalival, 2 fürdőszobával, saját kb. 270m²-es kertrésszel, terasszal, térkövezett autóbeállóval, hőszivattyús padlófűtéssel, klímával és alacsony rezsivel!
Újépítésű ikerházfél XXII kerületben eladó
ÚJ ÉPÍTÉSŰ IKERHÁZ NAGY SAJÁT KERTTEL, HŐSZIVATTYÚVAL, PADLÓFŰTÉSSEL, KLÍMÁVAL – CSOK PLUSZ IGÉNYBE VEHETŐ!
Budapest XXII. kerület – Csendes, aszfaltozott utcában, Baross Gábor-telepen
Eladó egy modern, két szintes, új építésű ikerházfél, 3 hálószobával, amerikai konyhás nappalival, 2 fürdőszobával, saját kb. 270m²-es kertrésszel, terasszal, térkövezett autóbeállóval, hőszivattyús padlófűtéssel, klímával és alacsony rezsivel!
Elrendezés:
amerikai konyhás nappali
3 hálószoba
2 fürdőszoba
Műszaki tartalom:
Porotherm 30-as falazat, 15 cm homlokzati hőszigeteléssel
10 cm Ytong válaszfalak
E-gerendás vasbeton födém, fa zárófödém 25 cm kőzetgyapot szigeteléssel
Műanyag, 3 rétegű nyílászárók rejtett redőnytokkal
Hőszivattyús padlófűtés mindkét szinten
Elektromos vízmelegítő (100 L)
Inverteres klíma minden szinten
Térkövezett gépkocsi-beálló, elektromos kapubejáró
Kedvezményes H-tarifás áram – alacsony fenntartási költségek
Burkolatok 7.000 Ft/m²-ig, beltéri ajtók 70.000 Ft/db, szaniterek 25.000 Ft/db-ig szabadon választhatók
Rugalmas kivitelezés – egyedi igények figyelembevételével
Átadás várható időpontja: 2025. december
A lakások önálló mérőórákkal, használatbavételi engedéllyel, társasházi alapító okirattal, valamint H-tarifás villanyórával kerülnek átadásra.
Környék, infrastruktúra:
Baross Gábor-telep nyugodt, családias része, aszfaltozott mellékutcában
Iskola, óvoda, bölcsőde, orvosi rendelő, élelmiszerbolt a közelben
Bevásárlási lehetőségek: Campona, Aldi, Lidl, Spar – 5–10 perc autóval
Tömegközlekedés: 114, 213, 214, 941-es buszok néhány perc sétára
Pénzügyek, támogatások:
CSOK Plusz igénybe vehető – illetékmentesség, fix 3%-os hitel
Bankfüggetlen hitelügyintézés elérhető, díjmentesen
Teljes körű dokumentáció és műszaki leírás rendelkezésre áll
Ez az ingatlan ideális választás családoknak, akik modern, energiatakarékos otthonra vágynak Budapest zöld, mégis jól megközelíthető részén.
| Értékesítés | Eladó |
| Település | Budapest |
| Ingatlan típusa | Ikerház |
| Szobák száma | 4 |
| Ingatlan állapota | Új építésű |
| Fűtés | Hőszivattyú |
| Építés éve | 2025 |
| Épület szintjei | 2 |
| Komfort | Duplakomfort |
| Parkolás | Udvari beálló - benne van az árban |
| Kilátás | Kertre néző |
| Kertkapcsolatos | Igen |
| Erkély | 12 m2 |
| Fürdő és WC | Egyben és külön is |
| Akadálymentesített | Igen |
| CSOK | Igen |
![[@title]](https://res.cloudinary.com/nestagency/image/fetch/c_fill,w_480,h_480,q_auto,f_auto/e_sharpen/https://www.nestagency.hu/uploads/workers/1760140776-img_2675.jpeg)



















